北京装修论坛 - 北京装修社区_高老庄工长装修

 找回密码
立即注册
热搜: 工长 设计 曝光
查看: 2636|回复: 5

[装修讨论] 户型改造

[复制链接]

6

主题

15

帖子

58

积分

学前班

积分
58

社区居民

发表于 2015-2-5 14:26:43 | 显示全部楼层 |阅读模式
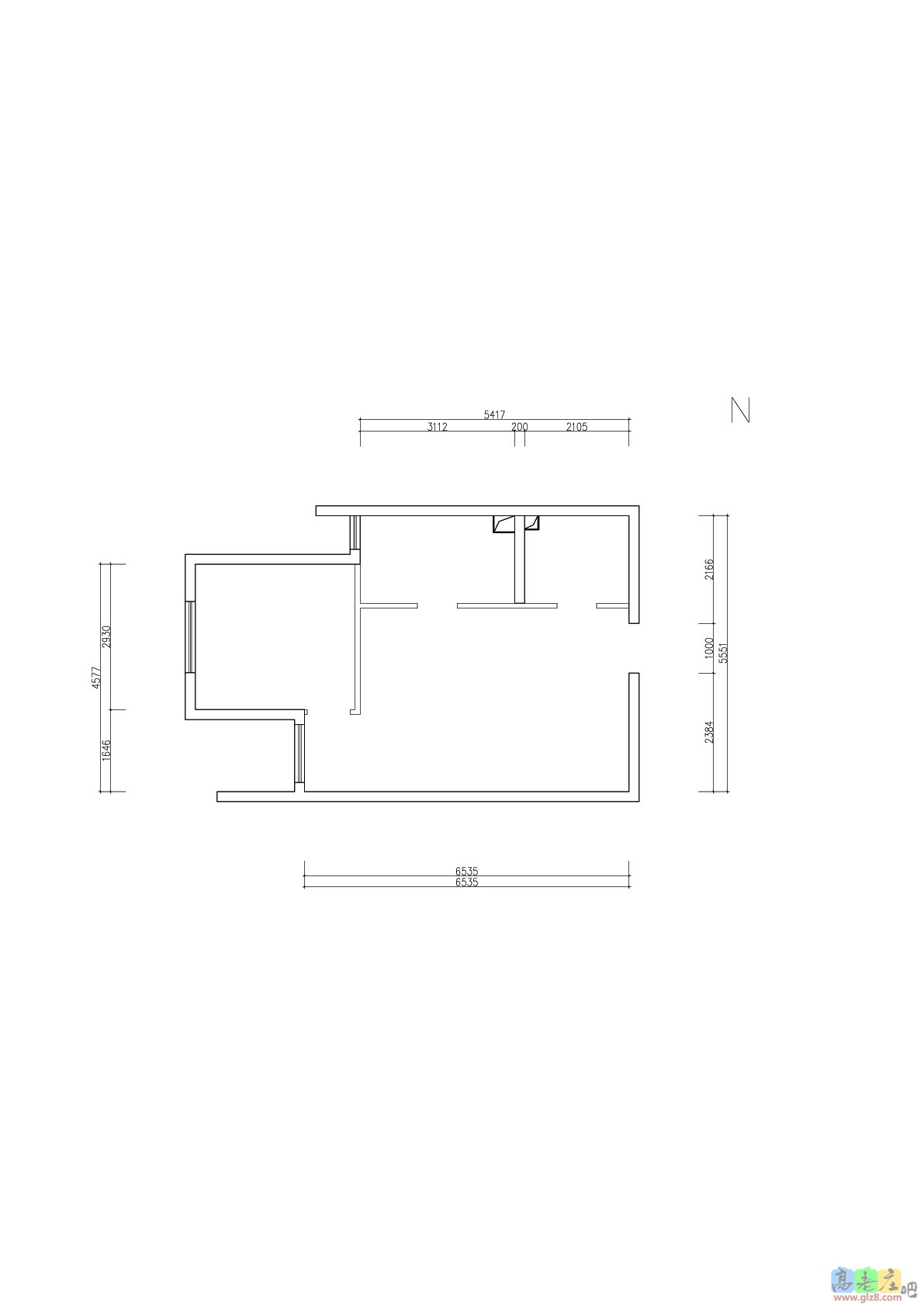
想改成俩居或者改成开放式厨房  请大家帮忙  谢谢

户型图

户型图
回复

使用道具 举报

24

主题

1万

帖子

2万

积分

硕士毕业

积分
20710

社区居民最爱沙发忠实会员社区劳模社区明星

发表于 2015-2-5 15:11:22 | 显示全部楼层
1、因为开间较小,不建议做开放式厨房,但是厨房门和卫生间门均要移位改造,厨房门移位是为了将电视墙预留出来,厨房可以做L型整体橱柜;卫生间门移位是为了给门厅的鞋帽柜腾出开间,卫生间做折叠门,挨着卫生间门可以放置浴室柜,洗衣机也可以摆放进去,洗澡时拉上浴帘,防止水溅马桶上;
2、可以隔出一间次卧,床只能摆放宽度为1.5米以内的,这样才可以将衣柜摆放进去,储纳功能是家庭必须要考虑的;
3、餐厅兼客厅,可以做卡座式餐厅,平时还可以坐在卡座上看书,上网等;
4、冰箱可以与电视柜并排放置,也可以放到对面沙发墙左侧,主卧门的斜对面位置;
5、客厅的窗户可以当阳台使用,做升降晾衣架或者摆放落地式晾衣架均可,整体装修布局改造,功能性还是比较齐全的,该有的都没落下。。

QQ图片20150205150808.jpg

卡座式餐厅兼客厅使用
餐厅卡座.jpg


圆弧形浴帘杆适合小空间
艺术花洒.jpg


落地式晾衣架
落地式晾衣架.jpg
回复

使用道具 举报

6

主题

15

帖子

58

积分

学前班

积分
58

社区居民

 楼主| 发表于 2015-2-5 16:35:14 | 显示全部楼层
太谢谢啦  这样的布局很好  一点空间没有浪费啊
回复

使用道具 举报

3

主题

35

帖子

96

积分

学前班

积分
96

社区居民

发表于 2015-2-5 16:54:03 | 显示全部楼层

回 1楼(王建) 的帖子

王建:1、因为开间较小,不建议做开放式厨房,但是厨房门和卫生间门均要移位改造,厨房门移位是为了将电视墙预留出来,厨房可以做L型整体橱柜;卫生间门移位是为了给门厅的鞋帽柜腾出开间,卫生间做折叠门,挨着卫生间门可以放置浴室柜,洗衣机也可以摆放进去,洗澡时拉上浴帘,防止水溅 .. (2015-02-05 15:11) 
在老庄吧潜水几个月时间,就发现王建同学给大家的建议中就没有一个不做卡座的!话说你为什么这么爱卡座?
回复

使用道具 举报

24

主题

1万

帖子

2万

积分

硕士毕业

积分
20710

社区居民最爱沙发忠实会员社区劳模社区明星

发表于 2015-2-5 17:41:01 | 显示全部楼层

回 3楼(melodyborain) 的帖子

melodyborain:在老庄吧潜水几个月时间,就发现王建同学给大家的建议中就没有一个不做卡座的!话说你为什么这么爱卡座? (2015-02-05 16:54) 
只是一种空间利用上的建议,通常很多楼主的户型结构,要么是有餐厅没客厅,要么是有客厅没餐厅,为了多挤出一间卧室,只好将餐厅与客厅合二为一,但是餐厅吃饭的餐桌是有高度要求的,而沙发的茶几比较矮,不适合直接用来吃饭,所以才会综合设计,考虑到卡座可以实现一厅两用的功能,视觉上又很美观,所以才推荐小户型采用卡座式餐厅兼客厅的设计。。
回复

使用道具 举报

3

主题

35

帖子

96

积分

学前班

积分
96

社区居民

发表于 2015-2-5 17:48:36 | 显示全部楼层

回 4楼(王建) 的帖子

王建:只是一种空间利用上的建议,通常很多楼主的户型结构,要么是有餐厅没客厅,要么是有客厅没餐厅,为了多挤出一间卧室,只好将餐厅与客厅合二为一,但是餐厅吃饭的餐桌是有高度要求的,而沙发的茶几比较矮,不适合直接用来吃饭,所以才会综合设计,考虑到卡座可以实现一厅两用的功 .. (2015-02-05 17:41) 
我也就那么一说,这回复也太详细了~赞!
回复

使用道具 举报

您需要登录后才可以回帖 登录 | 立即注册

本版积分规则

装修百科|手机版|小黑屋|北京高老庄建筑装饰工程有限公司 ( 京ICP备19035109号 )

GMT+8, 2026-3-30 22:10 , Processed in 0.175089 second(s), 27 queries .

快速回复 返回顶部 返回列表