北京装修论坛 - 北京装修社区_高老庄工长装修

 找回密码
立即注册
热搜: 工长 设计 曝光
查看: 4162|回复: 6

[装修讨论] 老房装修的设计和费用问题

[复制链接]

53

主题

142

帖子

1648

积分

大专毕业

积分
1648

社区居民

发表于 2015-2-9 23:30:26 | 显示全部楼层 |阅读模式
各位兄弟姐妹,求助,关于装修的设计和费用的一些问题:

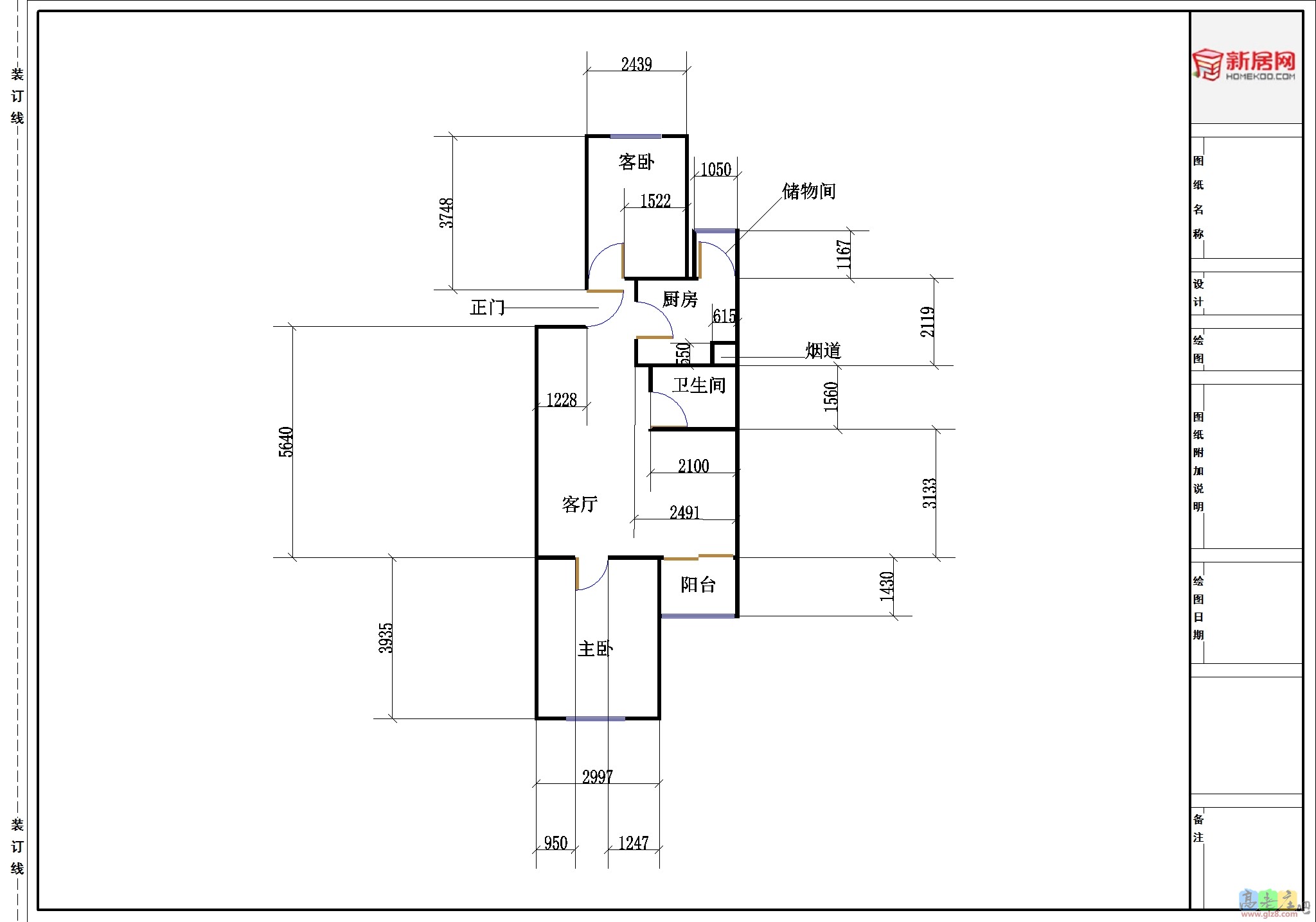
房屋基本情况:2000年的房子,建筑面积78平,套内52平(有底商有电梯,公摊较大),户型图如下:


宝盛里户型图0209版本.jpg



现在有几个问题,想请教一下各位:


1,主卧的空间如何利用比较合适?主卧里需要放一张床,一张电脑桌(电脑桌和梳妆台的功能都在这个上面实现)。主卧南边有窗户,暖气也在这个位置,我的床(考虑到空间不算很大,就只打算布置一张1.5*1.8米的床了)、衣柜和电脑桌如何摆合适,在卧室门的位置不做改变的前提下?这个思路不清楚,衣柜怎么买没有办法定下来。

2,这个房子的情况已经请了位工长上门报价,报的大概2.6W左右(含拆旧不含改水电),如果由工长负责改水电,大概是1W上下。这里我有两个问题:
A,这个2.6W的装修报价,是否合理,因为目前还没有拿到详细的报价单,但是考虑到这个房子套内面积不算大,另外地面拆旧的部分不包含客厅(客厅打算在原有地砖上直接铺木地板,就不再拆除了),我觉得这个报价是不是高了点?
B,关于改水电,工长说2000年房子,水电需要全部换一遍,我觉得这是不是有点过了?根据老庄的学习贴,我印象中这个房子改水电应该没有这么大的工程量才对,不知道是不是这样?

请各位兄弟姐妹帮帮忙,给点建议吧!非常感谢!
回复

使用道具 举报

24

主题

1万

帖子

2万

积分

硕士毕业

积分
20710

社区居民最爱沙发忠实会员社区劳模社区明星

发表于 2015-2-10 10:40:18 | 显示全部楼层
卧室床长度通常在2米~2.1米左右,主卧可以摆放宽1.8米,长2米的双人床,可以做一排大衣柜,衣柜的进深可以选择55公分的;

次卧可以摆放宽1.5米,长2米的双人床,一组小衣柜和电脑桌;

老房的拆改相对较多一些,水电改造全改是得预算一万块左右,现场看电配箱的位置,以及原电路合理部分可以保留,这样就能节省一些;
具体装修施工报价可以参考高老庄透明施工的报价表标准:http://bbs.glz.cn/job.php?action=download&aid=111264

QQ图片20150210103727.jpg
回复

使用道具 举报

53

主题

142

帖子

1648

积分

大专毕业

积分
1648

社区居民

 楼主| 发表于 2015-2-10 10:58:08 | 显示全部楼层
非常感谢,如果主卧的衣柜能这么摆,空间就够用了!另外关于水电改造的部分,也请不吝赐教
回复

使用道具 举报

53

主题

142

帖子

1648

积分

大专毕业

积分
1648

社区居民

 楼主| 发表于 2015-2-10 11:06:57 | 显示全部楼层

回 1楼(王建) 的帖子

王建:卧室床长度通常在2米~2.1米左右,主卧可以摆放宽1.8米,长2米的双人床,可以做一排大衣柜,衣柜的进深可以选择55公分的;

次卧可以摆放宽1.5米,长2米的双人床,一组小衣柜和电脑桌;

老房的拆改相对较多一些,水电改造全改是得预算一万块左右,现场看电配箱的位置,以及原电 .. (2015-02-10 10:40) 
不好意思,看回帖不仔细,水电部分也有回了。那么现在的关键就是看是否需要全改了,这个得怎么才能确定下来哪些是该改的范围呢?
回复

使用道具 举报

24

主题

1万

帖子

2万

积分

硕士毕业

积分
20710

社区居民最爱沙发忠实会员社区劳模社区明星

发表于 2015-2-10 11:17:24 | 显示全部楼层

回 3楼(zwzero) 的帖子

zwzero:不好意思,看回帖不仔细,水电部分也有回了。那么现在的关键就是看是否需要全改了,这个得怎么才能确定下来哪些是该改的范围呢? (2015-02-10 11:06) 
客厅和卧室的开关和插座的位置不需要改动的就不改动,需要移位的部分进行改动,厨卫的水电路基本都是需要改造的,配电箱和弱电箱的位置是否需要挪动等,若吊顶灯带则吊顶里面要进行布线的。。
回复

使用道具 举报

53

主题

142

帖子

1648

积分

大专毕业

积分
1648

社区居民

 楼主| 发表于 2015-2-10 11:50:48 | 显示全部楼层

回 4楼(王建) 的帖子

王建:客厅和卧室的开关和插座的位置不需要改动的就不改动,需要移位的部分进行改动,厨卫的水电路基本都是需要改造的,配电箱和弱电箱的位置是否需要挪动等,若吊顶灯带则吊顶里面要进行布线的。。 (2015-02-10 11:17) 
工长告诉我说所有电线要全换,这个是合理的不?
回复

使用道具 举报

24

主题

1万

帖子

2万

积分

硕士毕业

积分
20710

社区居民最爱沙发忠实会员社区劳模社区明星

发表于 2015-2-10 11:53:44 | 显示全部楼层

回 5楼(zwzero) 的帖子

zwzero:工长告诉我说所有电线要全换,这个是合理的不? (2015-02-10 11:50) 
要看原电线是否有老化现象,或者原电线已经不达标了,具体楼主可以拍一下现场的电线照片看看。。
回复

使用道具 举报

您需要登录后才可以回帖 登录 | 立即注册

本版积分规则

装修百科|手机版|小黑屋|北京高老庄建筑装饰工程有限公司 ( 京ICP备19035109号 )

GMT+8, 2026-3-30 20:35 , Processed in 1.176517 second(s), 29 queries .

快速回复 返回顶部 返回列表