北京装修论坛 - 北京装修社区_高老庄工长装修

 找回密码
立即注册
热搜: 工长 设计 曝光
楼主: 中猪

“懒人”打造68.37平米mini三居“实用”“智能”家居日记

[复制链接]

2

主题

53

帖子

120

积分

小学毕业

积分
120

社区居民

 楼主| 发表于 2015-4-16 15:47:04 | 显示全部楼层
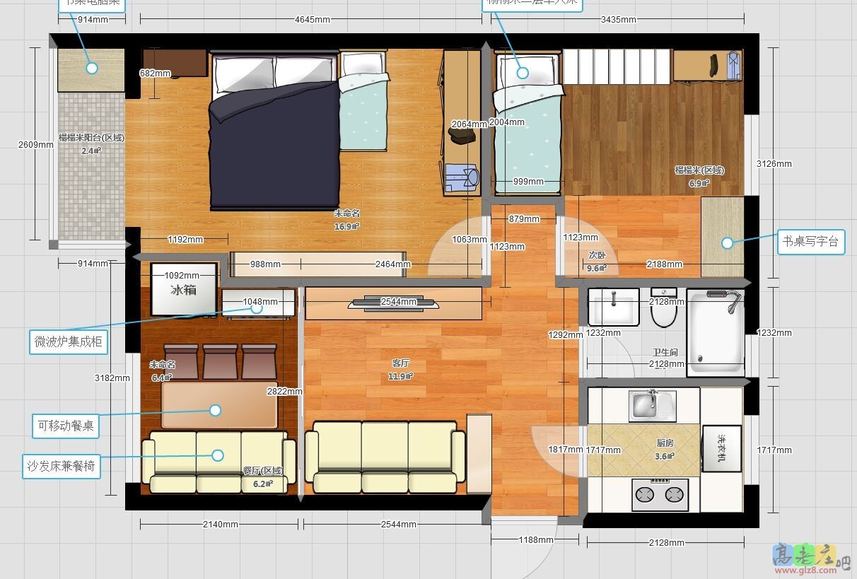
经过无数天的纠结,有了新的布局设计方案,请各位看官指点
设计图.jpg
回复

使用道具 举报

4

主题

226

帖子

1173

积分

大专毕业

积分
1173

社区居民社区劳模

发表于 2015-4-17 20:37:36 | 显示全部楼层

回 12楼(中猪) 的帖子

中猪:每天必修课就是白菜网,看看有什么白菜值得买。今天秒的是汉斯希尔ECO反冲洗前置过滤器WS-2314-20-200。
目前加装必备的就是净化器和净水器,为了减少后端的净水器压力,并保障刷牙和洗手水的安全,前置过滤器就很必要了,所以看到秒杀就果断入了。供大家参考
.. (2015-03-09 09:57) 
秒的很值呢,我也找找
回复

使用道具 举报

4

主题

226

帖子

1173

积分

大专毕业

积分
1173

社区居民社区劳模

发表于 2015-4-17 20:45:46 | 显示全部楼层
真住进后,你会发现浴缸用不了几回,尤其是户型小的公共卫生间更不会频繁泡澡。
客厅两个沙发视觉感较差吧!不如把现在的沙发区做成L型卡座,既当餐区与沙发。冰箱进厨房,把现在餐区做成地台,白天孩子的活动区,晚上可休息。这样更敞亮吧!空间小不是都得有沙发区的
回复

使用道具 举报

2

主题

53

帖子

120

积分

小学毕业

积分
120

社区居民

 楼主| 发表于 2015-4-18 09:44:15 | 显示全部楼层

回 42楼(安娜姐) 的帖子

没有浴缸,就是淋浴房,设计软件淋浴房的图画看起来就像浴缸。
餐厅的沙发就是类似卡座沙发兼沙发床,白天用餐晚上睡觉。
回复

使用道具 举报

2

主题

53

帖子

120

积分

小学毕业

积分
120

社区居民

 楼主| 发表于 2015-4-20 11:04:49 | 显示全部楼层
餐厅的沙发是这样的,可以当卡座沙发,也可以当沙发床。
沙发床.jpg
回复

使用道具 举报

2

主题

53

帖子

120

积分

小学毕业

积分
120

社区居民

 楼主| 发表于 2015-4-20 11:05:57 | 显示全部楼层
沙发床睡觉模式
沙发床1.jpg
回复

使用道具 举报

2

主题

53

帖子

120

积分

小学毕业

积分
120

社区居民

 楼主| 发表于 2015-4-20 11:10:35 | 显示全部楼层
受你推荐的装修日记启发,今天又有了新的设计方案,求建议。
方案3.jpg
回复

使用道具 举报

2

主题

53

帖子

120

积分

小学毕业

积分
120

社区居民

 楼主| 发表于 2015-4-22 10:30:26 | 显示全部楼层
求工长推荐,谢谢!
回复

使用道具 举报

2

主题

53

帖子

120

积分

小学毕业

积分
120

社区居民

 楼主| 发表于 2015-6-29 09:45:44 | 显示全部楼层
更新了最终的设计图和采购列表,欢迎拍砖。
回复

使用道具 举报

0

主题

4

帖子

33

积分

学前班

积分
33

社区居民

发表于 2015-6-29 18:02:27 | 显示全部楼层
个人感觉客厅采光肯能是问题
微波炉柜和冰箱用的时候会不会不太方便?
回复

使用道具 举报

您需要登录后才可以回帖 登录 | 立即注册

本版积分规则

装修百科|手机版|小黑屋|北京高老庄建筑装饰工程有限公司 ( 京ICP备19035109号 )

GMT+8, 2026-3-18 19:58 , Processed in 0.160044 second(s), 31 queries .

快速回复 返回顶部 返回列表