北京装修论坛 - 北京装修社区_高老庄工长装修

 找回密码
立即注册
热搜: 工长 设计 曝光
查看: 3461|回复: 6

[装修讨论] 盼大神指点如何更加合理进行功能划分?

[复制链接]

1

主题

7

帖子

36

积分

学前班

积分
36

社区居民

发表于 2015-3-10 14:27:26 | 显示全部楼层 |阅读模式
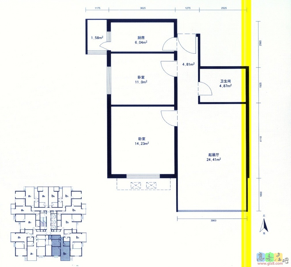
建筑面积:82.5 m2,二室一厅,南向。

常住人员:单身男。

前言:这套房子整体朝南,算是比较中规中矩的户型,需要改动的地方不多,但是如何合理的规划洗手间和厨房的功能划分是现在让我比较头疼的地方。

最想改造房子哪几处地方:


一、洗手间、厨房(重要级:★★★★★)

1、我在图上标注了洗手间现在的功能划分,基本还是想保持这个格局,但是我想在右下方再加一个浴盆,然后在洗手间中间加一个玻璃的平推门,把淋浴、浴盘放了里面,马桶和洗手台在外面,但这种设计会不会显得空间特别狭小?或者不做整理的干湿分区了,只做一个玻璃的淋浴间?

2、洗衣机的问题,我是想把洗衣机放了厨房旁边的小阳台里,总觉得卫生间里有个洗衣机看着别扭,如果放了橱柜下,3米的长度又太占空间;冰箱的问题,和洗衣机一样,不想把冰箱放了起居室里,和橱柜放在一起占地,放了小阳台又和洗衣机冲突,应该如何安排呢?还是就把冰箱放了小阳台,不要浴缸,把洗衣机放了卫生间?有没有更好的分配方案?

二、起居室(重要级:★★★)

1、起居室包含了客厅、餐厅、阳台等多种功能,我的初步设想就是从北向南是餐桌、沙发、阳台,但总觉得这样有点浪费空间,有没有更紧凑的设计,或者可以容纳更多的功能?厨房和主卫现在是对着开门的,希望能够进行调整。

2、阳台为落地飘窗设计,东、西、北三个方向都是飘窗,如何合理运用大阳台?因为是和客厅一体的,不就不想在墙上安晾衣架了,晾衣服的时候把折叠的晾衣架拿出来用,还是做一个隔断把阳台独立出来比较好,是否压抑?

b1户型图.jpg 谢谢了!
回复

使用道具 举报

24

主题

1万

帖子

2万

积分

硕士毕业

积分
20710

社区居民最爱沙发忠实会员社区劳模社区明星

发表于 2015-3-10 15:15:29 | 显示全部楼层
冰箱可以放在厨房小阳台;卫生间门做成推拉吊趟门,洗衣机放在卫生间更合适,上下水都比较方便;
客厅尽量保持完整的大客厅,晾衣架可以放在主卧靠窗边,建议用落地式晾衣架。。

QQ图片20150310150422.jpg

落地式晾衣架.jpg
回复

使用道具 举报

1

主题

7

帖子

36

积分

学前班

积分
36

社区居民

 楼主| 发表于 2015-3-11 09:08:07 | 显示全部楼层

回 1楼(王建) 的帖子

王建:冰箱可以放在厨房小阳台;卫生间门做成推拉吊趟门,洗衣机放在卫生间更合适,上下水都比较方便;
客厅尽量保持完整的大客厅,晾衣架可以放在主卧靠窗边,建议用落地式晾衣架。。



....... (2015-03-10 15:15) 
卫生间门做成推拉吊趟门是说进卫生间的门做成这样还是卫生间里的干湿分区做成这样啊?
回复

使用道具 举报

24

主题

1万

帖子

2万

积分

硕士毕业

积分
20710

社区居民最爱沙发忠实会员社区劳模社区明星

发表于 2015-3-11 09:43:43 | 显示全部楼层

回 2楼(wong) 的帖子

wong:卫生间门做成推拉吊趟门是说进卫生间的门做成这样还是卫生间里的干湿分区做成这样啊? (2015-03-11 09:08) 
推拉吊趟门是指卫生间门,淋浴房是定制的。。
回复

使用道具 举报

1

主题

7

帖子

36

积分

学前班

积分
36

社区居民

 楼主| 发表于 2015-3-11 09:44:44 | 显示全部楼层

回 3楼(王建) 的帖子

王建:推拉吊趟门是指卫生间门,淋浴房是定制的。。 (2015-03-11 09:43) 
做成推拉吊趟门有什么好处吗?我网上搜了一下觉得外形都挺难看的
回复

使用道具 举报

24

主题

1万

帖子

2万

积分

硕士毕业

积分
20710

社区居民最爱沙发忠实会员社区劳模社区明星

发表于 2015-3-11 10:04:01 | 显示全部楼层

回 4楼(wong) 的帖子

wong:做成推拉吊趟门有什么好处吗?我网上搜了一下觉得外形都挺难看的 (2015-03-11 09:44) 
会节省卫生间的空间,不然平开门推门进去,会挡住浴室柜或者马桶,适用于比较拥挤的卫生间。。
回复

使用道具 举报

1

主题

7

帖子

36

积分

学前班

积分
36

社区居民

 楼主| 发表于 2015-3-11 10:18:08 | 显示全部楼层

回 5楼(王建) 的帖子

王建:会节省卫生间的空间,不然平开门推门进去,会挡住浴室柜或者马桶,适用于比较拥挤的卫生间。。 (2015-03-11 10:04) 
明白了,非常感谢
回复

使用道具 举报

您需要登录后才可以回帖 登录 | 立即注册

本版积分规则

装修百科|手机版|小黑屋|北京高老庄建筑装饰工程有限公司 ( 京ICP备19035109号 )

GMT+8, 2026-3-30 13:58 , Processed in 0.212583 second(s), 30 queries .

快速回复 返回顶部 返回列表