
|
3898| 12
|
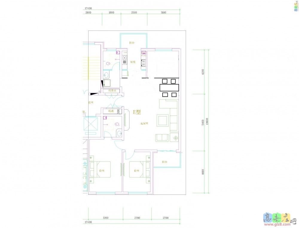
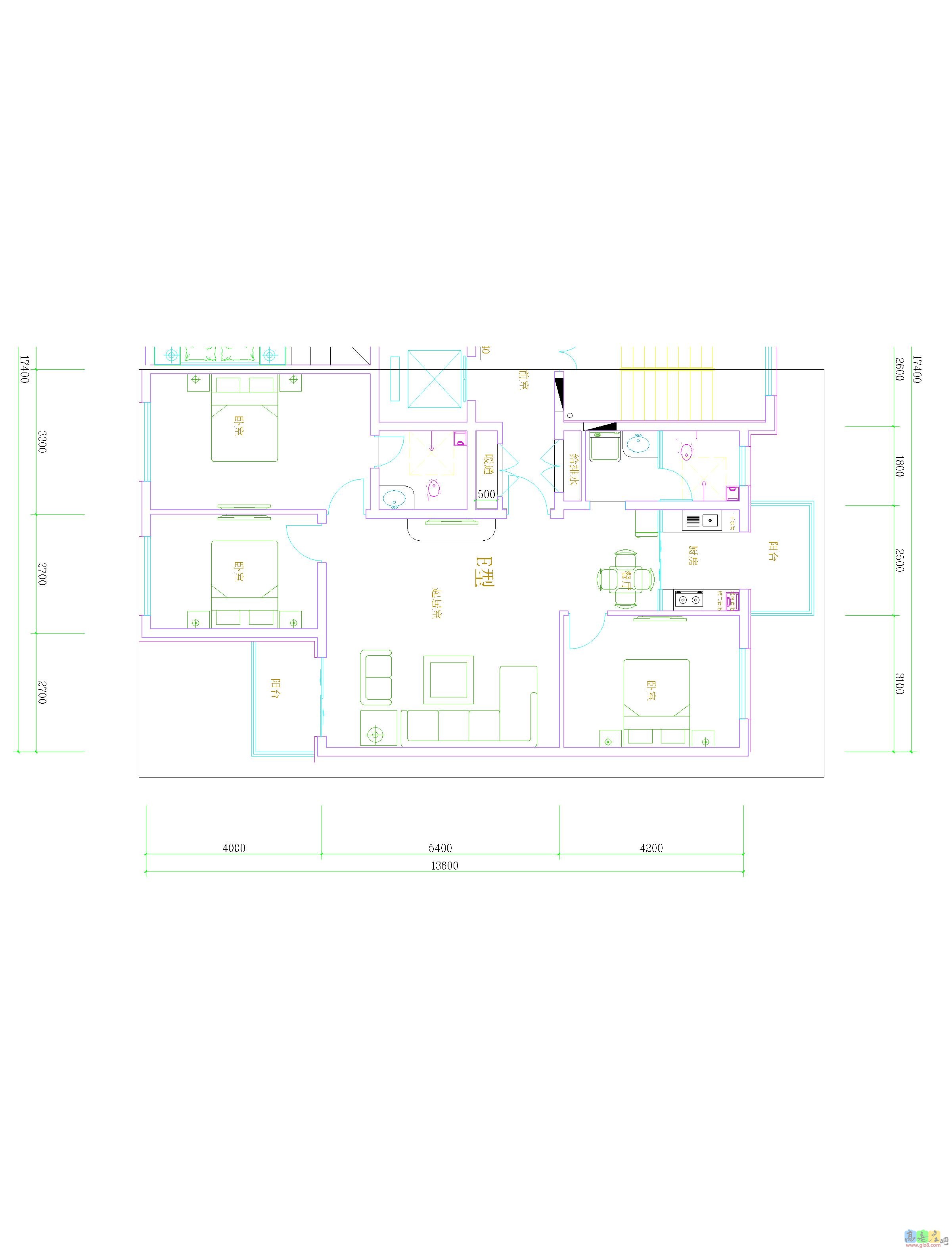
[装修讨论] 看看我家这户型如何设计好? |
|
| |
| ||
| ||
|
88号装修日记,谢谢惠顾 http://bbs.glz8.com/read-htm-tid-27249.html
|
||
| ||
| ||
| ||
| ||
回 4楼(大帆小原) 的帖子
| ||
装修百科|手机版|小黑屋|北京高老庄建筑装饰工程有限公司 ( 京ICP备19035109号 )
GMT+8, 2026-3-30 07:08 , Processed in 0.949953 second(s), 31 queries .