北京装修论坛 - 北京装修社区_高老庄工长装修

 找回密码
立即注册
热搜: 工长 设计 曝光
查看: 3177|回复: 2

[装修讨论] 方正二手两小两居,求改造并设计成现代简约风格(装修在即,急求大师指点)

[复制链接]

7

主题

19

帖子

77

积分

学前班

积分
77

社区居民

发表于 2015-5-12 22:31:27 | 显示全部楼层 |阅读模式

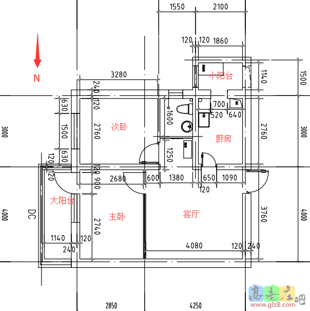
户型图

户型图


常住人员:夫妻两人,小孩快一周了,半年后准备入住(前期会有老人来帮带小孩)
基本情况:房子是二手房,为增加客厅面积,客厅和主卧之间的隔墙改过,原来和次卧齐的,灶台在厨房的小阳台上。
改造需求
1.客厅是暗厅,客厅和主卧之间的隔墙如何设计可使客厅更敞亮的观感;另房门对主卧门是不是不好,有无改造可能。
2.卫生间比较小,现水盆在内,想改成干湿分离。
3.因小孩小,所以家俱想买成品,床想要1.8米的,次卧做儿童房;客厅、主卧、卫生间都想有储物功能,客厅还要兼做餐厅;
4.卫生间和厨房的布局也请设计一下(后附现卫生间和厨房简图)
重点需求:基本家俱尺寸及摆放位置求大神指导、设计。


PS:房子为老房,除主卧和客厅、次卧和卫生间隔墙为非承重墙外,其它都是承重墙。
平面图.png
回复

使用道具 举报

1314

主题

1万

帖子

4万

积分

管理员

Rank: 9Rank: 9Rank: 9

积分
43987

社区居民社区劳模最爱沙发社区明星忠实会员

发表于 2015-5-13 09:27:28 | 显示全部楼层
从居住角度看,夫妻应该住次卧。小孩和老人住主卧。
1,如果要客厅明亮,可以考虑把主卧和客厅之间的墙改为,半墙半窗。内测拉窗帘,晚上睡觉拉上窗帘即可。但是,这样工程量太大,不建议改造。
房门对主卧门,老庄认为没什么不好,如果将来配戴窗的防盗门,夏天可以开着门,通风换气更舒服。居住舒适就是最好的风水。
2,水盆移到外边不好,因为水盆比较脏,不好清理。可以考虑把卫生间墙向下移动,扩大卫生间面积。
3,可以考虑买定制家具。什么样都可以设计,可以增加非常多的存储空间。
4,卫生间外边可以放洗衣机。
回复

使用道具 举报

7

主题

19

帖子

77

积分

学前班

积分
77

社区居民

 楼主| 发表于 2015-5-13 10:55:05 | 显示全部楼层
感谢老庄的回复。
卫生间墙下移的话,次卧的门开哪呀?
再有就是家具如何摆放,还请给些建议!
回复

使用道具 举报

您需要登录后才可以回帖 登录 | 立即注册

本版积分规则

装修百科|手机版|小黑屋|北京高老庄建筑装饰工程有限公司 ( 京ICP备19035109号 )

GMT+8, 2026-3-28 21:24 , Processed in 0.149057 second(s), 27 queries .

快速回复 返回顶部 返回列表