北京装修论坛 - 北京装修社区_高老庄工长装修

 找回密码
立即注册
热搜: 工长 设计 曝光
查看: 4669|回复: 21

[装修讨论] 厨房设计方案难以决断,非常纠结,各位前辈求助啊!!!

[复制链接]

7

主题

59

帖子

164

积分

小学毕业

积分
164

社区居民忠实会员

发表于 2015-5-18 12:07:07 | 显示全部楼层 |阅读模式
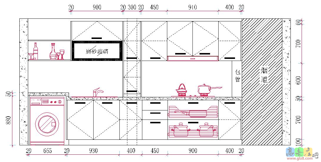
家里厨房面积不是太大,橱柜的设计师量了以后给出了个方案。但按这个设计操作台空间就太小了。
因为右面是煤气表,和煤气管,设计师说没法挪太多,挺多再移动10公分。
中间那根管子是下水管。包得太浅和别的吊柜不搭配,包得和吊柜一样宽,可用空间更小了。冰箱位置我是不打算动了。
麻烦诸位前辈给设计设计。 001.png 002.png 0515_平面设计图.png
回复

使用道具 举报

2

主题

260

帖子

945

积分

网站员工

积分
945

社区居民

QQ
发表于 2015-5-18 13:10:40 | 显示全部楼层
为什么不把洗衣机挪到卫生间去?
回复

使用道具 举报

7

主题

59

帖子

164

积分

小学毕业

积分
164

社区居民忠实会员

 楼主| 发表于 2015-5-18 13:56:47 | 显示全部楼层
卫生间太小了,洗衣机放进去转不开身,而且那边没有下水口,不好改造的
回复

使用道具 举报

8

主题

49

帖子

140

积分

小学毕业

积分
140

社区居民

发表于 2015-5-18 14:52:45 | 显示全部楼层
楼主你这个完全没有操作台了吧,可以考虑把洗衣机左边的位置也做成台面,把洗衣机改下方向,水盆也可以考虑缩小点尺寸,灶具再往右挪一点,贴着烟道,中间也可以有点操作台,我也不专业,就是点建议哈
回复

使用道具 举报

8

主题

49

帖子

140

积分

小学毕业

积分
140

社区居民

发表于 2015-5-18 14:53:50 | 显示全部楼层
另外 你水盆右边是由管道么?为什么要做一个高柜呢?
回复

使用道具 举报

46

主题

1562

帖子

3212

积分

大专毕业

积分
3212

社区居民忠实会员

发表于 2015-5-18 15:30:16 | 显示全部楼层
厨房是承重墙吗?可以考虑做敞开式厨房。
回复

使用道具 举报

7

主题

59

帖子

164

积分

小学毕业

积分
164

社区居民忠实会员

 楼主| 发表于 2015-5-18 15:45:47 | 显示全部楼层

回 4楼(tina0812) 的帖子

tina0812:另外 你水盆右边是由管道么?为什么要做一个高柜呢? (2015-05-18 14:53) 
下水管在那儿,不知道开发商脑子进了什么水。恶心死人了
回复

使用道具 举报

7

主题

59

帖子

164

积分

小学毕业

积分
164

社区居民忠实会员

 楼主| 发表于 2015-5-18 15:46:17 | 显示全部楼层

回 5楼(青岛泰金) 的帖子

青岛泰金:厨房是承重墙吗?可以考虑做敞开式厨房。 (2015-05-18 15:30) 
开放式厨房绝对不能做,我做饭味道极大
回复

使用道具 举报

2

主题

260

帖子

945

积分

网站员工

积分
945

社区居民

QQ
发表于 2015-5-18 15:53:08 | 显示全部楼层
按照平面布置图尺寸,
洗衣机尺寸一般都在460mm到600mm之间
放在卫生间应该没问题吧
回复

使用道具 举报

46

主题

1562

帖子

3212

积分

大专毕业

积分
3212

社区居民忠实会员

发表于 2015-5-18 16:38:11 | 显示全部楼层
我家敞开式厨房99年装修使用至今,效果很好。
回复

使用道具 举报

您需要登录后才可以回帖 登录 | 立即注册

本版积分规则

装修百科|手机版|小黑屋|北京高老庄建筑装饰工程有限公司 ( 京ICP备19035109号 )

GMT+8, 2026-3-28 16:58 , Processed in 0.228456 second(s), 29 queries .

快速回复 返回顶部 返回列表