北京装修论坛 - 北京装修社区_高老庄工长装修

 找回密码
立即注册
热搜: 工长 设计 曝光
查看: 2078|回复: 3

[装修讨论] 橱柜问题:有燃气管或水管的橱柜里面都不加背板吗?

[复制链接]

25

主题

254

帖子

583

积分

初中毕业

积分
583

社区居民忠实会员

发表于 2015-6-8 11:25:35 | 显示全部楼层 |阅读模式
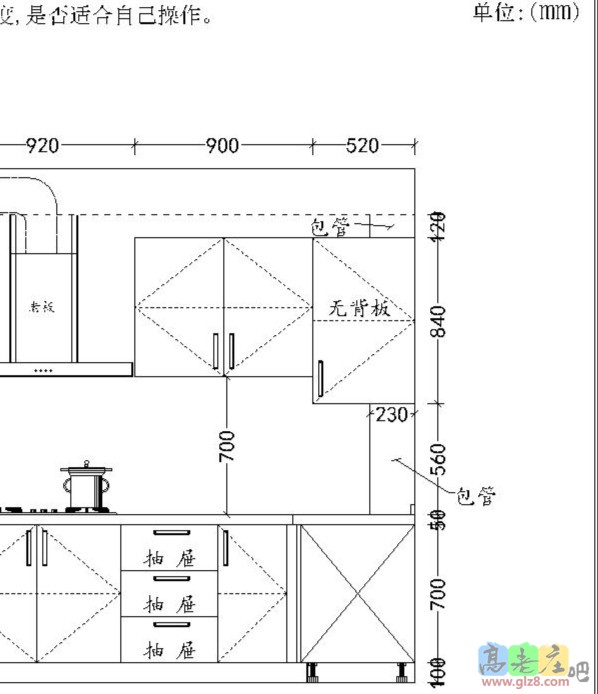
如图,请问有管道的柜门里面都不加背板,正常吗?
回复

使用道具 举报

25

主题

254

帖子

583

积分

初中毕业

积分
583

社区居民忠实会员

 楼主| 发表于 2015-6-8 11:38:27 | 显示全部楼层
-1_副本.jpg
回复

使用道具 举报

481

主题

1万

帖子

5万

积分

博士毕业

积分
52600

社区居民优秀斑竹宣传大使最爱沙发社区劳模社区明星忠实会员

发表于 2015-6-8 11:59:47 | 显示全部楼层
这个要看具体情况的,不方便加背板是不加的。
回复

使用道具 举报

25

主题

254

帖子

583

积分

初中毕业

积分
583

社区居民忠实会员

 楼主| 发表于 2015-6-8 15:28:08 | 显示全部楼层

回 2楼(暴雪) 的帖子

暴雪:这个要看具体情况的,不方便加背板是不加的。 (2015-06-08 11:59) 
这样啊,多谢暴雪的回复
回复

使用道具 举报

您需要登录后才可以回帖 登录 | 立即注册

本版积分规则

装修百科|手机版|小黑屋|北京高老庄建筑装饰工程有限公司 ( 京ICP备19035109号 )

GMT+8, 2026-3-28 10:17 , Processed in 0.751700 second(s), 28 queries .

快速回复 返回顶部 返回列表