
|
4144| 13
|
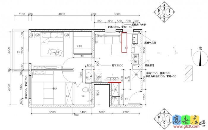
[装修讨论] 麻烦老庄给看看报价单,建筑面积64的二手房,不含水电暂时预估2.6w,是否合理? |
| ||
回 1楼(王建) 的帖子
| ||
回 1楼(王建) 的帖子
| ||
回 3楼(superscholes) 的帖子
| ||
回 3楼(superscholes) 的帖子
| ||
回 6楼(醉蟋蟀) 的帖子
| ||
| ||
回 4楼(wyjason) 的帖子
| ||
装修百科|手机版|小黑屋|北京高老庄建筑装饰工程有限公司 ( 京ICP备19035109号 )
GMT+8, 2026-3-27 18:06 , Processed in 0.323192 second(s), 29 queries .