北京装修论坛 - 北京装修社区_高老庄工长装修

 找回密码
立即注册
热搜: 工长 设计 曝光
查看: 10308|回复: 22

精彩装修图片《钟爱田园--28平方,我也要试试》

[复制链接]

440

主题

7778

帖子

1万

积分

硕士毕业

积分
17687

社区居民原创达人社区劳模最爱沙发

发表于 2012-7-20 13:39:39 | 显示全部楼层 |阅读模式
精彩装修图片转帖第450篇:《钟爱田园--28平方,我也要试试》
原日记来源:篱笆网
原作者:小香静

老庄推荐原因:楼主看到田园风的装修风格就深深地迷恋上了田园,但是之前房子刚装修完,所以就买了一套28平的小房子来实现自己的田园梦!!此次装修花费三万八左右,很是美貌的田园风小屋!客厅的小资角落,阳台的小书桌等都是值得参考的对象。
6_41_34d652f319f9bec.jpg
回复

使用道具 举报

440

主题

7778

帖子

1万

积分

硕士毕业

积分
17687

社区居民原创达人社区劳模最爱沙发

 楼主| 发表于 2012-7-20 13:42:09 | 显示全部楼层
自从看了论坛的装修版块,就爱上了田园风格,满心想弄间漂亮的田园。鉴于家里的房子已经装修好了,也不可能敲掉重来了,追悔莫及啊

所以呢,就有了这个28平方的小房子,用来给我过过装修田园风格的念头,为什么买了这么小的房子呢,因为LZ经济条件实在很有限,而且还是30多岁的老房子。

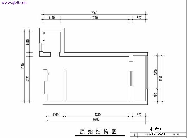
记得在购房版块看过有人称这种房子是五脏六腑都烂了的,我倒不信邪了,偏要把它整个时髦的样子出来。先看原始图吧,忘了把装修前的样子拍下了,倒真的是不堪入目的。  
30921526.jpg
回复

使用道具 举报

440

主题

7778

帖子

1万

积分

硕士毕业

积分
17687

社区居民原创达人社区劳模最爱沙发

 楼主| 发表于 2012-7-20 13:43:27 | 显示全部楼层
到这个房子后就整天心痒痒的想装修咯,当时找了好几家装修设计的公司,liba上的也有,出了很多的设计方案。

经过认真比较深思熟虑后,最纠结的是2点。

第一个是洗手台(也就是卫生间干区)没有地方放,卫生间实在太小,多数设计师都建议放在淋浴房里,照他们说那么小的房子就没有这块区域的。这个我万万不能接受的,洗好澡就把洗手台和镜子冲的搭搭滴,看上去太脏了。现在回想起来那些这么说的设计师思维真是太禁锢了,空间合理分隔应该是最基础的设计功底了,要么是我房子太小,他们就马马虎虎了?

第二个就立面设计,这个田园的美不美就完全在这上面了,我想要的是干干净净的田园。

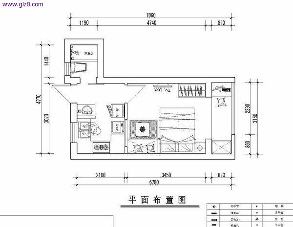
最后定下的是这个方案,一个小小的工作室给我设计的。  
30921443.jpg
回复

使用道具 举报

440

主题

7778

帖子

1万

积分

硕士毕业

积分
17687

社区居民原创达人社区劳模最爱沙发

 楼主| 发表于 2012-7-20 13:44:36 | 显示全部楼层
贴张预告片,再来个流水帐,半包,硬装4w不到点,所有的电器家具加进去一共5.5w。

我自己买的东西在下面,其他是装修公司包的。

厨房电器:德意 (篱笆团购)
橱柜:千禧(篱笆团购)
地砖墙砖:中源朗高(家饰佳)
洗手台连柜子:淘宝
厨房龙头:宜家
折叠小餐桌:宜家
卡座上的花格子木板:宜山路订做
镜子:画家街
灯饰:淘宝
所有装饰品,床品和窗帘:淘宝
家具:东明家具城
30921445.jpg
回复

使用道具 举报

440

主题

7778

帖子

1万

积分

硕士毕业

积分
17687

社区居民原创达人社区劳模最爱沙发

 楼主| 发表于 2012-7-20 13:46:05 | 显示全部楼层
房间用了温暖的鹅黄色,配一些白色的护墙板,再加个圆拱形的门,算田园还是搭了点地中海呢,反正是我喜欢的样子哦。

隆重介绍下房门外过道顶上的木吊顶哦,除了样子很喜欢之外,更重要的是它是有实际作用的。一共3条平行的,其中一条包了卫生间排风管道,另外一条遮住了原先敲掉的墙留下的一根梁。
30921453.jpg
回复

使用道具 举报

440

主题

7778

帖子

1万

积分

硕士毕业

积分
17687

社区居民原创达人社区劳模最爱沙发

 楼主| 发表于 2012-7-20 13:46:50 | 显示全部楼层
温暖的床加绗缝被的组合,再放个乡村老夫妇的小摆设,嘻嘻。


PS,很多TX问我这个背景是怎么做的,这个叫石膏板抠缝,喜欢的TX把图片给装修工人看看应该就会做咯。
30921459.jpg
回复

使用道具 举报

440

主题

7778

帖子

1万

积分

硕士毕业

积分
17687

社区居民原创达人社区劳模最爱沙发

 楼主| 发表于 2012-7-20 13:47:30 | 显示全部楼层
房子太小,场景就那么几个,大家包涵啊。自认为还搭调的窗帘来自TB,本来想弄个红色的,但是怕太女性化了,男的住里面会不会别扭,所以就蓝色了。
30921471.jpg
回复

使用道具 举报

440

主题

7778

帖子

1万

积分

硕士毕业

积分
17687

社区居民原创达人社区劳模最爱沙发

 楼主| 发表于 2012-7-20 13:48:09 | 显示全部楼层
房间的另一头--餐厅兼休闲区。

有储物功能的卡座+ikea的可折叠边桌(2个人吃饭也够了),砖墙和圆拱形窗户的组合,算是我小屋最小资的角落咯。
30921477.jpg
回复

使用道具 举报

440

主题

7778

帖子

1万

积分

硕士毕业

积分
17687

社区居民原创达人社区劳模最爱沙发

 楼主| 发表于 2012-7-20 13:48:30 | 显示全部楼层
小资角落全景,嘻嘻。
30921481.jpg
回复

使用道具 举报

440

主题

7778

帖子

1万

积分

硕士毕业

积分
17687

社区居民原创达人社区劳模最爱沙发

 楼主| 发表于 2012-7-20 13:49:06 | 显示全部楼层
这张可以清楚的看到前面说到的假梁吊顶哦
30921497.jpg
回复

使用道具 举报

您需要登录后才可以回帖 登录 | 立即注册

本版积分规则

装修百科|手机版|小黑屋|北京高老庄建筑装饰工程有限公司 ( 京ICP备19035109号 )

GMT+8, 2026-2-2 22:41 , Processed in 0.327940 second(s), 37 queries .

快速回复 返回顶部 返回列表