北京装修论坛 - 北京装修社区_高老庄工长装修

 找回密码
立即注册
热搜: 工长 设计 曝光
楼主: jingjing0416

124平米的三居小窝,混搭风格,开贴啦

[复制链接]

1

主题

28

帖子

67

积分

学前班

积分
67

社区居民

 楼主| 发表于 2015-11-17 11:26:08 | 显示全部楼层
窗户下面的柜子。
117504711.jpg
回复

使用道具 举报

1

主题

28

帖子

67

积分

学前班

积分
67

社区居民

 楼主| 发表于 2015-11-17 11:27:29 | 显示全部楼层
这是客厅的灯,个人比较喜欢哇!
手机照片20151016 122.JPG
回复

使用道具 举报

1

主题

28

帖子

67

积分

学前班

积分
67

社区居民

 楼主| 发表于 2015-11-17 11:28:18 | 显示全部楼层
次卧的衣柜
1352283367.jpg
回复

使用道具 举报

1

主题

28

帖子

67

积分

学前班

积分
67

社区居民

 楼主| 发表于 2015-11-17 11:29:09 | 显示全部楼层
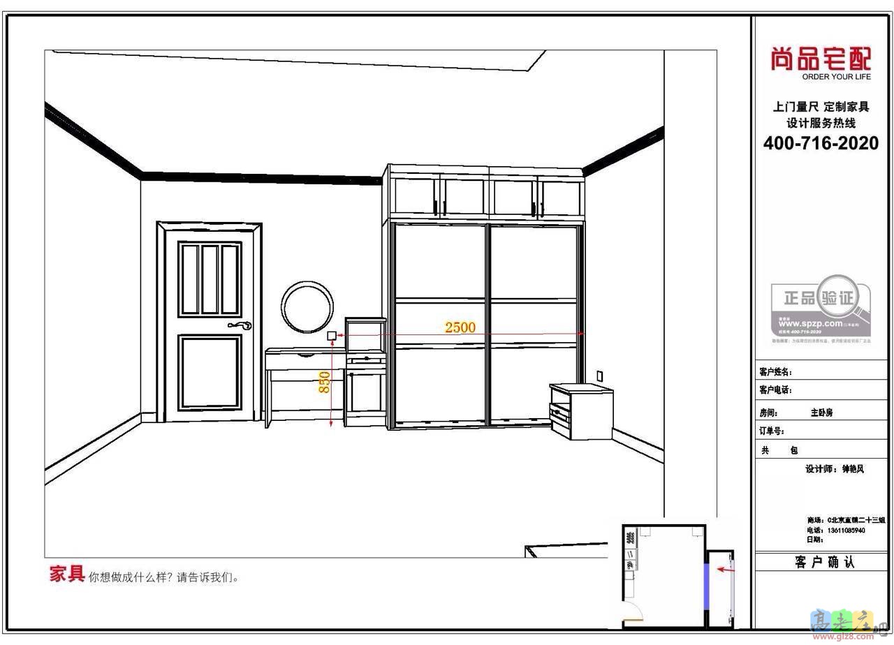
主卧家具的设计图
1666178604.jpg
回复

使用道具 举报

1

主题

28

帖子

67

积分

学前班

积分
67

社区居民

 楼主| 发表于 2015-11-17 11:30:03 | 显示全部楼层
主卧对面的桌子设计图
1693842870.jpg
回复

使用道具 举报

1

主题

28

帖子

67

积分

学前班

积分
67

社区居民

 楼主| 发表于 2015-11-17 11:31:12 | 显示全部楼层
主卧衣柜,后来都做成了推拉到顶的,看起来更大气一些,和原设计图略有不同。
1461590252.jpg
回复

使用道具 举报

1

主题

28

帖子

67

积分

学前班

积分
67

社区居民

 楼主| 发表于 2015-11-17 11:32:48 | 显示全部楼层
这是儿童房,也就是次卧的墙漆颜色……嘿嘿,我家一共用了三种不同颜色的漆,还有祝我贴了壁纸,花样较多
手机照片20151016 307.JPG
回复

使用道具 举报

13

主题

504

帖子

3307

积分

大专毕业

积分
3307

社区居民最爱沙发

发表于 2015-11-30 16:00:42 | 显示全部楼层
装修物品清单和价格发一个呗,谢谢楼主!我也打算装修一下下,参考您的大作了!
邮箱地址:hats911@163.com
回复

使用道具 举报

您需要登录后才可以回帖 登录 | 立即注册

本版积分规则

装修百科|手机版|小黑屋|北京高老庄建筑装饰工程有限公司 ( 京ICP备19035109号 )

GMT+8, 2026-3-18 20:08 , Processed in 0.769500 second(s), 25 queries .

快速回复 返回顶部 返回列表