北京装修论坛 - 北京装修社区_高老庄工长装修

 找回密码
立即注册
热搜: 工长 设计 曝光
查看: 2114|回复: 6

[装修讨论] 大家帮忙看看怎么一居室改两居合适

[复制链接]

1

主题

3

帖子

18

积分

学前班

积分
18

社区居民

发表于 2015-11-30 12:08:07 | 显示全部楼层 |阅读模式
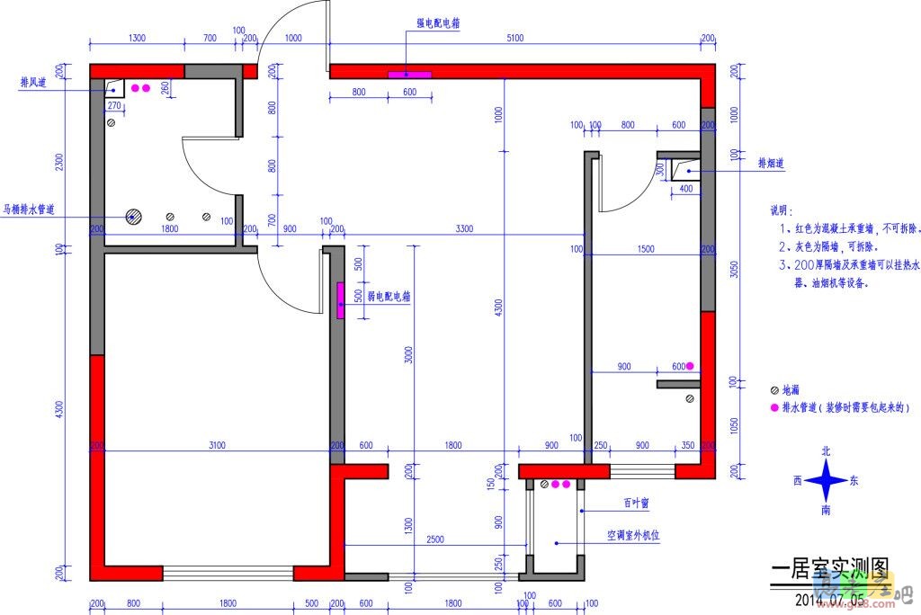
QQ图片20150419081957.jpg
回复

使用道具 举报

1

主题

3

帖子

18

积分

学前班

积分
18

社区居民

 楼主| 发表于 2015-11-30 12:10:51 | 显示全部楼层
不想入户门对着卧室门,一居室改成两居室,还需要有个吃饭的地方,怎么改才合适呢,求助大家了
回复

使用道具 举报

146

主题

4902

帖子

1万

积分

硕士毕业

积分
10281

社区居民忠实会员社区劳模最爱沙发社区明星

发表于 2015-11-30 12:52:49 | 显示全部楼层
一看而过
回复

使用道具 举报

1

主题

3

帖子

18

积分

学前班

积分
18

社区居民

 楼主| 发表于 2015-11-30 14:18:14 | 显示全部楼层

回 2楼(醉蟋蟀) 的帖子

醉蟋蟀:一看而过
1屋子小,,两排储物柜差不多可以放下家里所有的闲置物,有些东西不适合放在卧室柜里储放,如户外的东西,鞋子,旅行箱包包等,卧室就放置洗过的衣服和被子最好,
2,卧室门如果不对着房门我只能这样开门,,但有点影响卧室家具的摆放,小卧有点小,但也可以吧
....... (2015-11-30 12:52) 
谢谢,改完了之后,客厅会客的地方应该在什么地方呢??我没有看出来呀
回复

使用道具 举报

0

主题

259

帖子

4281

积分

设计师

积分
4281

社区居民忠实会员

QQ
发表于 2015-11-30 16:05:53 | 显示全部楼层
也许打破传统的利用思维,一个完美的两居室就出现了
用专业和责任来诠释一个职业的真实意义! 老庄吧签约独立设计师! 私信没有回复权限,敬请谅解。
回复

使用道具 举报

1

主题

4

帖子

40

积分

学前班

积分
40

社区居民

发表于 2015-12-7 17:36:24 | 显示全部楼层
你这图尺寸什么的标得好清楚,是交房时物业提供的吗?
回复

使用道具 举报

4

主题

103

帖子

224

积分

小学毕业

积分
224

社区居民

发表于 2015-12-7 18:05:08 | 显示全部楼层
要是我想改2居,就把屋里面所有的墙都打掉,然后东西两侧做2个卧室,中间做客厅,厨房位置做成了卧室,那厨房就要大改,把厨房改成敞开式或者半敞开式。需要大改水电,要是找到合适的设计师,大改以后效果肯定很惊喜。
回复

使用道具 举报

您需要登录后才可以回帖 登录 | 立即注册

本版积分规则

装修百科|手机版|小黑屋|北京高老庄建筑装饰工程有限公司 ( 京ICP备19035109号 )

GMT+8, 2026-3-25 14:47 , Processed in 1.039440 second(s), 29 queries .

快速回复 返回顶部 返回列表