北京装修论坛 - 北京装修社区_高老庄工长装修

 找回密码
立即注册
热搜: 工长 设计 曝光
查看: 5255|回复: 31

[装修讨论] 83平米二手房装修,高老庄施工基础装修已完工,表扬郑小水工长

[复制链接]

2

主题

41

帖子

96

积分

学前班

积分
96

社区居民

发表于 2015-12-9 16:48:05 | 显示全部楼层 |阅读模式
9月开始参加高老庄团购并预约装图吧设计和施工,1017日在高老庄签施工合同,1024日正式开工,基础装修128日基本完工了。
原户型是83平米的1室2厅,改造为2室1厅。

先说说对郑工长的表扬以及整体基础装修的评价
结识郑工长是在107日的高老庄团购会上,高老庄的工作人员向我们推荐了郑工长,郑工长的住所距离我们的房子是最近的。当天下午我们就拉着郑工长测量房子。
初识郑工长给人的印象是:和善、话不多,很实在,感觉挺可靠。之后的整个装修过程也验证了郑工长的确是个负责可靠的人。
正式签合同之前去郑工长正在施工的工地考察了一次。那个工地刚做完水电改造和防水,正在贴砖,看过后当时就决定和郑工长签约。
整个装修过程基本顺利,和郑工长的沟通一直都很顺畅,有问题时反馈都很及时。
郑工长平均2-3天就去工地查看,每次呆的时间都挺长,在几个比较重要的装修环节,郑工长更是全天亲自盯着。
郑工长对手下工人的施工质量要求高,经常自己要求工人对一些没做到位的地方返工。装修过程中难免有一些瑕疵或考虑不周之处,郑工长也是第一时间就反馈并安排修补。
郑工长是个能为业主着想的人,尽力不让我们多花冤枉钱,比如装修垃圾的清运,郑工长顶着物业的压力,坚持凑满一整车才运。我定的瓷砖不负责上门退货,郑工长也义务开车帮我拉剩余瓷砖退货。
我们的水电改造是请郑工长做的,没有任何绕线,做的很到位,微信群里高老庄工作人员也说专业。
总体上我们对这次基础装修是满意的。在此也感谢郑工长的辛勤付出。接下来还要麻烦郑工长给我们安装开关面板、灯具和各类墙上挂件。以后如果再有房子装修还会请郑工长。



未完待续,之后还有大量团购或自购的主材需要安装,装修过程的照片也会陆续放出
回复

使用道具 举报

24

主题

1万

帖子

2万

积分

硕士毕业

积分
20710

社区居民最爱沙发忠实会员社区劳模社区明星

发表于 2015-12-9 17:28:11 | 显示全部楼层
期待楼主上传装修现场照片。。
回复

使用道具 举报

2

主题

41

帖子

96

积分

学前班

积分
96

社区居民

 楼主| 发表于 2015-12-9 17:45:04 | 显示全部楼层
原始户型
远洋天地二期-10 -原始平面-发帖.jpg

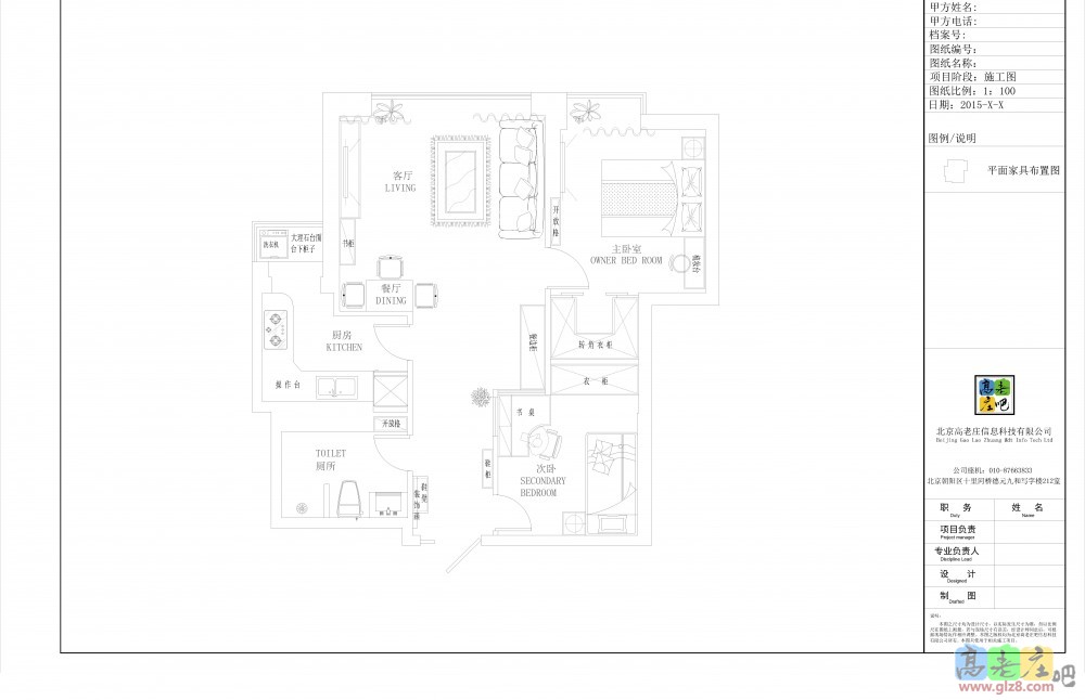
庄图吧设计后的布局
远洋天地二期-7 -家具布置 - 发帖.jpg

对庄图吧的点评:庄图吧的设计人员还是很努力的,整个设计过程沟通无障碍,测量时设计师就提出了几项很好的建议我们都采纳了,庄图吧的设计师帮助把我们初步设想很好地体现在了图纸上,让我们能比较直观地看到效果。虽然现场施工后发现有些地方还不合理,但总体设计并没有变化。设计过程中也反复修改了几稿,设计师都加班加点地赶稿。之后在建材选购中我们也就颜色、款式等咨询了设计师,都有很好的反馈意见,感谢庄图吧的工作人员。
回复

使用道具 举报

2

主题

41

帖子

96

积分

学前班

积分
96

社区居民

 楼主| 发表于 2015-12-9 18:54:24 | 显示全部楼层
拆旧前的照片
IMG_1587.JPG IMG_1586.JPG IMG_1593.JPG IMG_1640.JPG IMG_1618.JPG IMG_1617.JPG IMG_1610.JPG IMG_1612.JPG IMG_1613.JPG
回复

使用道具 举报

2

主题

41

帖子

96

积分

学前班

积分
96

社区居民

 楼主| 发表于 2015-12-9 20:16:40 | 显示全部楼层
拆旧。原来以为要拆的非承重墙只是轻体砖,结果拆开一看都有钢筋,要拆的墙体还不少,花了一周时间才拆完
IMG_1758.JPG IMG_1759.JPG IMG_1760.JPG IMG_1761.JPG IMG_1762.JPG IMG_1763.JPG IMG_1764.JPG IMG_1766.JPG IMG_1768.JPG IMG_1769.JPG
IMG_1770.JPG
回复

使用道具 举报

2

主题

41

帖子

96

积分

学前班

积分
96

社区居民

 楼主| 发表于 2015-12-9 20:24:39 | 显示全部楼层
拆旧前郑工长很仔细地把窗都保护起来了,原来的窗还不错,本着能省就省的原则就不换窗户了。
回复

使用道具 举报

2

主题

41

帖子

96

积分

学前班

积分
96

社区居民

 楼主| 发表于 2015-12-11 10:41:19 | 显示全部楼层
砌墙
IMG_1786.JPG IMG_1787.JPG IMG_1788.JPG IMG_1789.JPG IMG_1790.JPG IMG_1791.JPG IMG_1792.JPG IMG_1793.JPG
回复

使用道具 举报

9

主题

207

帖子

441

积分

初中毕业

积分
441

社区居民

发表于 2015-12-11 10:58:06 | 显示全部楼层
楼主家在什么地方?
回复

使用道具 举报

2

主题

41

帖子

96

积分

学前班

积分
96

社区居民

 楼主| 发表于 2015-12-11 11:12:38 | 显示全部楼层
暖气改造。暖气是吧里的陇星团购,户型格局改变后原来的暖气片位置很多不合理,改造较多。装修开始前就请陇星的张工来测量。拆旧砌墙结束时小区已经提前开始供暖了,还好每户有独立控制阀门。陇星的服务很好,改管一天结束,打压后无问题。期待壁纸贴完后的散热片安装效果。
IMG_1794.JPG IMG_1795.JPG IMG_1796.JPG IMG_1797.JPG IMG_1798.JPG IMG_1800.JPG IMG_1801.JPG
回复

使用道具 举报

2

主题

41

帖子

96

积分

学前班

积分
96

社区居民

 楼主| 发表于 2015-12-11 11:13:27 | 显示全部楼层

回 7楼(孙大官人) 的帖子

孙大官人:楼主家在什么地方? (2015-12-11 10:58) 
东四环慈云寺
回复

使用道具 举报

您需要登录后才可以回帖 登录 | 立即注册

本版积分规则

装修百科|手机版|小黑屋|北京高老庄建筑装饰工程有限公司 ( 京ICP备19035109号 )

GMT+8, 2026-3-24 13:54 , Processed in 1.571689 second(s), 33 queries .

快速回复 返回顶部 返回列表