北京装修论坛 - 北京装修社区_高老庄工长装修

 找回密码
立即注册
热搜: 工长 设计 曝光
查看: 2419|回复: 6

[装修讨论] 奇葩户型

[复制链接]

4

主题

21

帖子

58

积分

学前班

积分
58

社区居民

发表于 2016-1-12 13:50:25 | 显示全部楼层 |阅读模式
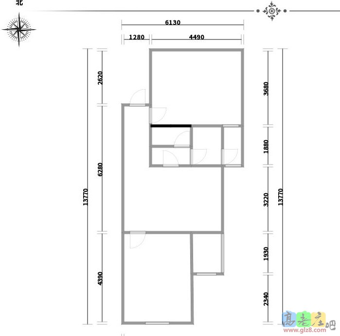
因为米少,无奈只能买这么个奇葩户型。自从签完合同后没有一点喜悦之情,剩下的全是烦恼,建筑面积88,实际套内也就68,还有一个狭长的过道,客厅窄不说,还不够长,不长就算了,还到处是门,,哎,愁死我了。 北京_宝汇苑_2015-12-21-1554.jpg
回复

使用道具 举报

481

主题

1万

帖子

5万

积分

博士毕业

积分
52600

社区居民优秀斑竹宣传大使最爱沙发社区劳模社区明星忠实会员

发表于 2016-1-12 14:01:00 | 显示全部楼层
管道,地漏的地方画一下啊,厨卫好画出来。

如果单从实用角度讲,尽量拆一些隔断,把没用的去了。增加其他地方的空间,这样装修会更节省些。
回复

使用道具 举报

4

主题

21

帖子

58

积分

学前班

积分
58

社区居民

 楼主| 发表于 2016-1-12 14:08:32 | 显示全部楼层
677797.jpg.600x450.jpg 基本上是这个样子,现在房子还没到手,具体的细节还不了解!
回复

使用道具 举报

4

主题

99

帖子

186

积分

小学毕业

积分
186

社区居民

发表于 2016-1-13 16:59:25 | 显示全部楼层
重新划定功能区,将一个卧室改成客厅,缩小厨房和卫生间的大小,不要阳台了,这样功能能最大化 2_42615_edbd61a26a8b044.jpg
回复

使用道具 举报

4

主题

21

帖子

58

积分

学前班

积分
58

社区居民

 楼主| 发表于 2016-1-14 12:42:59 | 显示全部楼层

回 3楼(jiqjiq) 的帖子

jiqjiq:重新划定功能区,将一个卧室改成客厅,缩小厨房和卫生间的大小,不要阳台了,这样功能能最大化
 (2016-01-13 16:59) 
首先谢谢这位朋友,思考后给了这么多的建议。因为房子还没到手,所以户型的细节没有标注,这里也些是承重强,应该动不了。等房子到手,各细节了解了,再请这位朋友一起探讨!
回复

使用道具 举报

1

主题

143

帖子

307

积分

初中毕业

积分
307

社区居民

发表于 2016-1-14 14:45:13 | 显示全部楼层
其实这个户型还好啦。你看看那些老房子才难受呢。客厅那么小真心是不知道怎么安排。
回复

使用道具 举报

4

主题

99

帖子

186

积分

小学毕业

积分
186

社区居民

发表于 2016-1-14 15:27:34 | 显示全部楼层

回 4楼(wuer_521) 的帖子

wuer_521:首先谢谢这位朋友,思考后给了这么多的建议。因为房子还没到手,所以户型的细节没有标注,这里也些是承重强,应该动不了。等房子到手,各细节了解了,再请这位朋友一起探讨! (2016-01-14 12:42) 
嗯,另外记得画出来烟道、水道、风道的位置,这些都很重要。
回复

使用道具 举报

您需要登录后才可以回帖 登录 | 立即注册

本版积分规则

装修百科|手机版|小黑屋|北京高老庄建筑装饰工程有限公司 ( 京ICP备19035109号 )

GMT+8, 2026-3-25 06:41 , Processed in 0.153992 second(s), 31 queries .

快速回复 返回顶部 返回列表