北京装修论坛 - 北京装修社区_高老庄工长装修

 找回密码
立即注册
热搜: 工长 设计 曝光
查看: 1659|回复: 4

[装修讨论] 准备摆放2台洗衣机。如何实现?

[复制链接]

205

主题

3255

帖子

1万

积分

硕士毕业

积分
11168

社区居民忠实会员最爱沙发社区劳模社区明星

发表于 2016-2-17 13:25:30 | 显示全部楼层 |阅读模式
原因不提。谢谢大家帮助啊!
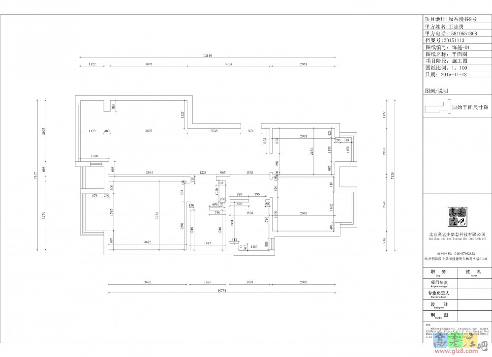
原香漫谷图纸-1.jpg
回复

使用道具 举报

24

主题

1万

帖子

2万

积分

硕士毕业

积分
20710

社区居民最爱沙发忠实会员社区劳模社区明星

发表于 2016-2-17 18:12:45 | 显示全部楼层
厨房或阳台摆放一个,卫生间摆一个。
回复

使用道具 举报

205

主题

3255

帖子

1万

积分

硕士毕业

积分
11168

社区居民忠实会员最爱沙发社区劳模社区明星

 楼主| 发表于 2016-2-26 10:32:58 | 显示全部楼层

回 1楼(王建) 的帖子

王建:厨房或阳台摆放一个,卫生间摆一个。 (2016-02-17 18:12) 
阳台放不了,没有上下水。上水还好解决,下水几乎没办法。
和设计师沟通,觉得办法是做成上下层的那种放洗衣机,有什么好建议么?
回复

使用道具 举报

14

主题

1658

帖子

4万

积分

硕士毕业

积分
49611

社区居民忠实会员最爱沙发

发表于 2016-2-26 10:47:05 | 显示全部楼层
烘干+洗衣机是可以上下摞着的。两台洗衣机,没有见过。。。
回复

使用道具 举报

11

主题

120

帖子

302

积分

初中毕业

积分
302

社区居民

发表于 2016-2-26 14:18:55 | 显示全部楼层
以前我家有俩洗衣机,一大一小并排,地方也不太大,为此特意选的上翻盖的滚筒,惠而浦的,小的是海尔的小小神童,十多年前的事儿了
回复

使用道具 举报

您需要登录后才可以回帖 登录 | 立即注册

本版积分规则

装修百科|手机版|小黑屋|北京高老庄建筑装饰工程有限公司 ( 京ICP备19035109号 )

GMT+8, 2026-3-24 21:35 , Processed in 0.106511 second(s), 27 queries .

快速回复 返回顶部 返回列表