北京装修论坛 - 北京装修社区_高老庄工长装修

 找回密码
立即注册
热搜: 工长 设计 曝光
查看: 22526|回复: 65

精彩装修图片《极致简约绝非一般的简约设计,设计师称之为裸设计》

[复制链接]

440

主题

7778

帖子

1万

积分

硕士毕业

积分
17687

社区居民原创达人社区劳模最爱沙发

发表于 2012-8-1 16:47:51 | 显示全部楼层 |阅读模式
精彩装修图片转帖第459篇:《极致简约绝非一般的简约设计,设计师称之为裸设计》
原日记来源:篱笆网
原作者:  zhou_hs

老庄推荐原因:楼主的家装修的很别致,88平的面积每一处都利用上了。设计师设计的很独特,实现了楼主想要一个与众不同的家的愿望,楼主在配图的同时也配上详细的说明,很适合参考学习。
6_41_566586b616936f5.jpg
回复

使用道具 举报

440

主题

7778

帖子

1万

积分

硕士毕业

积分
17687

社区居民原创达人社区劳模最爱沙发

 楼主| 发表于 2012-8-1 16:49:39 | 显示全部楼层
● 楼盘:印象春城

● 房型:2房2厅1卫

● 建筑面积:89m2

● 装修风格:我就要求设计师给我一个与众不同的家

● 预算:全部搞定到我入住18W左右(我要求设计师在保证质量及不破坏设计风格的前提下,总价控制到越低越好)

● 设计师:我的好朋友(他一般只做些大型的工装项目,也算是卖我个面子,接了个小私活)

看到这样的户型,反正我是一点想法都没有了。
回复

使用道具 举报

440

主题

7778

帖子

1万

积分

硕士毕业

积分
17687

社区居民原创达人社区劳模最爱沙发

 楼主| 发表于 2012-8-1 16:49:55 | 显示全部楼层
真的是术业有专攻啊!不得不承认,在我眼里一套房型不那么好的户型(当初买的时候就是考虑到两朝南的房间,比较适合以后孩子的成长,当然也有价格方面的考虑,同样的楼层南北通透的户型要贵上十几万,装修费就直接省出来了,何乐不为呢。)在设计师眼里却觉得有发展空间。
紧跟着我列了一下需求,供设计师参考。(有一点小小的贪心,希望不要被鄙视了
1.设计风格要简约,要与众不同,要有个性,有情调,但不能不实用。
2.有不影响空间的情况下,需要有足够多储物空间。
3.次卧需要做成一个多功能房,因为暂时就我们俩口子住,孩子先不用考虑,但是得为将来有孩子了以后的改造提供便利,想办法合理利用。
4.餐厅采光不好,可以考虑做开放的,反正我们基本也不会在家做饭。
5.客厅采光不好,求解决方案。
6.最好能有一个衣帽间(对于88平米的两房来说,我觉得这点挺过分的,呵呵! 就当许愿啦!)
回复

使用道具 举报

440

主题

7778

帖子

1万

积分

硕士毕业

积分
17687

社区居民原创达人社区劳模最爱沙发

 楼主| 发表于 2012-8-1 16:51:15 | 显示全部楼层
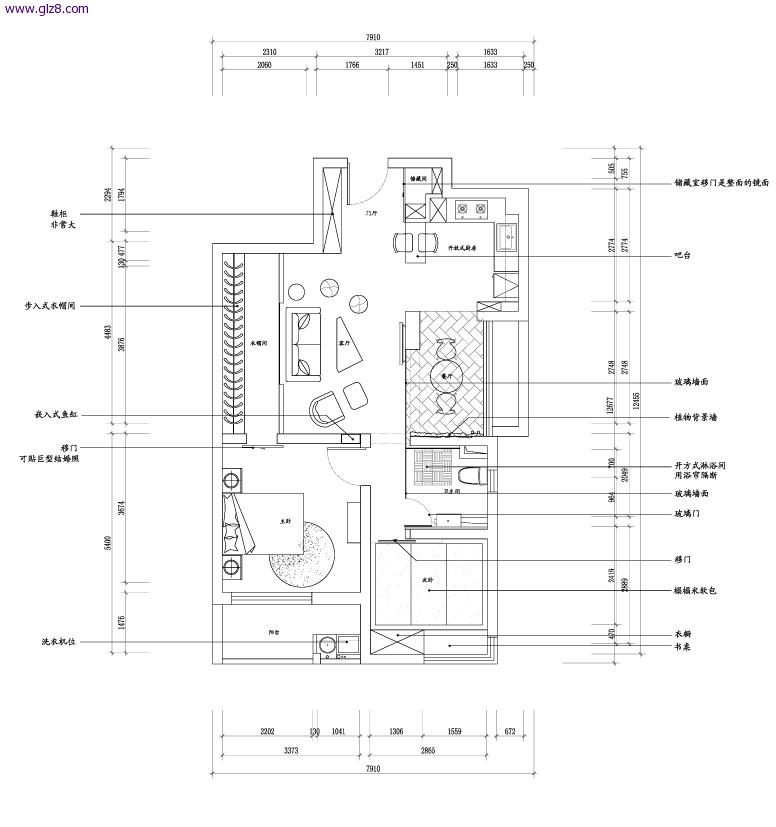
方案出来了,我的愿望尽然全都实现了,设计师还给了不少亮点,让我喜出望外。
35275280.jpg
回复

使用道具 举报

440

主题

7778

帖子

1万

积分

硕士毕业

积分
17687

社区居民原创达人社区劳模最爱沙发

 楼主| 发表于 2012-8-1 16:55:55 | 显示全部楼层
由于我的作业是补交的,施工也是全包的,所以过程也没多少心得与大家分享了,直接上点图啦!
35275435.jpg
回复

使用道具 举报

440

主题

7778

帖子

1万

积分

硕士毕业

积分
17687

社区居民原创达人社区劳模最爱沙发

 楼主| 发表于 2012-8-1 16:56:44 | 显示全部楼层
水电管线排的还是整齐有序的,横平竖直的,虽然是隐蔽工程,但是看上去一点都不马虎啊。赞一个!
35275505.jpg
回复

使用道具 举报

440

主题

7778

帖子

1万

积分

硕士毕业

积分
17687

社区居民原创达人社区劳模最爱沙发

 楼主| 发表于 2012-8-1 17:06:32 | 显示全部楼层
卧室线路。
35275588.jpg
回复

使用道具 举报

440

主题

7778

帖子

1万

积分

硕士毕业

积分
17687

社区居民原创达人社区劳模最爱沙发

 楼主| 发表于 2012-8-1 17:07:16 | 显示全部楼层
我虽然不懂怎么分别这个施工质量的好坏,但是这样的做工,看着就是顺眼。
35276290.jpg
回复

使用道具 举报

440

主题

7778

帖子

1万

积分

硕士毕业

积分
17687

社区居民原创达人社区劳模最爱沙发

 楼主| 发表于 2012-8-1 17:08:10 | 显示全部楼层
中央空调安装完毕。
35275881.jpg
回复

使用道具 举报

440

主题

7778

帖子

1万

积分

硕士毕业

积分
17687

社区居民原创达人社区劳模最爱沙发

 楼主| 发表于 2012-8-1 17:10:23 | 显示全部楼层
预算有限,设计师给我推荐了格力的一拖三的空调,我觉得性价比不错。

35275892.jpg
回复

使用道具 举报

您需要登录后才可以回帖 登录 | 立即注册

本版积分规则

装修百科|手机版|小黑屋|北京高老庄建筑装饰工程有限公司 ( 京ICP备19035109号 )

GMT+8, 2026-4-9 00:32 , Processed in 0.975559 second(s), 35 queries .

快速回复 返回顶部 返回列表