北京装修论坛 - 北京装修社区_高老庄工长装修

 找回密码
立即注册
热搜: 工长 设计 曝光
楼主: shanqy66

[装修讨论] 这个2居是否可以改成3居?

[复制链接]

21

主题

81

帖子

210

积分

小学毕业

积分
210

社区居民

 楼主| 发表于 2016-3-24 10:04:21 | 显示全部楼层

回 10楼(mumunan) 的帖子

mumunan:
如果楼主不打算在客厅放电视,而要放书架的话,其实可以考虑完全放弃传统客厅沙发配电视墙的做法,改做餐厅,摆一张大桌子加一整面墙的书架,考虑到楼主家近几年至少要满足五人就餐,大餐桌还是必要的,非就餐时间可成为家庭活动区,阅读、休闲、上网等,厨房 .. (2016-03-19 12:49)
别人也这么说,一个小黑屋子很不好。按照您这种设计,与厨房相接的部分,那里应该是挡着的,对吧?其他部分,拉个帘子? 如果这样设计,进门地方就没法放一个鞋柜了,对吧?
回复

使用道具 举报

9

主题

354

帖子

759

积分

高中毕业

积分
759

社区居民

发表于 2016-3-25 08:50:44 | 显示全部楼层

回 5楼(sunlightguan) 的帖子

sunlightguan:打通阳台,沙发后面的做玻璃墙。餐桌和书桌用一个,靠左边的墙设卡座。
缺点是客厅采光稍差。

(2016-03-04 23:42)
同意这个方案,建议在这个布局中,不用实墙隔断,采用榻榻米+玻璃移门+帘。榻榻米上的升降桌也可以看书、学习。餐桌完全可以作为大人的书桌使用,注意孩子座椅的高度。
回复

使用道具 举报

1

主题

28

帖子

86

积分

学前班

积分
86

社区居民忠实会员

发表于 2016-3-28 11:55:48 | 显示全部楼层
QQ截图20160328114556.png
在图示蓝框位置打一排矮柜可以做鞋柜,上面可以选日式的竹帘,不用的时候卷上去
跟厨房相接的部分做个隔墙就好,砌块直接砌就可以
回复

使用道具 举报

1

主题

70

帖子

287

积分

小学毕业

积分
287

社区居民

发表于 2016-5-20 16:09:12 | 显示全部楼层
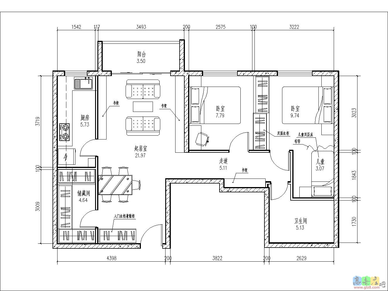
刚看到,有点想法,大概画了下:

根据lz的描述,其实并不一定是三居才行,老人来照顾孩子,小孩年纪小,可以和大人一个屋子,方便照顾。
等小宝长大了,老人估计也不长住了。结合人口多的情况,调整了房间的布局。
plan2016-0301-Model.jpg
回复

使用道具 举报

您需要登录后才可以回帖 登录 | 立即注册

本版积分规则

装修百科|手机版|小黑屋|北京高老庄建筑装饰工程有限公司 ( 京ICP备19035109号 )

GMT+8, 2026-3-23 14:21 , Processed in 0.286242 second(s), 30 queries .

快速回复 返回顶部 返回列表