
|
2539| 8
|
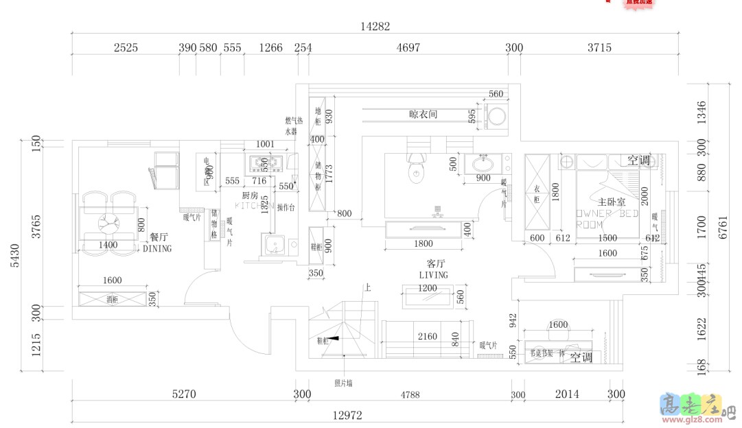
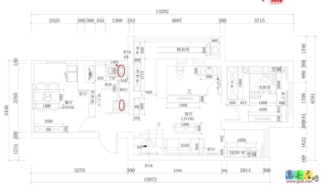
[装修讨论] 老房装修改造,敬请群里各位装修达人给提点建议! |
| ||
回 1楼(醉蟋蟀) 的帖子
| ||
| ||
回 3楼(ray75) 的帖子
| ||
回 4楼(ww_oscar) 的帖子
| ||
回 4楼(ww_oscar) 的帖子
| ||
回 6楼(ray75) 的帖子
| ||
装修百科|手机版|小黑屋|北京高老庄建筑装饰工程有限公司 ( 京ICP备19035109号 )
GMT+8, 2026-3-24 12:17 , Processed in 0.205235 second(s), 30 queries .