北京装修论坛 - 北京装修社区_高老庄工长装修

 找回密码
立即注册
热搜: 工长 设计 曝光
查看: 2525|回复: 7

[装修讨论] 跪求各路大神帮我看看图

[复制链接]

4

主题

44

帖子

197

积分

小学毕业

积分
197

社区居民

发表于 2016-3-21 13:12:41 | 显示全部楼层 |阅读模式
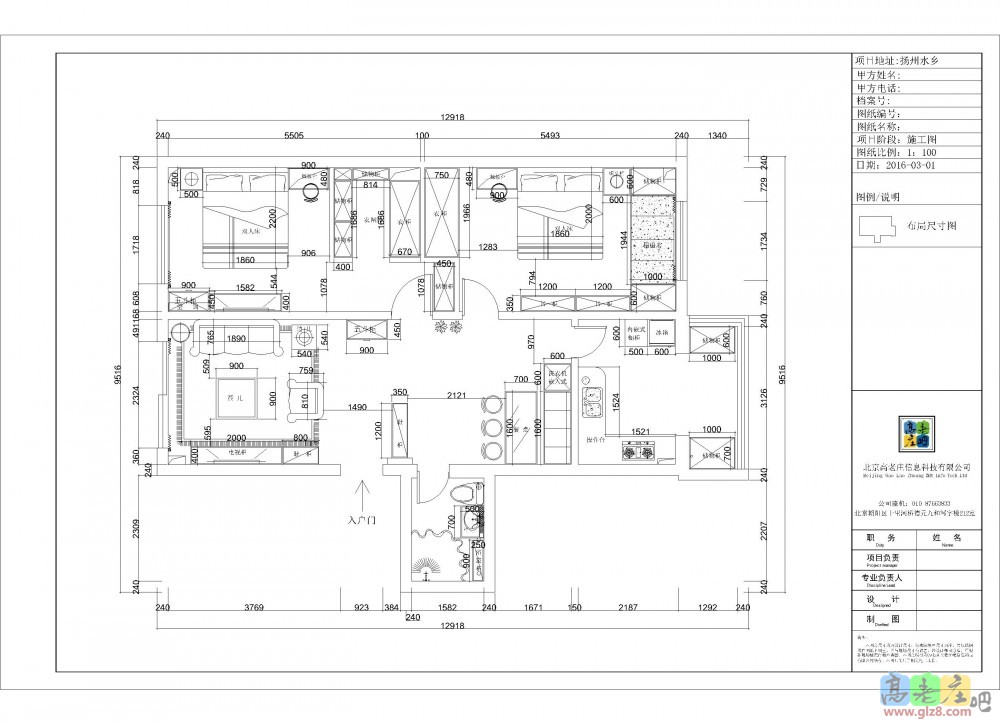
图庄吧的设计师给出的图,本人小白,对于装修是一窍不通。父母又长期居住外地,最多过年来陪我住俩月,平时就我一个人居住。目前提出的问题有:1.主卧梳妆台换床头柜,不放电视,那么床正对的墙空着么?2.次卧书柜取消,我实在没什么书,做的假飘窗,想在靠窗的储物柜侧面做出几个格子放几本闲书,这样坐在飘窗上看书,方便取放,不知道会不会看起来很乱?3.沙发尺寸给的太小,一个不好买,再一个坐起来舒适度不够好,让设计师从新改一下。4.冰箱预留尺寸太小,放不下,而且冰箱北面的墙是700的会影响冰箱门打开。别的还没有想好,求大家帮我看看。
扬州水乡-5Model.jpg
回复

使用道具 举报

146

主题

4902

帖子

1万

积分

硕士毕业

积分
10281

社区居民忠实会员社区劳模最爱沙发社区明星

发表于 2016-3-21 14:02:06 | 显示全部楼层
一看而过,尺寸没问题
2_41914_a36bd9e948ff750.jpg
回复

使用道具 举报

4

主题

44

帖子

197

积分

小学毕业

积分
197

社区居民

 楼主| 发表于 2016-3-21 20:50:15 | 显示全部楼层

回 1楼(醉蟋蟀) 的帖子

醉蟋蟀:一看而过,尺寸没问题

 (2016-03-21 14:02) 
谢谢您的建议,看过您为女儿装修的婚房,应该叫您声阿姨了😊。您提的建议觉得很好,但是有几个问题,一个是设计师画图时漏了标注一个位置,就是灶台靠墙有一个67cm×30cm的包管,里面是水管的立管和水表,中水和自来水,因为没有拆旧呢,所以只能从检修口看到里面乱七八槽的好多管,如果改成您设计的样式,那么就等于灶台和水盆中立着一个30公分厚的立柱,不能形成一个宽敞的操作台,不太好看。还有,厨房只有一个下水,就是现在水槽的位置,那么,新的水槽,洗脸盆,洗衣机都要做下水,这个施工上可以实现么?麻烦您费心帮我想想
回复

使用道具 举报

4

主题

44

帖子

197

积分

小学毕业

积分
197

社区居民

 楼主| 发表于 2016-3-21 20:52:33 | 显示全部楼层

回 2楼(古往今来) 的帖子

古往今来:客厅是落地窗吗? (2016-03-21 18:40) 
是的,外面是一个露台,不准备封上了,夏天可以烤串了😁
回复

使用道具 举报

146

主题

4902

帖子

1万

积分

硕士毕业

积分
10281

社区居民忠实会员社区劳模最爱沙发社区明星

发表于 2016-3-21 21:00:30 | 显示全部楼层
2_41914_a36bd9e948ff750.jpg
回复

使用道具 举报

4

主题

44

帖子

197

积分

小学毕业

积分
197

社区居民

 楼主| 发表于 2016-3-22 09:16:44 | 显示全部楼层

回 5楼(醉蟋蟀) 的帖子

醉蟋蟀: (2016-03-21 21:00) 
谢谢您的指导,我再和设计师确认一下尺寸
回复

使用道具 举报

14

主题

1658

帖子

4万

积分

硕士毕业

积分
49611

社区居民忠实会员最爱沙发

发表于 2016-3-22 10:44:55 | 显示全部楼层

回 7楼(weiweiender) 的帖子

weiweiender:谢谢您的指导,我再和设计师确认一下尺寸 (2016-03-22 09:16) 
按蟋蟀改的,洗衣机、水盆下水都要走厕所。可以改。
回复

使用道具 举报

4

主题

44

帖子

197

积分

小学毕业

积分
197

社区居民

 楼主| 发表于 2016-3-23 18:34:18 | 显示全部楼层

回 8楼(yi花yi世界) 的帖子

yi花yi世界:按蟋蟀改的,洗衣机、水盆下水都要走厕所。可以改。 (2016-03-22 10:44) 
设计师出了第二套方案,还是觉得不好😕,继续改
回复

使用道具 举报

您需要登录后才可以回帖 登录 | 立即注册

本版积分规则

装修百科|手机版|小黑屋|北京高老庄建筑装饰工程有限公司 ( 京ICP备19035109号 )

GMT+8, 2026-3-24 10:46 , Processed in 0.714138 second(s), 32 queries .

快速回复 返回顶部 返回列表