北京装修论坛 - 北京装修社区_高老庄工长装修

 找回密码
立即注册
热搜: 工长 设计 曝光
查看: 1736|回复: 1

[装修讨论] 老房装修工程预交底清单出来了,大神帮忙看一下是否合理

[复制链接]

30

主题

69

帖子

216

积分

小学毕业

积分
216

社区居民忠实会员

发表于 2016-4-18 10:09:24 | 显示全部楼层 |阅读模式
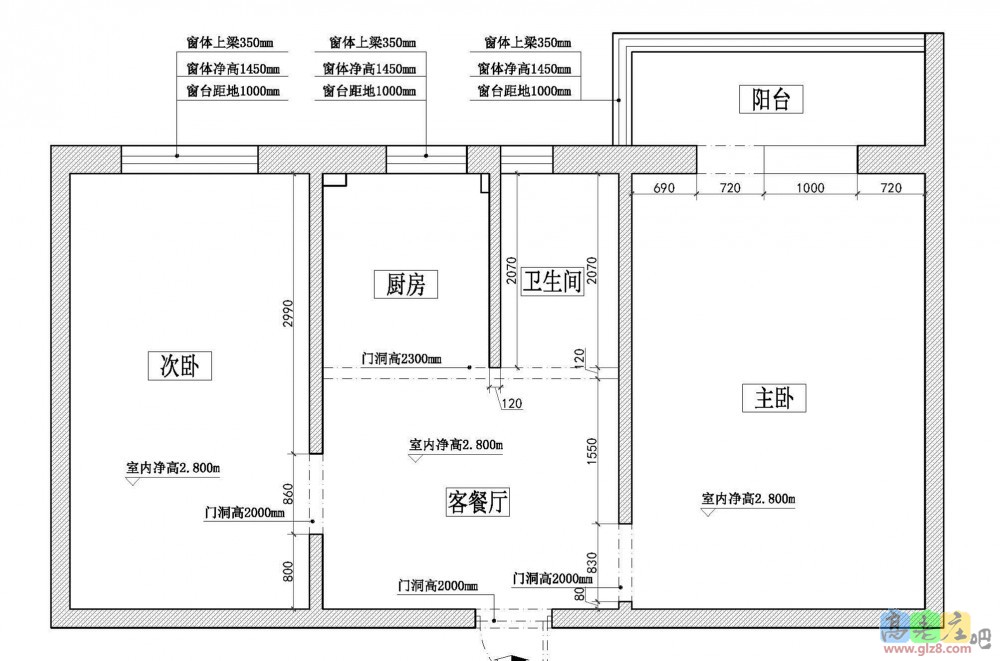
房子面积60平,下面是户型和预交底的清单,看不太明白,大神门帮忙看一下!
老房自拆,拆除费3600元
次卧的门要移一下,厨房是推拉门,厕所是正常门,可能有一点墙体重建,其他格局不变
光熙门马先生20160403(1)_副本.jpg
图片1.png
回复

使用道具 举报

481

主题

1万

帖子

5万

积分

博士毕业

积分
52600

社区居民优秀斑竹宣传大使最爱沙发社区劳模社区明星忠实会员

发表于 2016-4-18 10:25:43 | 显示全部楼层
你这个交底的是一些施工项目,这个也没办法看的,这个是和楼主的房屋具体情况而定的,看图片在结合真题装修所需的项目,你这个差了好多呢,楼主可以看看吧里的报价做下参考。http://bbs.glz.cn/job.php?action=download&aid=111264
回复

使用道具 举报

您需要登录后才可以回帖 登录 | 立即注册

本版积分规则

装修百科|手机版|小黑屋|北京高老庄建筑装饰工程有限公司 ( 京ICP备19035109号 )

GMT+8, 2026-3-24 02:39 , Processed in 0.150849 second(s), 27 queries .

快速回复 返回顶部 返回列表