北京装修论坛 - 北京装修社区_高老庄工长装修

 找回密码
立即注册
热搜: 工长 设计 曝光
楼主: jk_hello

装修日记——边装边写,记录进程(更新:沙发进场)

[复制链接]

3

主题

372

帖子

799

积分

高中毕业

积分
799

社区居民

发表于 2016-5-19 11:50:10 | 显示全部楼层
2_48099_d91c9ca3bf9d965.jpg

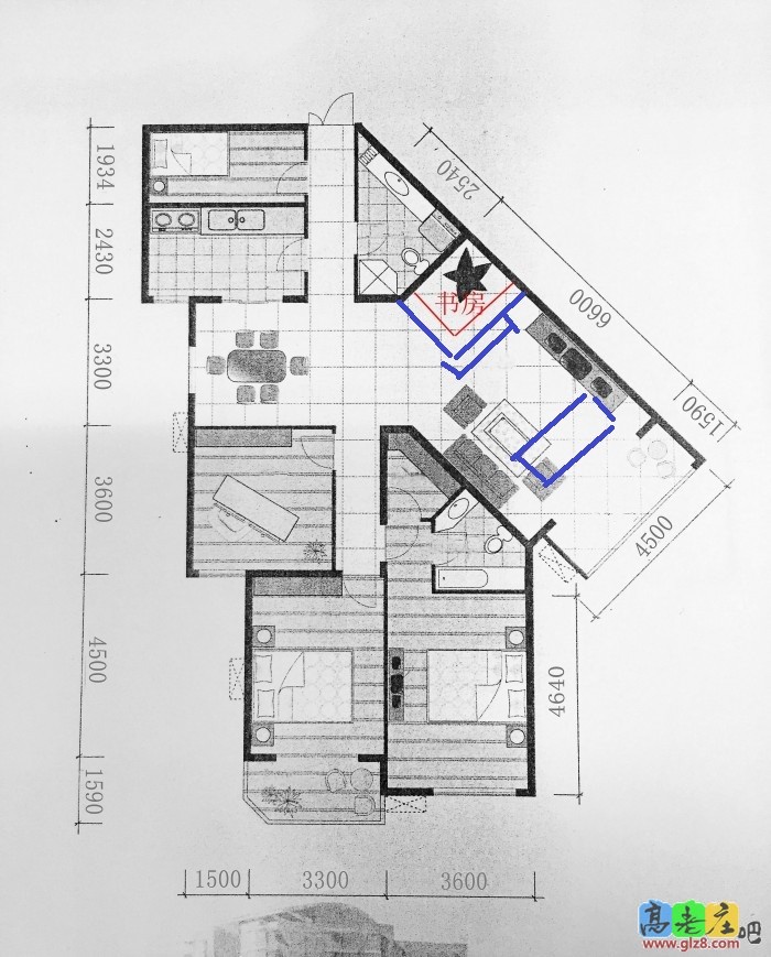
纯属技术交流啊,书房可以做玻璃墙拉帘子,这样不档光或者做半开放式的书房,然后电视做半高墙(也是书房墙)沙发变化摆放位置
回复

使用道具 举报

1

主题

51

帖子

111

积分

小学毕业

积分
111

社区居民

发表于 2016-5-19 14:43:23 | 显示全部楼层
豪宅啊,祝装修顺利!
回复

使用道具 举报

13

主题

296

帖子

1717

积分

大专毕业

积分
1717

社区居民忠实会员

 楼主| 发表于 2016-5-23 10:12:02 | 显示全部楼层

回 20楼(china_gege) 的帖子

china_gege:终于看到你的大做了,,,,墙面打算怎么处理啊,,,看起是内保温层 (2016-05-19 11:34) 
准备贴壁纸了。刷漆怕时间久了有黑条、
回复

使用道具 举报

13

主题

296

帖子

1717

积分

大专毕业

积分
1717

社区居民忠实会员

 楼主| 发表于 2016-5-23 10:15:34 | 显示全部楼层

回 21楼(barson) 的帖子

barson:

纯属技术交流啊,书房可以做玻璃墙拉帘子,这样不档光或者做半开放式的书房,然后电视做半高墙(也是书房墙)沙发变化摆放位置 (2016-05-19 11:50) 
谢谢你的思路。这样的话,沙发背对阳台,可能看电视的时候,电视上会有外面的影子,可能看电视不太清楚了。
回复

使用道具 举报

13

主题

296

帖子

1717

积分

大专毕业

积分
1717

社区居民忠实会员

 楼主| 发表于 2016-5-23 10:16:07 | 显示全部楼层

回 22楼(迷路的风) 的帖子

迷路的风:豪宅啊,祝装修顺利! (2016-05-19 14:43) 
一般的二手房,算不上豪宅,就是位置还可以。
回复

使用道具 举报

13

主题

296

帖子

1717

积分

大专毕业

积分
1717

社区居民忠实会员

 楼主| 发表于 2016-5-23 10:20:43 | 显示全部楼层
继续更新,水电改造进度汇报。

材料进场。
IMG_3075.JPG
IMG_3076.JPG
IMG_3077.JPG
IMG_3074.JPG

开槽开始。
IMG_3070.JPG
IMG_3071.JPG
IMG_3072.JPG
IMG_3073.JPG
IMG_3086.JPG
IMG_3085.JPG
IMG_3088.JPG
预留的投影电影和数据线

媳妇儿超级喜欢吃火锅,所以中间地面预留地插,以后吃火锅就方便了。
IMG_3087.JPG
IMG_3090.JPG
回复

使用道具 举报

3

主题

372

帖子

799

积分

高中毕业

积分
799

社区居民

发表于 2016-5-23 13:57:29 | 显示全部楼层

回 24楼(jk_hello) 的帖子

jk_hello:谢谢你的思路。这样的话,沙发背对阳台,可能看电视的时候,电视上会有外面的影子,可能看电视不太清楚了。 (2016-05-23 10:15) 
应该还好,不是阳光直接照射,影子不会太强
回复

使用道具 举报

13

主题

296

帖子

1717

积分

大专毕业

积分
1717

社区居民忠实会员

 楼主| 发表于 2016-6-1 17:36:17 | 显示全部楼层
水电改造完毕,也验收了。感觉师傅也很实在,我的很棘手的问题都顺利解决了,虽然也花了不少钱,但是感觉很值。这个很重要。

原先业主的装修,强电箱做在了柜子里面,实在是柜子质量太好,舍不得破坏,但是电路改造很麻烦,怎么办呢?
IMG_2905.JPG
IMG_2899.JPG

下面来看师傅的改造方案,真是绝,一点都没破坏现在的柜子。
成功从强电箱侧面开槽进去,只是破坏强电箱的侧面面板,然后接线出来,一切ok。
看下面这张图就知道为啥麻烦了,因为在这个墙的里面是衣柜,外面还有一个内嵌式的鞋柜。
所以师傅能想出这样的办法来改造电路,一点都没破坏原有的大柜子,真心不错,必须给
水电师傅大大的赞!(虽然多走点管子,多点电线,但是省了柜子的钱啊)
IMG_3102.JPG

IMG_3108.JPG

有了这么好的思路,后面的活儿干的也是很漂亮。

先看看厨房的电路改造。
IMG_3097.JPG

IMG_3099.JPG

IMG_3100.JPG


再来看看餐厅和客厅的电路改造图
餐厅——预留了地插,将来吃火锅什么的就方便多了。
(家里领导是火锅控,充分满足领导的意愿。)
IMG_3101.JPG

客厅电位图
IMG_3123.JPG

IMG_3122.JPG

IMG_3121.JPG


主卫
IMG_3153.JPG

IMG_3155.JPG


次卫
IMG_3149.JPG

IMG_3104.JPG

IMG_3130.JPG
回复

使用道具 举报

13

主题

296

帖子

1717

积分

大专毕业

积分
1717

社区居民忠实会员

 楼主| 发表于 2016-6-6 11:09:51 | 显示全部楼层
水电快改完的时候,换窗开始了。断桥铝的干活!

先把这些家伙搬上楼,包装很结实。
IMG_3132.JPG
开始拆旧窗户,就是应拆加胡来。
IMG_3133.JPG

IMG_3134.JPG

IMG_3139.JPG
此处略去几百字,旧窗户基本都是当废塑料的废品来卖,
所以工人就全力破拆。斧头加菜刀,嘁哩喀嚓,一顿剁。

开始换新窗户。
IMG_3137.JPG

IMG_3148.JPG

IMG_3143.JPG

IMG_3146.JPG


总体设计的还算比较合适,需要补的缝隙也不是太大。总算
安装还比较顺利。

完工之后的照片。看上去清爽多了。
IMG_3140.JPG

纱窗安好之后的效果。
IMG_3198.JPG


窗户都装好之后,发现一个很大的问题,就是有风的时候
窗户不好固定啊,万一风大,piapia把玻璃拍碎了咋办?
于是想起应该有风撑这样的东西,在窗户商家的样板店里没看到
风撑这样的东西,于是跟销售沟通,说一般都不需要安装,如果需要
厂家可以提供,一百五一副,连工带料,哇靠,抢钱啊。
只能求助某宝看看了。
功夫不负有心人,在某宝找到了roto的欧式隐形风撑,一个卖55元。
看说明好像安装不太难,也不需要打孔,应该自己就能安装,为了保险期间,先在
网上买了一个山寨的,20块钱,买回来先试试自己能不能装,如果自己能装,
再去买roto的。买回来后自己按说明试着装了一个,果然不太难,这下子咱也有
经验了,于是下单买了roto的,当天下午下单,第二天早上收货,同城的还真是快啊。
中午就迫不及待去自己安装风撑了,看图。
IMG_3189.JPG

IMG_3190.JPG

IMG_3192.JPG

IMG_3194.JPG

怎么样,自己动手的效果还不错吧。

一切的都还好,毕竟是在居然之家选的窗户,质量感觉还不错。
好事多磨,第二天再去看,悲催的事情发生了,一切玻璃自然破裂了。
IMG_3181.JPG

IMG_3183.JPG

赶紧致电商家,说可能是气压所致,可以免费更换,
虽然可以换,但心里还是很不爽啊。
第二天再去看,裂缝更大了,(第一天裂缝只是到黄色的标识块处,
第二天就远远超过这个标识块了。)
IMG_3200.JPG

真是一波三折,还在等待更换中。
回复

使用道具 举报

13

主题

296

帖子

1717

积分

大专毕业

积分
1717

社区居民忠实会员

 楼主| 发表于 2016-6-13 15:36:39 | 显示全部楼层
再次来更新,中间隔了个端午假期,不让施工啊,整整一周都没进展,趁着这个假期看了家具,买了踢脚线。今天再次开工,厨房瓷砖已经贴好了。真心表扬张工长的瓦工师傅,活儿很细,很负责任,非常好沟通。必须给大大的赞。

IMG_3274_旋转.JPG
IMG_3275_旋转.JPG
IMG_3276_旋转.JPG
IMG_3279_旋转.JPG
IMG_3280_旋转.JPG
IMG_3281_旋转.JPG
最后一张必须狠狠地赞一下,原先的过门石保留没拆,师傅贴砖严丝合缝,真是手艺好。
IMG_3278_旋转.JPG 最后还要感谢一下当时卖砖的那个小伙子,他当时建议我们厨房铺600*600的大砖,比300*300的小砖效果好,当时还挺排斥的,
以为他要推销他们的大砖,后来仔细一想,确实大砖比小砖看着大气,而且在厨房里面,缝隙少了很多,将来打理起来也会方便。
尽管最后没买他家的砖,但他的这个建议却让我们大大受益了。再次感谢这个不知名的销售。
回复

使用道具 举报

您需要登录后才可以回帖 登录 | 立即注册

本版积分规则

装修百科|手机版|小黑屋|北京高老庄建筑装饰工程有限公司 ( 京ICP备19035109号 )

GMT+8, 2026-3-22 05:54 , Processed in 0.501361 second(s), 31 queries .

快速回复 返回顶部 返回列表