北京装修论坛 - 北京装修社区_高老庄工长装修

 找回密码
立即注册
热搜: 工长 设计 曝光
查看: 1212|回复: 4

[装修讨论] 装修问题请教

[复制链接]

1

主题

4

帖子

20

积分

学前班

积分
20

社区居民

发表于 2016-4-21 13:59:16 | 显示全部楼层 |阅读模式
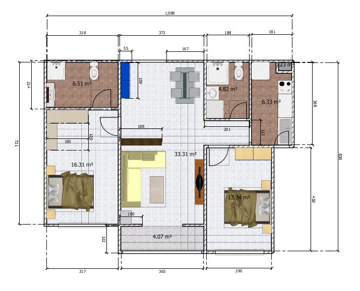
请教各位朋友,近期家里准备装修,户型上有点问题,希望可以有人帮忙参谋参谋,谢谢!



问题1:住卧的门打开时不能进入主卫,相互有点碍事,该怎么改?
问题2:客厅的暖气该放哪?目前在电视那面墙靠近电视柜的位置,感觉离电视太近而且餐桌那边没有暖气会不会有点冷?
问题3:冰箱洗衣机按目前的效果图是否合理?有没有更好的位置?
问题4:厨房和次卫的门很近,能修改下吗?
问题5:厨房的窗子特别小而且在两个楼夹缝中,厨房采光怎么改善?

装修小白暂时就想到这么多问题,还有什么需要注意的如果有希望能提出来一起探讨,谢谢啦!
回复

使用道具 举报

163

主题

1356

帖子

3033

积分

大专毕业

积分
3033

社区居民忠实会员

发表于 2016-4-21 14:22:05 | 显示全部楼层
主卧门外开~ 客厅暖气两组分开-电视柜和餐桌两部分。厨房的门用大面积透明玻璃材质。
屁,就是你吃下去的食物们不屈的灵魂
回复

使用道具 举报

351

主题

7926

帖子

1万

积分

版主

Rank: 7Rank: 7Rank: 7

积分
13957

社区居民社区劳模最爱沙发社区明星

发表于 2016-4-21 16:10:09 | 显示全部楼层
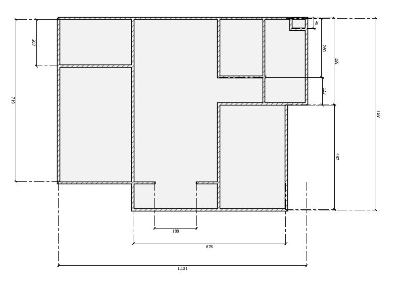
1、主卧室的门改外开,或者变更门洞位置;
2、餐桌的位置最好单独安装一组小暖气,因为客厅的面积还是比较大的。客厅的暖气片可以改在沙发一侧,但电视柜附近也可以;
3、冰箱和洗衣机位置也没问题,也可以利用一下客厅和阳台;
4、厨房卫生间门挨的很近,关系倒是不大。也可以把卫生间门改到入户门的那面墙附近,但需要调整餐厅位置;
5、厨房窗户基本上是固定的,彩光也是固定的。想要彩光效果更换,恐怕只能在窗户上下功夫了。
回复

使用道具 举报

1

主题

4

帖子

20

积分

学前班

积分
20

社区居民

 楼主| 发表于 2016-4-21 16:27:37 | 显示全部楼层

回 1楼(玄色) 的帖子

玄色:主卧门外开~ 客厅暖气两组分开-电视柜和餐桌两部分。厨房的门用大面积透明玻璃材质。 (2016-04-21 14:22)
谢谢你的建议!
回复

使用道具 举报

1

主题

4

帖子

20

积分

学前班

积分
20

社区居民

 楼主| 发表于 2016-4-21 16:28:26 | 显示全部楼层

回 2楼(柯南) 的帖子

柯南:1、主卧室的门改外开,或者变更门洞位置;
2、餐桌的位置最好单独安装一组小暖气,因为客厅的面积还是比较大的。客厅的暖气片可以改在沙发一侧,但电视柜附近也可以;
3、冰箱和洗衣机位置也没问题,也可以利用一下客厅和阳台;
4、厨房卫生间门挨的很近,关系倒是不大。也可以把 .. (2016-04-21 16:10)
谢谢你的建议,我会考虑的!
回复

使用道具 举报

您需要登录后才可以回帖 登录 | 立即注册

本版积分规则

装修百科|手机版|小黑屋|北京高老庄建筑装饰工程有限公司 ( 京ICP备19035109号 )

GMT+8, 2026-3-23 23:40 , Processed in 0.103005 second(s), 24 queries .

快速回复 返回顶部 返回列表