北京装修论坛 - 北京装修社区_高老庄工长装修

 找回密码
立即注册
热搜: 工长 设计 曝光
查看: 2118|回复: 9

[装修讨论] 台面宽度需要比水盆宽多少才支撑得住?

[复制链接]

32

主题

205

帖子

498

积分

初中毕业

积分
498

社区居民

发表于 2016-5-1 11:03:36 | 显示全部楼层 |阅读模式
QQ截图20160501110141.jpg

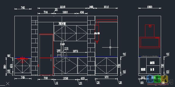
橱柜设计师在水盆上下仅仅留了20mm的宽度。(水盆上面有个不能动的由上至下的水管需要包起来,是没有台面的)
这样能支撑得住吗?一般水盆上下是留多少的宽度合适呢?
另外台面比柜体多50mm是对的吗,我怎么觉得一般都是30mm啊?
右边空白的地方是备菜区,这部分因为墙体关系只能缩进去,但是台面是不是可以做成圆弧的以防磕碰?
全图如下
11111111111.jpg 2222222222222.jpg
回复

使用道具 举报

146

主题

4902

帖子

1万

积分

硕士毕业

积分
10281

社区居民忠实会员社区劳模最爱沙发社区明星

发表于 2016-5-1 11:10:52 | 显示全部楼层
全图
回复

使用道具 举报

32

主题

205

帖子

498

积分

初中毕业

积分
498

社区居民

 楼主| 发表于 2016-5-1 11:18:39 | 显示全部楼层

回 1楼(醉蟋蟀) 的帖子

醉蟋蟀:全图 (2016-05-01 11:10) 
全图上传啦,不过我觉得他有的尺寸标注的不那么清楚
回复

使用道具 举报

32

主题

205

帖子

498

积分

初中毕业

积分
498

社区居民

 楼主| 发表于 2016-5-1 11:39:08 | 显示全部楼层
两位大神帮我瞅瞅
回复

使用道具 举报

146

主题

4902

帖子

1万

积分

硕士毕业

积分
10281

社区居民忠实会员社区劳模最爱沙发社区明星

发表于 2016-5-1 12:11:39 | 显示全部楼层
2_24138_c7e33bcf1b116ad.jpg

门垛多宽?图中?窗位置?
回复

使用道具 举报

32

主题

205

帖子

498

积分

初中毕业

积分
498

社区居民

 楼主| 发表于 2016-5-1 12:16:50 | 显示全部楼层

回 4楼(醉蟋蟀) 的帖子

醉蟋蟀:

门垛多宽?图中?窗位置?

 (2016-05-01 12:11) 
这个门垛是窗户改成门的,宽度750左右。
回复

使用道具 举报

146

主题

4902

帖子

1万

积分

硕士毕业

积分
10281

社区居民忠实会员社区劳模最爱沙发社区明星

发表于 2016-5-1 12:31:18 | 显示全部楼层
我的感觉,水槽放在水管前,是自找麻烦,会引起很多不合理的布置,
选一个稍窄的水槽,操作台面做成550宽,基本可以满足使用,把操作台面一通到底,墙垛只是隔断一下,不要断开台面,会有100宽的台面,
灶台对面可以当备餐区,水槽两边都留有空间,也放便从冰箱取东西,顺手可以放置,
650过道虽然不宽,但一个人进出,够用,
2_24138_c7e33bcf1b116ad.jpg
回复

使用道具 举报

32

主题

205

帖子

498

积分

初中毕业

积分
498

社区居民

 楼主| 发表于 2016-5-1 12:38:44 | 显示全部楼层

回 6楼(醉蟋蟀) 的帖子

醉蟋蟀:我的感觉,水槽放在水管前,是自找麻烦,会引起很多不合理的布置,
选一个稍窄的水槽,操作台面做成550宽,基本可以满足使用,把操作台面一通到底,墙垛只是隔断一下,不要断开台面,会有100宽的台面,
灶台对面可以当备餐区,水槽两边都留有空间,也放便从冰箱取东西,顺手可以放 .. (2016-05-01 12:31) 
考虑过这个方案。但是少了放厨房电器的位置。原本外边的操作台是放一些电饭煲什么的电器。

水槽(洗菜)——切菜——做饭
这个顺序。
如果水槽移位。水槽左右两边的位置都不大,切菜不行,放电器很紧张。
不过平齐台面这个事儿的确是可以考虑,不知道如何做更好。
原来650的进深就是为了水槽的支撑,另外冰箱突出和冰箱左边包管也正好是650.
回复

使用道具 举报

146

主题

4902

帖子

1万

积分

硕士毕业

积分
10281

社区居民忠实会员社区劳模最爱沙发社区明星

发表于 2016-5-1 12:53:53 | 显示全部楼层
其实,最常用的电器也就是微波炉及电饭锅,微波炉上墙,电饭锅做完饭时放入柜里,用时放在冰箱边台面就可以,
如果实在喜欢原先的布置,那根上水管不要包管,裸管,不占地,只一根裸水管比包管要好看得多,你会无视它的存在,相当于台上放个瓶子占的地方,
回复

使用道具 举报

32

主题

205

帖子

498

积分

初中毕业

积分
498

社区居民

 楼主| 发表于 2016-5-1 13:02:15 | 显示全部楼层

回 8楼(醉蟋蟀) 的帖子

醉蟋蟀:其实,最常用的电器也就是微波炉及电饭锅,微波炉上墙,电饭锅做完饭时放入柜里,用时放在冰箱边台面就可以,
如果实在喜欢原先的布置,那根上水管不要包管,裸管,不占地,只一根裸水管比包管要好看得多,你会无视它的存在,相当于台上放个瓶子占的地方,
 (2016-05-01 12:53) 
嗯~谢谢!其实也是。除了电饭锅好像也没别的啥常用的
回复

使用道具 举报

您需要登录后才可以回帖 登录 | 立即注册

本版积分规则

装修百科|手机版|小黑屋|北京高老庄建筑装饰工程有限公司 ( 京ICP备19035109号 )

GMT+8, 2026-3-23 22:06 , Processed in 0.282721 second(s), 31 queries .

快速回复 返回顶部 返回列表