北京装修论坛 - 北京装修社区_高老庄工长装修

 找回密码
立即注册
热搜: 工长 设计 曝光
查看: 2978|回复: 7

[装修讨论] 阳台跟客厅一体,求助晾衣服怎么处理

[复制链接]

3

主题

26

帖子

115

积分

小学毕业

积分
115

社区居民

发表于 2016-6-9 16:38:07 | 显示全部楼层 |阅读模式
如下图,右下角为客厅,直接在那装个晾衣架晾衣服 总感觉不太好
小Q截图-20160609163546.png
回复

使用道具 举报

3

主题

26

帖子

115

积分

小学毕业

积分
115

社区居民

 楼主| 发表于 2016-6-9 16:39:40 | 显示全部楼层
客厅尺寸为 3640*2150mm
回复

使用道具 举报

146

主题

4902

帖子

1万

积分

硕士毕业

积分
10281

社区居民忠实会员社区劳模最爱沙发社区明星

发表于 2016-6-9 17:03:41 | 显示全部楼层
如客厅尺寸为 3640*2150mm,2米多宽,当客厅有点窄,如果墙可以拆,
不如换个位置,阳台就可以晒衣服了,不影响客厅,

2_48039_9fa5a3742c52b2f.png
回复

使用道具 举报

1

主题

25

帖子

160

积分

小学毕业

积分
160

社区居民

QQ
发表于 2016-6-9 17:26:41 | 显示全部楼层
如果在客厅那边装个推拉门会不会好点
回复

使用道具 举报

3

主题

26

帖子

115

积分

小学毕业

积分
115

社区居民

 楼主| 发表于 2016-6-9 17:29:09 | 显示全部楼层

回 2楼(醉蟋蟀) 的帖子

醉蟋蟀:如客厅尺寸为 3640*2150mm,2米多宽,当客厅有点窄,如果墙可以拆,
不如换个位置,阳台就可以晒衣服了,不影响客厅,

 (2016-06-09 17:03) 
晕· 你要拆的墙是我计划要加的 ·!

你写的卧室就是原始的主卧 ,我把原始尺寸图发下面 你看下吧,按你写的 摆放是个问题 感觉怎么摆放都不合适。(主要是尺寸)
回复

使用道具 举报

3

主题

26

帖子

115

积分

小学毕业

积分
115

社区居民

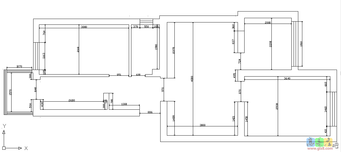
 楼主| 发表于 2016-6-9 17:29:40 | 显示全部楼层
原始尺寸图
原始.png
回复

使用道具 举报

3

主题

26

帖子

115

积分

小学毕业

积分
115

社区居民

 楼主| 发表于 2016-6-9 17:52:13 | 显示全部楼层

回 3楼(雪地里开花) 的帖子

雪地里开花:如果在客厅那边装个推拉门会不会好点 (2016-06-09 17:26) 
地方小,再隔出来一个阳台 不太实际
回复

使用道具 举报

146

主题

4902

帖子

1万

积分

硕士毕业

积分
10281

社区居民忠实会员社区劳模最爱沙发社区明星

发表于 2016-6-9 18:15:30 | 显示全部楼层

回 5楼(jerrykkk) 的帖子

jerrykkk:原始尺寸图
 (2016-06-09 17:29) 
哈哈,
只是2100宽,无法看电视
回复

使用道具 举报

您需要登录后才可以回帖 登录 | 立即注册

本版积分规则

装修百科|手机版|小黑屋|北京高老庄建筑装饰工程有限公司 ( 京ICP备19035109号 )

GMT+8, 2026-3-23 06:30 , Processed in 0.353011 second(s), 33 queries .

快速回复 返回顶部 返回列表