北京装修论坛 - 北京装修社区_高老庄工长装修

 找回密码
立即注册
热搜: 工长 设计 曝光
查看: 3717|回复: 18

65平米两居装修,在纠结中前进

[复制链接]

2

主题

36

帖子

95

积分

学前班

积分
95

社区居民

发表于 2016-7-4 10:05:39 | 显示全部楼层 |阅读模式
和老公两个人在北京打拼,去年终于买下了一套二手房,本来应该去年就装修的,但是因为老公是摇摆不定的天秤座,我是容易被说服的金牛座,所以直到去年8月交房的时候我和老公还没有想好到底要怎么装修(现在也没想好),商量了一下就把房子先租出去了,给自己一定的缓冲期。
在这期间,公司同事推荐了高老庄,因为户型奇怪,所以庄吧当时刚推出不久的装修设计就让我暗搓搓的心动了。再加上之后推出了样板间,6月份我和老公预约去看了一下,感觉也很心动,所以,我们就先预约了庄吧的设计上门测量房屋交了庄吧设计的钱,然后再在纠结中选择是否使用样板间的设计。
在这里我想要表扬一下我的设计郭新璐和蔡芳源,预约的是工作日晚上下班的时候,当天下了雨,而且租户因为一些原因迟到了1小时,两位设计也一直态度很好,测量到快9点了才走,每一个地方都看的很仔细,一点也没有因为天黑了就想要早走。回去以后就建了群,现在已经拿到了第一版的设计图。
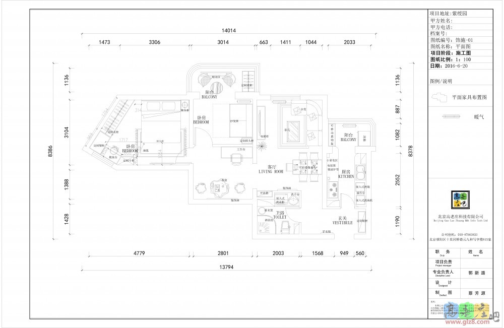
因为已经拿到了设计的图,所以可以直接给大家看我的户型,不得不说庄吧出图给人的感觉很舒服啊,给爸妈看,他们都说很方便。
第一张是我的家里的尺寸,大家可以看到这个户型很奇怪,第一是卫生间很小,第二是客厅通往卧室的走廊太长太宽,对于北京的高房价如果不利用起来就是人民币对我say bye~bye~

原始尺寸

原始尺寸

第二张是设计给出的墙体修改意见,把卫生间打宽,把次卧的墙壁打开

墙体拆改图

墙体拆改图

第三张是给出的家具安放设计,其他的地方昨天我们都沟通过了,主卧感觉有点怪,还是没有想好该怎么做

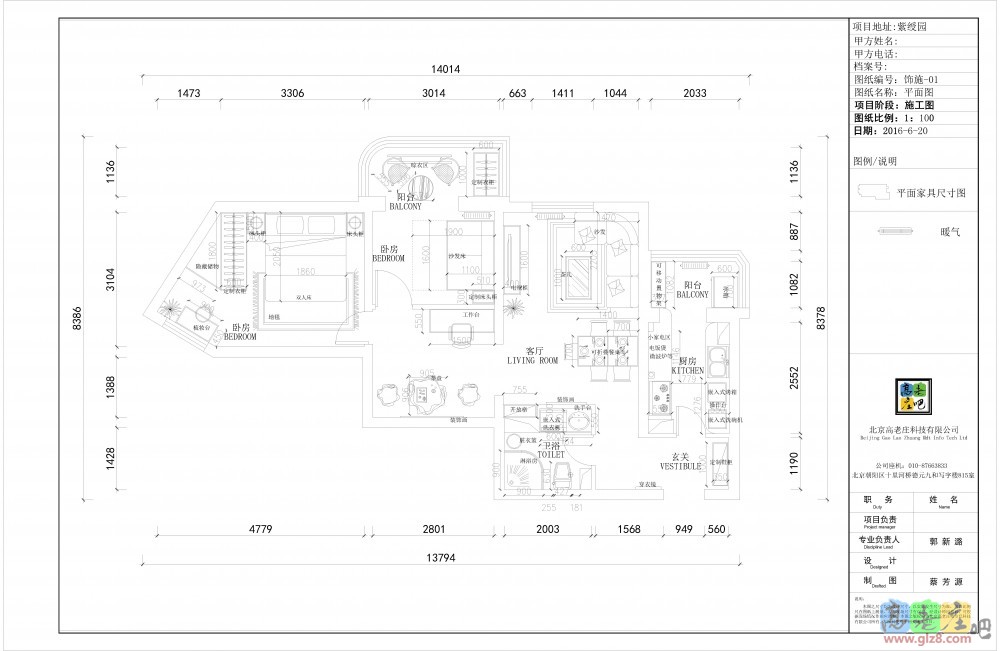
这是第一张的尺寸
紫绶园-家具尺寸图.jpg
这是第一版出的图,庄吧设计的态度很好,专门建了群方便讨论,而且出图也很快,提出问题的时候回复也很快,我个人还是很喜欢的,期待接下来的沟通。
不过主卧我还是觉得很怪,因为那个拐角的原因吧,不知道大家有没有什么建议

家居布置方案1

家居布置方案1

家居布置方案2

家居布置方案2
回复

使用道具 举报

1

主题

183

帖子

1365

积分

大专毕业

积分
1365

社区居民忠实会员社区劳模

发表于 2016-7-4 10:15:21 | 显示全部楼层
回复

使用道具 举报

351

主题

7926

帖子

1万

积分

版主

Rank: 7Rank: 7Rank: 7

积分
13957

社区居民社区劳模最爱沙发社区明星

发表于 2016-7-4 10:16:50 | 显示全部楼层
主卧那个三角区域可以直接敞开,透光性可能会更好一些。顺祝装修愉快~
回复

使用道具 举报

2

主题

184

帖子

2091

积分

大专毕业

积分
2091

社区居民

发表于 2016-7-4 23:07:57 | 显示全部楼层
楼主家户型是一把枪~哈哈
不能避开的阻碍,都要勇闯过去。
回复

使用道具 举报

56

主题

318

帖子

773

积分

高中毕业

积分
773

社区居民

发表于 2016-7-5 10:08:26 | 显示全部楼层
无论找谁装修切记不能是没有资质、没有监理的小公司。
回复

使用道具 举报

2

主题

36

帖子

95

积分

学前班

积分
95

社区居民

 楼主| 发表于 2016-7-11 14:04:29 | 显示全部楼层

回 2楼(柯南) 的帖子

柯南: 主卧那个三角区域可以直接敞开,透光性可能会更好一些。顺祝装修愉快~ (2016-07-04 10:16)
啊,谢谢,不过我不太明白怎么敞开,因为家里说多角形的风水不好,想给做成四四方方的
回复

使用道具 举报

2

主题

36

帖子

95

积分

学前班

积分
95

社区居民

 楼主| 发表于 2016-7-11 14:04:48 | 显示全部楼层

回 3楼(jiangxj) 的帖子

jiangxj:楼主家户型是一把枪~哈哈 (2016-07-04 23:07)
哈哈哈是啊,奇怪的户型
回复

使用道具 举报

2

主题

36

帖子

95

积分

学前班

积分
95

社区居民

 楼主| 发表于 2016-7-11 14:09:21 | 显示全部楼层
参加了7月10日的团购,下单了一直心仪的槿木坊,因为和老公都是超级爱做饭的吃货,因此还是对厨房最上心,再加上户型的问题,洗衣机冰箱都在厨房,所以重点也一直放在厨房。因为看到吧里大家都称赞槿木坊,所以在团购上就直接下了订单。
537239047860545088.jpg

粗略的计算

粗略的计算
回复

使用道具 举报

2

主题

36

帖子

95

积分

学前班

积分
95

社区居民

 楼主| 发表于 2016-7-11 14:09:52 | 显示全部楼层

回 4楼(lt741) 的帖子

lt741:无论找谁装修切记不能是没有资质、没有监理的小公司。 (2016-07-05 10:08)
谢谢提醒。
回复

使用道具 举报

2

主题

36

帖子

95

积分

学前班

积分
95

社区居民

 楼主| 发表于 2016-7-11 14:14:36 | 显示全部楼层
现在家里出现了新的问题,本来以为阳台有下水,所以把洗衣机放在了阳台,但是最新得到物业的消息是,阳台并没有下水,很苦恼,家里现在对这个问题展开了大讨论,因为如果走厨房水盆下面的水管,可能会有水顶上去的情况,家里说打几个S弯用钓弯钉固定在地上和墙面上,依靠波纹管的阻力就可以解决,但是也有人提出滚筒洗衣机水压大,可能无法解决。
目前正在大讨论中,已经上升到量水管直径,然后根据洗衣机排水量计算上了

这是厨房的最新调整图,辛苦设计师了,又在之前的基础上调整了图。其实还有一个问题就是厨房两个橱柜之间的距离太窄,不过实在没有办法了╮(╯▽╰)╭
902461718613006904.jpg
回复

使用道具 举报

您需要登录后才可以回帖 登录 | 立即注册

本版积分规则

装修百科|手机版|小黑屋|北京高老庄建筑装饰工程有限公司 ( 京ICP备19035109号 )

GMT+8, 2026-3-22 18:46 , Processed in 0.852802 second(s), 30 queries .

快速回复 返回顶部 返回列表