北京装修论坛 - 北京装修社区_高老庄工长装修

 找回密码
立即注册
热搜: 工长 设计 曝光
查看: 1493|回复: 4

[装修讨论] 求助,这样的户型怎么办呢?

[复制链接]

1

主题

4

帖子

20

积分

学前班

积分
20

社区居民

发表于 2016-8-29 01:24:13 | 显示全部楼层 |阅读模式
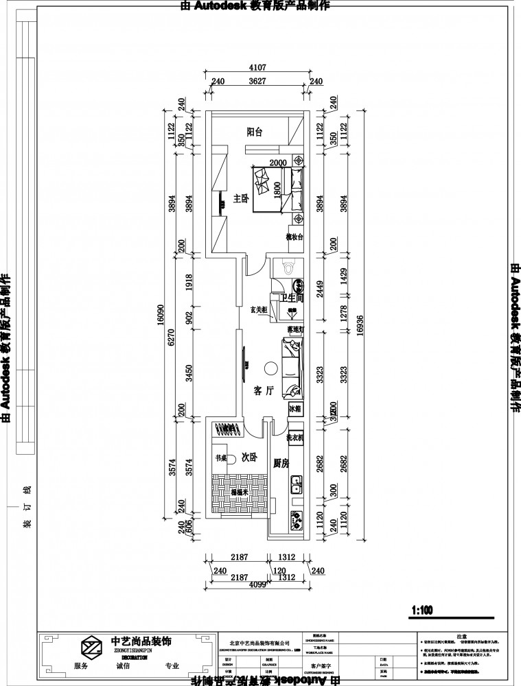
小户型,老房子,小两口居住。未来在添一新丁。建筑面积60,找了几个设计师。感觉不太靠谱。没敢用,给一张设计师给的设计稿,大神们能不能帮忙给出个主意。看看客厅,以及卫生间怎样改动能使得空间更合理。
回复

使用道具 举报

1

主题

52

帖子

115

积分

禁止发言

积分
115

社区居民忠实会员社区劳模

发表于 2016-8-29 08:56:46 | 显示全部楼层
找到工长了吗   这还得看您自己感觉怎么规划合适  
回复

使用道具 举报

351

主题

7926

帖子

1万

积分

版主

Rank: 7Rank: 7Rank: 7

积分
13957

社区居民社区劳模最爱沙发社区明星

发表于 2016-8-29 09:13:51 | 显示全部楼层
户型从硬装上来说能改动的地方不多,看看能否对厨房及次卧的地方进行设计变动,空出餐厅的空间。整体格局上尽可能多从后期软装上入手。
回复

使用道具 举报

1

主题

4

帖子

20

积分

学前班

积分
20

社区居民

 楼主| 发表于 2016-8-29 12:32:03 | 显示全部楼层

回 1楼(非成勿扰) 的帖子

非成勿扰:找到工长了吗   这还得看您自己感觉怎么规划合适   (2016-08-29 08:56) 
找工长了。但工长说可以把卫生间往外括一点,这样洗澡的地方酒宽出来了。因为客厅和洗手台没有遮挡,所以可以买个酒柜鞋柜那样的遮挡一下。可一进门就直接看着洗手台了,比较乱。
回复

使用道具 举报

1

主题

4

帖子

20

积分

学前班

积分
20

社区居民

 楼主| 发表于 2016-8-29 12:33:59 | 显示全部楼层

回 2楼(柯南) 的帖子

柯南:户型从硬装上来说能改动的地方不多,看看能否对厨房及次卧的地方进行设计变动,空出餐厅的空间。整体格局上尽可能多从后期软装上入手。 (2016-08-29 09:13) 
次卧也动不了。地方也不大,而且以后多个孩子,肯定还要为他上学考虑。
回复

使用道具 举报

您需要登录后才可以回帖 登录 | 立即注册

本版积分规则

装修百科|手机版|小黑屋|北京高老庄建筑装饰工程有限公司 ( 京ICP备19035109号 )

GMT+8, 2026-3-22 10:12 , Processed in 0.106271 second(s), 24 queries .

快速回复 返回顶部 返回列表