
|
2556| 10
|
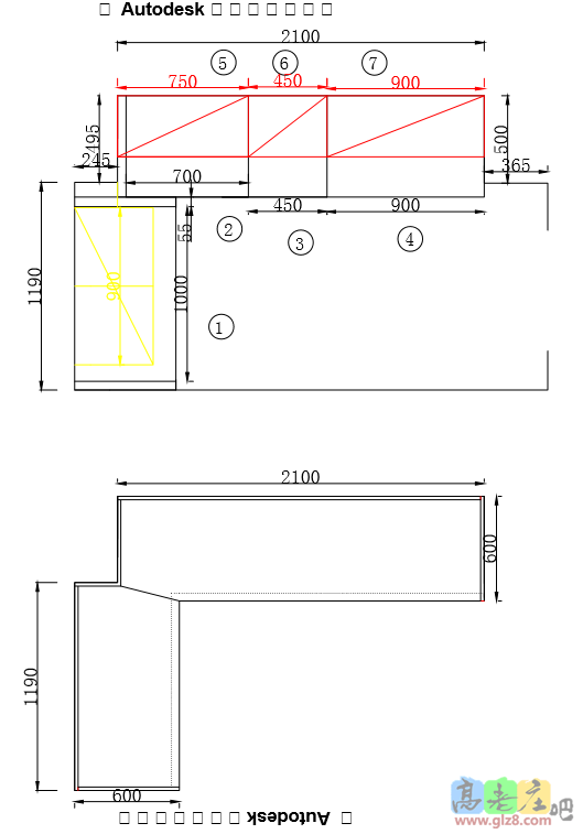
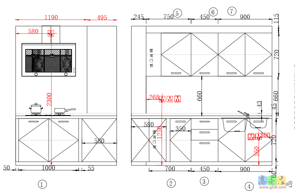
[装修讨论] 凑个热闹,也请各位达人看看橱柜设计师的草图是否合理?谢谢 |
| ||
| ||
| ||
|
才来没两天,就被当成托儿了,桑心,还能不能愉快的打豆豆了!!!!
|
||
回 2楼(flurry) 的帖子
| ||
回 3楼(阿拉尔法) 的帖子
| ||
|
| |
| ||
| ||
装修百科|手机版|小黑屋|北京高老庄建筑装饰工程有限公司 ( 京ICP备19035109号 )
GMT+8, 2026-3-22 07:07 , Processed in 0.186351 second(s), 29 queries .