
|
2496| 13
|
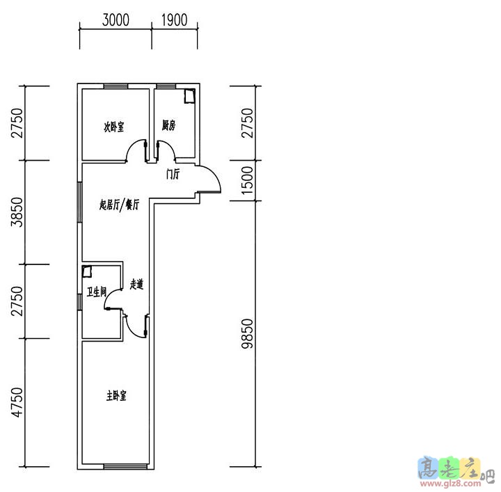
屋内10cm卧室隔墙是承重墙吗,上边的电箱可移们吗 |
| ||
| ||
回 2楼(柯南) 的帖子
| ||
回 2楼(柯南) 的帖子
| ||
回 4楼(wangmuyuan) 的帖子
| ||
回 5楼(柯南) 的帖子
| ||
回 6楼(wangmuyuan) 的帖子
| ||
回 7楼(柯南) 的帖子
| ||
回 8楼(wangmuyuan) 的帖子
| ||
装修百科|手机版|小黑屋|北京高老庄建筑装饰工程有限公司 ( 京ICP备19035109号 )
GMT+8, 2026-3-22 02:39 , Processed in 0.142744 second(s), 28 queries .