
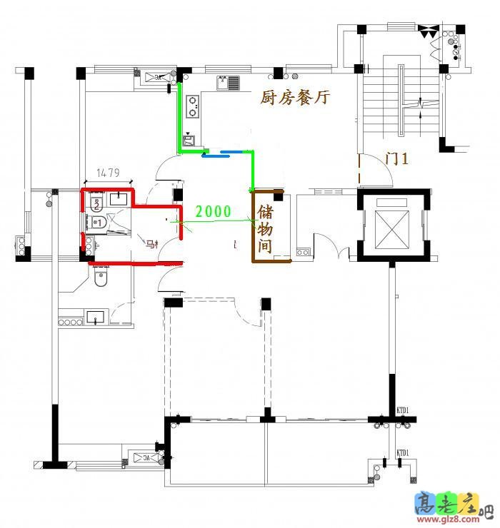
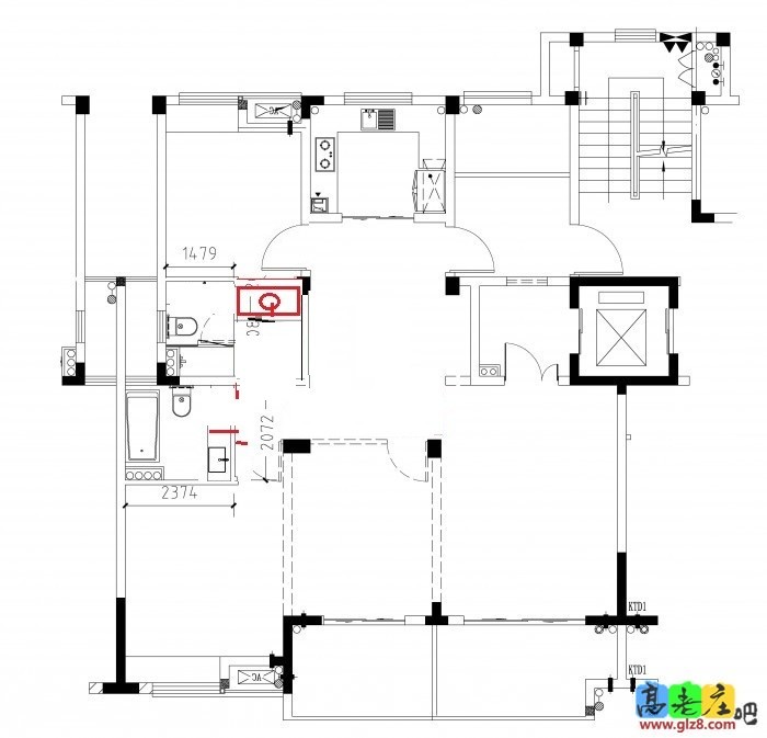
|
|
[装修讨论] 第一次发帖就来问问题,请大家包涵 |
回 8楼(醉蟋蟀) 的帖子
| ||
回 9楼(mp3er) 的帖子
| ||
| ||
|
| |
回 12楼(醉蟋蟀) 的帖子
| ||
回 14楼(mp3er) 的帖子
| ||
回 15楼(醉蟋蟀) 的帖子
| ||
回 12楼(醉蟋蟀) 的帖子
| ||
| ||
|
[槿木坊橱柜装修日记大赛](作品057)越走越远的简欧 直奔混搭而去 记录第一次装修的点点滴滴 http://bbs.glz8.com/read-htm-tid-34990.html
|
||
回 18楼(joyce0614) 的帖子
| ||
装修百科|手机版|小黑屋|北京高老庄建筑装饰工程有限公司 ( 京ICP备19035109号 )
GMT+8, 2026-3-21 17:18 , Processed in 0.215988 second(s), 28 queries .