北京装修论坛 - 北京装修社区_高老庄工长装修

 找回密码
立即注册
热搜: 工长 设计 曝光
查看: 2806|回复: 3

[装修讨论] 请参谋能拆除这面墙吗?

[复制链接]

5

主题

16

帖子

59

积分

学前班

积分
59

社区居民

发表于 2017-7-23 12:04:59 | 显示全部楼层 |阅读模式
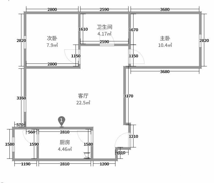
想拆除厨房与客厅的轻体墙,但这侧墙有全屋的电路控制箱和弱电箱。
1,如果拆除电路控制箱和弱电箱改在何处合适。
2,拆除后客厅内沙发 茶几 餐桌等如何摆放。
户型图10.jpg 次卧2800mmx2600mm
回复

使用道具 举报

5

主题

16

帖子

59

积分

学前班

积分
59

社区居民

 楼主| 发表于 2017-7-23 13:43:13 | 显示全部楼层

undefined

客厅

客厅
参考图
回复

使用道具 举报

6

主题

56

帖子

134

积分

小学毕业

积分
134

社区居民忠实会员

发表于 2017-7-23 14:12:01 | 显示全部楼层
入户电缆不太好处理,但非要改也不是不可以。一般来说电箱不会放在轻体墙上,所以要小心确认。
回复

使用道具 举报

5

主题

16

帖子

59

积分

学前班

积分
59

社区居民

 楼主| 发表于 2017-7-24 07:18:59 | 显示全部楼层
是的,该电箱麻烦,在考虑考虑,谢谢。
回复

使用道具 举报

您需要登录后才可以回帖 登录 | 立即注册

本版积分规则

装修百科|手机版|小黑屋|北京高老庄建筑装饰工程有限公司 ( 京ICP备19035109号 )

GMT+8, 2026-3-19 07:24 , Processed in 0.235269 second(s), 29 queries .

快速回复 返回顶部 返回列表