北京装修论坛 - 北京装修社区_高老庄工长装修

 找回密码
立即注册
热搜: 工长 设计 曝光
查看: 6877|回复: 8

[装修讨论] 【求助】新买了一个超小开间,请庄吧的亲们帮着设计一下

[复制链接]

9

主题

37

帖子

102

积分

小学毕业

积分
102

社区居民忠实会员

发表于 2012-11-29 11:47:08 | 显示全部楼层 |阅读模式
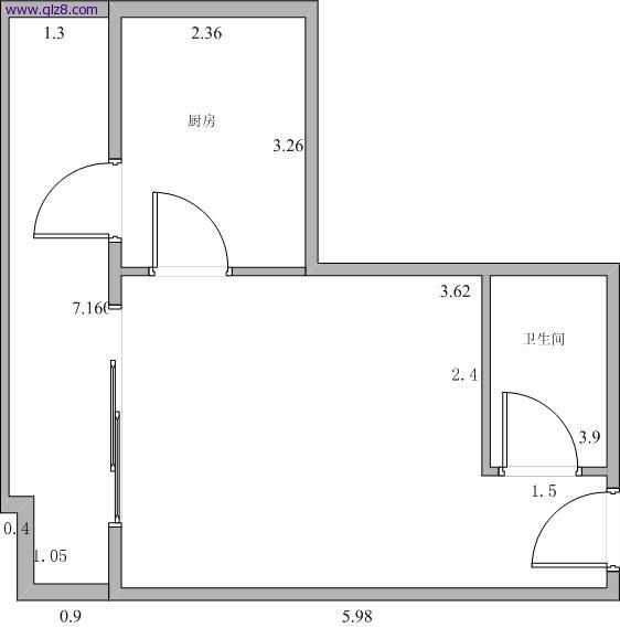
房子的特点就是阳台和厨房大。。。
真正的起居就是中间那一间。。。
除了床之外,还希望能隔出来一个小区域,父母来了可以住下。。。

578.jpg
回复

使用道具 举报

481

主题

1万

帖子

5万

积分

博士毕业

积分
52600

社区居民优秀斑竹宣传大使最爱沙发社区劳模社区明星忠实会员

发表于 2012-11-29 11:56:52 | 显示全部楼层
1,厨房外边的阳台有点浪费,如果能够打掉就好了。把厨房阳台和客厅阳台隔开。功能会很好用。

2,房间比较小,建议用开放式厨房吧,这样餐桌可以放在厨房里边,平时2人用足够,来了客人,可以把餐桌搬出来。

3,电视可以放在客厅的南墙,沙发放厨房门口的位置。

4,客厅的右上角放双人床。

5,可以买2用沙发,父母来了就拉出来当床。呵呵。如果父母经常来就在中间拉了帘子,简单。
回复

使用道具 举报

9

主题

37

帖子

102

积分

小学毕业

积分
102

社区居民忠实会员

 楼主| 发表于 2012-11-29 12:06:05 | 显示全部楼层
谢谢暴雪。
回复

使用道具 举报

7

主题

104

帖子

233

积分

小学毕业

积分
233

社区居民

发表于 2012-11-29 12:09:55 | 显示全部楼层
阳台也要充分利用才好
回复

使用道具 举报

9

主题

37

帖子

102

积分

小学毕业

积分
102

社区居民忠实会员

 楼主| 发表于 2012-11-29 12:11:32 | 显示全部楼层
我想把阳台隔开,靠近厨房的部分做阳台用。。可以给我家的两个猫玩耍。。。
然后靠近厅的部分做个地台。。平时是书房,来个人还可以睡。。。只是不知道靠近西面的会不会很热啊。。。

另外厨房和厅之间能打开么。。。貌似是实体墙呢。。。如果拆掉上半部分,留下下面的墙体是不是可行呢。。。
回复

使用道具 举报

481

主题

1万

帖子

5万

积分

博士毕业

积分
52600

社区居民优秀斑竹宣传大使最爱沙发社区劳模社区明星忠实会员

发表于 2012-11-29 12:21:56 | 显示全部楼层
下午的阳光是从西面照过来的。呵呵。

往往这些墙不是承重墙。我的经验是能打动的都没问题,打不动的才是不能打的。
回复

使用道具 举报

33

主题

190

帖子

456

积分

初中毕业

积分
456

社区居民忠实会员

发表于 2012-11-29 12:33:58 | 显示全部楼层
把厨房搬阳台上,厨房直接作居室用了!
回复

使用道具 举报

9

主题

37

帖子

102

积分

小学毕业

积分
102

社区居民忠实会员

 楼主| 发表于 2012-11-29 13:49:13 | 显示全部楼层

回 6楼(大城小爱) 的帖子

大城小爱:把厨房搬阳台上,厨房直接作居室用了!(2012-11-29 12:33)嬀/color]
也曾经考虑过这样搬,但是阳台很晒,放炉灶就怕不安全,而且把厨房搬出来会很麻烦,橱柜墙壁地板防水之类的都要重做,上下水、油烟机管道也要重新弄。。。而且厨房的天花板、地板、墙面基本上也要重做,感觉好麻烦啊。
回复

使用道具 举报

18

主题

192

帖子

430

积分

初中毕业

积分
430

社区居民忠实会员

发表于 2012-11-29 14:05:43 | 显示全部楼层

回 7楼(快乐三毛) 的帖子

快乐三毛:也曾经考虑过这样搬,但是阳台很晒,放炉灶就怕不安全,而且把厨房搬出来会很麻烦,橱柜墙壁地板防水之类的都要重做,上下水、油烟机管道也要重新弄。。。而且厨房的天花板、地板、墙面基本上也要重做,感觉好麻烦啊。(2012-11-29 13:49)嬀/color]
应该没什么问题,好多都放到阳台上的。管道不要暴露暴晒就行。
回复

使用道具 举报

您需要登录后才可以回帖 登录 | 立即注册

本版积分规则

装修百科|手机版|小黑屋|北京高老庄建筑装饰工程有限公司 ( 京ICP备19035109号 )

GMT+8, 2026-4-12 10:47 , Processed in 1.052566 second(s), 28 queries .

快速回复 返回顶部 返回列表