北京装修论坛 - 北京装修社区_高老庄工长装修

 找回密码
立即注册
热搜: 工长 设计 曝光
查看: 6395|回复: 13

[装修讨论] 帮忙看看哪种格局好呢?

[复制链接]

3

主题

37

帖子

90

积分

学前班

积分
90

社区居民

发表于 2013-1-15 14:33:10 | 显示全部楼层 |阅读模式
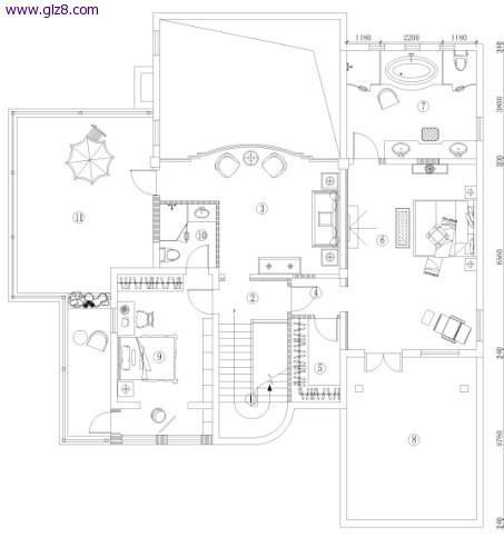
222222.jpg
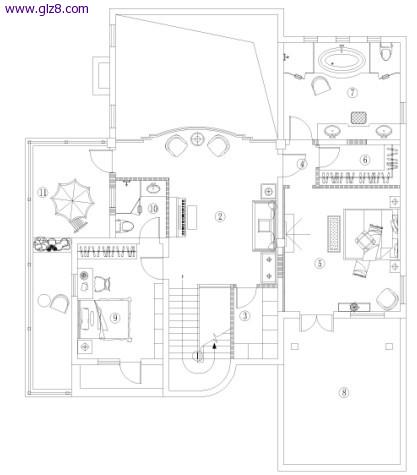
主要是主卧门的位置,一种是对着次卧门,一种对着露台门,哪种格局好些呢? 111111.jpg
回复

使用道具 举报

25

主题

205

帖子

470

积分

初中毕业

积分
470

社区居民忠实会员

发表于 2013-1-15 14:55:54 | 显示全部楼层
第二个感觉更宽敞舒适一些。
回复

使用道具 举报

1314

主题

1万

帖子

4万

积分

管理员

Rank: 9Rank: 9Rank: 9

积分
43987

社区居民社区劳模最爱沙发社区明星忠实会员

发表于 2013-1-15 14:56:27 | 显示全部楼层

上面的图更好些。

主要原因是,这样设计,厅的利用效率更高。
回复

使用道具 举报

3

主题

37

帖子

90

积分

学前班

积分
90

社区居民

 楼主| 发表于 2013-1-15 15:03:00 | 显示全部楼层

回 1楼(小宝爱大宝) 的帖子

小宝爱大宝:第二个感觉更宽敞舒适一些。 (2013-01-15 14:55) 
第二种方案应该采光更好
回复

使用道具 举报

3

主题

37

帖子

90

积分

学前班

积分
90

社区居民

 楼主| 发表于 2013-1-15 15:03:38 | 显示全部楼层

回 2楼(老庄) 的帖子

老庄:主要原因是,这样设计,厅的利用效率更高。 (2013-01-15 14:56) 
呵呵,老庄来了,是啊,厅完整些,但主卧门对着次卧门了,另一个方案主卧门又对着露台门了,真是头疼
回复

使用道具 举报

22

主题

254

帖子

564

积分

初中毕业

积分
564

社区居民忠实会员

发表于 2013-1-15 15:07:51 | 显示全部楼层
第一种好点吧,第二种门开的有点不方便。
回复

使用道具 举报

1314

主题

1万

帖子

4万

积分

管理员

Rank: 9Rank: 9Rank: 9

积分
43987

社区居民社区劳模最爱沙发社区明星忠实会员

发表于 2013-1-15 15:08:13 | 显示全部楼层

回 4楼(amili) 的帖子

amili:呵呵,老庄来了,是啊,厅完整些,但主卧门对着次卧门了,另一个方案主卧门又对着露台门了,真是头疼 (2013-01-15 15:03)
主卧门对着次卧门,挺好的呀。起码通风更好些。而且,这样设计面积利用率高。
回复

使用道具 举报

1

主题

12

帖子

46

积分

学前班

积分
46

社区居民

发表于 2013-1-16 11:38:45 | 显示全部楼层
图1更好,卧室面积更大,客厅更周正,卧室门不针对着外面
回复

使用道具 举报

3

主题

37

帖子

90

积分

学前班

积分
90

社区居民

 楼主| 发表于 2013-1-17 11:46:10 | 显示全部楼层

回 6楼(老庄) 的帖子

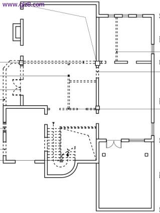
原始户型的主卧卫生间没有这么大,只有现在图的2/3,在右边的位置,左边的1/3是衣帽间,这样扩大卫生间有必要吗?舒适感能提高吗? 原户型图2.jpg
回复

使用道具 举报

1314

主题

1万

帖子

4万

积分

管理员

Rank: 9Rank: 9Rank: 9

积分
43987

社区居民社区劳模最爱沙发社区明星忠实会员

发表于 2013-1-17 12:08:45 | 显示全部楼层

回 8楼(amili) 的帖子

amili:原始户型的主卧卫生间没有这么大,只有现在图的2/3,在右边的位置,左边的1/3是衣帽间,这样扩大卫生间有必要吗?舒适感能提高吗?
(2013-01-17 11:46)
我觉得。有必要。户型设计更为合理。舒适度大幅提高。大卫生间就是舒服。

不过,提醒一下,一定要用封闭式淋浴房,这样洗澡才不会冷。

为什么不开一个装修日记贴。这样你可以把问题集中起来,老庄会见一个答一个,也留个纪念。。。

在“高老庄”发布的原创装修日记,将得到老庄的全程指导。
回复

使用道具 举报

您需要登录后才可以回帖 登录 | 立即注册

本版积分规则

装修百科|手机版|小黑屋|北京高老庄建筑装饰工程有限公司 ( 京ICP备19035109号 )

GMT+8, 2026-4-12 02:10 , Processed in 0.602673 second(s), 30 queries .

快速回复 返回顶部 返回列表