北京装修论坛 - 北京装修社区_高老庄工长装修

 找回密码
立即注册
热搜: 工长 设计 曝光
楼主: 一叶泛舟

[装修讨论] 麻烦大家帮忙看一下衣帽间的设计,不装门可以吗?

[复制链接]

18

主题

73

帖子

192

积分

小学毕业

积分
192

社区居民忠实会员

 楼主| 发表于 2013-2-28 15:07:03 | 显示全部楼层
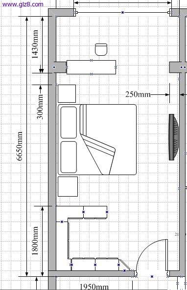
初步决定这样做,先做成开放式的,如果灰大再加装玻璃隔断
请大师们指点。

762.jpg
回复

使用道具 举报

18

主题

73

帖子

192

积分

小学毕业

积分
192

社区居民忠实会员

 楼主| 发表于 2013-2-28 15:39:53 | 显示全部楼层
真是费神啊。。。
回复

使用道具 举报

22

主题

238

帖子

530

积分

初中毕业

积分
530

社区居民忠实会员

发表于 2013-2-28 15:49:00 | 显示全部楼层
衣柜多好啊
回复

使用道具 举报

15

主题

141

帖子

322

积分

初中毕业

积分
322

社区居民忠实会员

发表于 2013-2-28 15:52:53 | 显示全部楼层
明天我发个上来给你看看
回复

使用道具 举报

25

主题

225

帖子

511

积分

初中毕业

积分
511

社区居民

发表于 2013-2-28 16:13:04 | 显示全部楼层
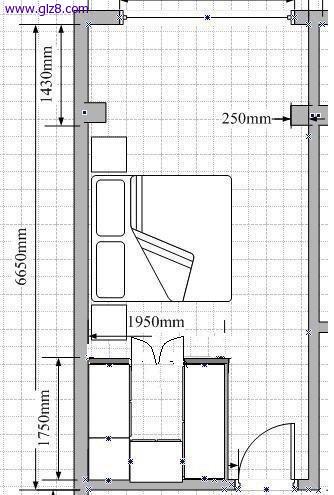
为什么还要在衣柜的侧壁做门呢,直接用墙封了不是更好,既便宜又结实好看。除去两个侧壁,只需要做750mm的。

763.jpg
回复

使用道具 举报

6

主题

41

帖子

104

积分

小学毕业

积分
104

社区居民

发表于 2013-2-28 16:34:40 | 显示全部楼层
我家打算拉个帘子就当门了~
回复

使用道具 举报

27

主题

159

帖子

382

积分

初中毕业

积分
382

社区居民忠实会员

发表于 2013-2-28 16:45:04 | 显示全部楼层
我会换卧室的开门位置

这个衣帽间和这个开门位置…………实在让卧室变得太BT了
回复

使用道具 举报

12

主题

79

帖子

192

积分

小学毕业

积分
192

社区居民忠实会员

发表于 2013-2-28 18:03:14 | 显示全部楼层
。。。。有点囧
回复

使用道具 举报

21

主题

169

帖子

390

积分

初中毕业

积分
390

社区居民忠实会员

发表于 2013-3-1 08:49:30 | 显示全部楼层
我家衣帽间结构跟你一样的,最后做的是3楼的效果.我建议你安装密封点的移门,我家现在的那种木质移门不够密封,容易进灰~~~
回复

使用道具 举报

12

主题

125

帖子

284

积分

小学毕业

积分
284

社区居民

发表于 2013-3-1 09:23:56 | 显示全部楼层
三楼那种布局比较合理,移门背面装镜子。
移门做好密封,柜子可以不用门。开放式的要装柜门,更贵。
价格合理的话移门比柜体贵是不可能的。
衣帽间很实用。
嫌走廊太长的话把衣帽间做窄一点即可。
回复

使用道具 举报

您需要登录后才可以回帖 登录 | 立即注册

本版积分规则

装修百科|手机版|小黑屋|北京高老庄建筑装饰工程有限公司 ( 京ICP备19035109号 )

GMT+8, 2026-4-11 19:32 , Processed in 0.728209 second(s), 27 queries .

快速回复 返回顶部 返回列表