北京装修论坛 - 北京装修社区_高老庄工长装修

 找回密码
立即注册
热搜: 工长 设计 曝光
查看: 6478|回复: 7

[装修讨论] 请大家帮忙看看,我家衣柜设计图。

[复制链接]

17

主题

59

帖子

187

积分

小学毕业

积分
187

社区居民

发表于 2013-3-12 14:41:08 | 显示全部楼层 |阅读模式
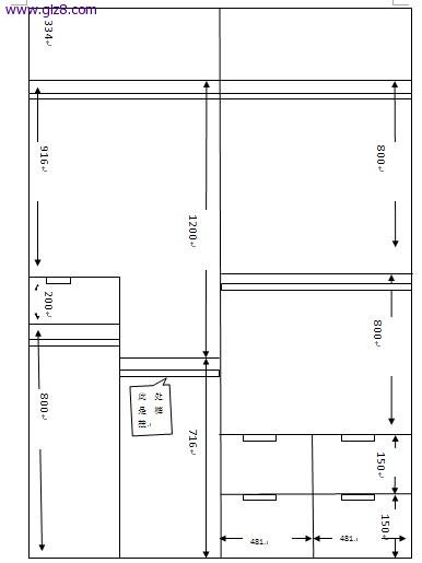
我家衣柜高2386,宽2050,衣服主要以悬挂为主,大家帮忙看看有什么不合理的地方,多谢~~~~~~

主卧衣柜

781.jpg
回复

使用道具 举报

19

主题

158

帖子

364

积分

初中毕业

积分
364

社区居民忠实会员

发表于 2013-3-12 14:52:28 | 显示全部楼层
我觉得蛮不错的
回复

使用道具 举报

13

主题

96

帖子

228

积分

小学毕业

积分
228

社区居民忠实会员

发表于 2013-3-12 14:58:36 | 显示全部楼层
你打算做什么门的/
回复

使用道具 举报

15

主题

108

帖子

256

积分

小学毕业

积分
256

社区居民忠实会员

发表于 2013-3-12 15:38:49 | 显示全部楼层
150高的抽屉建议做一些改变,这个高度除非储存饰品眼镜啥的,否则太浅用途很窄~~~
回复

使用道具 举报

25

主题

192

帖子

444

积分

初中毕业

积分
444

社区居民

发表于 2013-3-12 16:06:57 | 显示全部楼层
上面的空间有点窄啦,放厚一点的被子都很难塞进去,大概要40-45cm左右
抽屉大概要18cm,要不然放大一点的东西太浅用着很不舒服的:)
其它隔局还是不错的,有挂长衣物,短衣物,有抽屉有裤架,比较实用的啦
回复

使用道具 举报

17

主题

59

帖子

187

积分

小学毕业

积分
187

社区居民

 楼主| 发表于 2013-3-13 09:10:57 | 显示全部楼层
谢谢大家的指点,我准备是两扇推拉门~~~~~
回复

使用道具 举报

8

主题

63

帖子

152

积分

小学毕业

积分
152

社区居民忠实会员

发表于 2013-3-13 09:33:17 | 显示全部楼层
给您一点小意见,最上面的是被褥区吗,如果是放被子的地方,那么就显窄了,被褥区的话正常是450的高度,短衣区至少得920的高度,还有抽屉显窄了,正常一个抽屉的高度是20公分的,建议您可以让衣柜设计师上您家给出个方案看看的哦!
回复

使用道具 举报

14

主题

93

帖子

224

积分

小学毕业

积分
224

社区居民

发表于 2013-3-13 09:59:37 | 显示全部楼层
个人觉得挂衣区适合应季衣物,过季的应该叠放起来,如果全部挂起来的话衣柜储藏量就太小了。你说呢~
回复

使用道具 举报

您需要登录后才可以回帖 登录 | 立即注册

本版积分规则

装修百科|手机版|小黑屋|北京高老庄建筑装饰工程有限公司 ( 京ICP备19035109号 )

GMT+8, 2026-4-11 19:17 , Processed in 0.450602 second(s), 28 queries .

快速回复 返回顶部 返回列表