北京装修论坛 - 北京装修社区_高老庄工长装修

 找回密码
立即注册
热搜: 工长 设计 曝光
楼主: 葡萄树

向着金色梦想前进---一套花园洋房的装修日记

[复制链接]

4

主题

134

帖子

285

积分

小学毕业

积分
285

社区居民

 楼主| 发表于 2013-11-3 21:44:49 | 显示全部楼层
还有很多细节还没有加入 比如中央空调和试听设备
希望大家多提意见
回复

使用道具 举报

1314

主题

1万

帖子

4万

积分

管理员

Rank: 9Rank: 9Rank: 9

积分
43987

社区居民社区劳模最爱沙发社区明星忠实会员

发表于 2013-11-3 22:05:15 | 显示全部楼层

回 160楼(葡萄树) 的帖子

葡萄树:还有很多细节还没有加入 比如中央空调和试听设备
希望大家多提意见 (2013-11-03 21:44) 
最好把户型图贴上。

qq说过,设计水平不错。比较地道。
回复

使用道具 举报

4

主题

134

帖子

285

积分

小学毕业

积分
285

社区居民

 楼主| 发表于 2013-11-3 22:11:28 | 显示全部楼层
原始户型图
DSC_0001.jpg
回复

使用道具 举报

4

主题

134

帖子

285

积分

小学毕业

积分
285

社区居民

 楼主| 发表于 2013-11-3 22:13:08 | 显示全部楼层
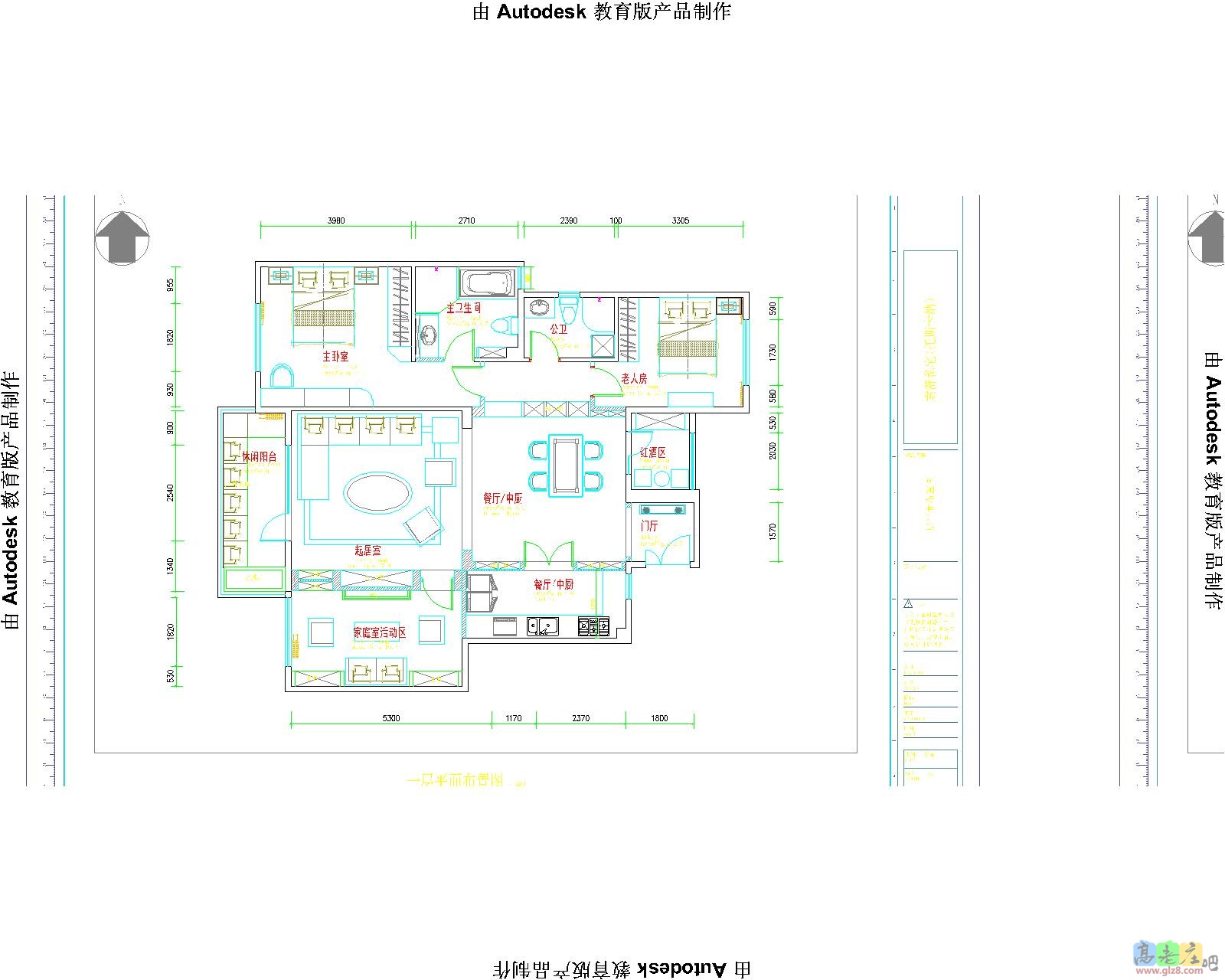
设计平面图
袁舒家CAD图-布局1.jpg
回复

使用道具 举报

4

主题

134

帖子

285

积分

小学毕业

积分
285

社区居民

 楼主| 发表于 2013-11-3 22:13:57 | 显示全部楼层
缩小了书房 扩大了客厅
回复

使用道具 举报

1314

主题

1万

帖子

4万

积分

管理员

Rank: 9Rank: 9Rank: 9

积分
43987

社区居民社区劳模最爱沙发社区明星忠实会员

发表于 2013-11-4 11:09:16 | 显示全部楼层

回 164楼(葡萄树) 的帖子

葡萄树:缩小了书房 扩大了客厅 (2013-11-03 22:13) 
恩,看不出什么缺点。不错。
回复

使用道具 举报

4

主题

134

帖子

285

积分

小学毕业

积分
285

社区居民

 楼主| 发表于 2014-12-15 13:32:18 | 显示全部楼层
装修了一年,终于完事了。等待上图
回复

使用道具 举报

0

主题

44

帖子

94

积分

学前班

积分
94

社区居民

发表于 2014-12-16 21:20:44 | 显示全部楼层
回复

使用道具 举报

您需要登录后才可以回帖 登录 | 立即注册

本版积分规则

装修百科|手机版|小黑屋|北京高老庄建筑装饰工程有限公司 ( 京ICP备19035109号 )

GMT+8, 2026-3-31 22:54 , Processed in 0.516390 second(s), 25 queries .

快速回复 返回顶部 返回列表