北京装修论坛 - 北京装修社区_高老庄工长装修

 找回密码
立即注册
热搜: 工长 设计 曝光
楼主: bule126

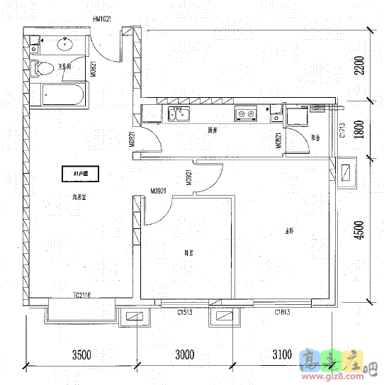
[装修讨论] 户型图,帮忙参谋一下

[复制链接]

4

主题

63

帖子

144

积分

小学毕业

积分
144

社区居民

发表于 2013-10-29 13:47:41 | 显示全部楼层
新人呵。 装修小白。从百度搜到的。11月初能拿到新房钥匙,我的户型跟楼主基本一样(就是没有那些开敞阳台,客厅就是很小的飘窗)。
回复

使用道具 举报

4

主题

63

帖子

144

积分

小学毕业

积分
144

社区居民

发表于 2013-10-29 14:08:00 | 显示全部楼层
也发张户型图吧。
QQ截图20131029140655.png
回复

使用道具 举报

2

主题

24

帖子

162

积分

小学毕业

积分
162

社区居民社区劳模

发表于 2013-11-25 11:27:33 | 显示全部楼层
感觉还是不改的好,保持原样挺好,门口还有鞋柜。
回复

使用道具 举报

8

主题

243

帖子

524

积分

初中毕业

积分
524

社区居民

发表于 2013-11-25 12:43:11 | 显示全部楼层
我也觉得不改比较好,门口可以弄个衣帽柜,一体的,超大的。。。。
回复

使用道具 举报

0

主题

333

帖子

722

积分

设计师

积分
722

社区居民

QQ
发表于 2013-11-30 13:37:32 | 显示全部楼层
卫生间门,不建议改在朝客厅,在餐桌旁边有个卫生间门,吃饭都吃不爽。
独立设计师
回复

使用道具 举报

14

主题

1658

帖子

4万

积分

硕士毕业

积分
49611

社区居民忠实会员最爱沙发

发表于 2013-11-30 13:42:43 | 显示全部楼层
支持不改,拐角做个大柜子
回复

使用道具 举报

您需要登录后才可以回帖 登录 | 立即注册

本版积分规则

装修百科|手机版|小黑屋|北京高老庄建筑装饰工程有限公司 ( 京ICP备19035109号 )

GMT+8, 2026-4-9 04:47 , Processed in 0.337092 second(s), 26 queries .

快速回复 返回顶部 返回列表