北京装修论坛 - 北京装修社区_高老庄工长装修

 找回密码
立即注册
热搜: 工长 设计 曝光
查看: 5307|回复: 10

[装修讨论] 自学的布局图,第一次发贴,请大家拍砖

[复制链接]

4

主题

28

帖子

74

积分

学前班

积分
74

社区居民

发表于 2013-6-19 16:09:20 | 显示全部楼层 |阅读模式
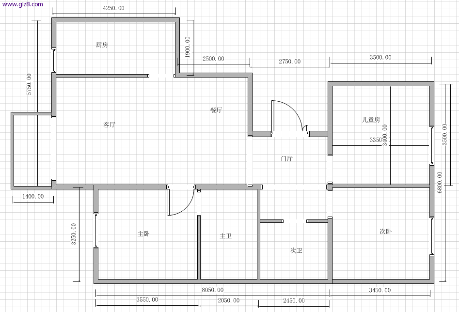
基本情况:126平的小三居,常住三口人,父母不定期来住
现状:无法测量房内具体尺寸和管线分布,只知道开发商送地暖和中央空调(布好管线和进出风口),所以一切都还只是臆想。在收房后还需要根据实际情况进行调整。
需求:1、喜欢美式乡村风格
           2、想尽量从次卧隔出一个衣帽间
           3、想小客厅显得宽敞一点,与厨房的隔打掉做成弧形框加隔断,加悬挂式折叠门藏到厨房角落,需要时拉开阻隔油烟
           4、主卧、主卫和次卧、次卫互换
近日开始学习装修的有关知识,我时间还早,要明年才交房。想等交房时间差不多了再请设计师对布局、色调、风格和细节进行把握,定下主材和家具,一交房就开始装修。现在自己瞎画了一些图,请大家看看哪个方案最合理?

原始户型图:

原始户型图

原始户型图


面积图

面积图

面积图

方案1:将主卧和次卧换位,次卧隔出一个衣帽衣兼储藏室。餐厅卡座

方案1

方案1

方案2:餐厅用圆桌,增加一个餐边柜或餐边搁架




方案2

方案2


方案3:主卧做一个小玄关,做成衣帽间,两边是隔子放折叠衣物,中间挂衣物。不知道是不是可行?
方案2.png
回复

使用道具 举报

481

主题

1万

帖子

5万

积分

博士毕业

积分
52600

社区居民优秀斑竹宣传大使最爱沙发社区劳模社区明星忠实会员

发表于 2013-6-19 16:23:12 | 显示全部楼层
卫生间的设计改动要考虑到管道的移位,好多都是不能动的。所以还是先别考虑卫生间的改动了。

厨房的话,还是建议保留原来的样子,悬挂式折叠门并不是很实用,容易坏,装上以后,肯定不回经常开启的。还是隔墙实用性大。
回复

使用道具 举报

10

主题

195

帖子

420

积分

初中毕业

积分
420

社区居民忠实会员

发表于 2013-6-19 16:33:26 | 显示全部楼层
厨房还是要着隔断墙吧,折叠门不好使。
回复

使用道具 举报

4

主题

29

帖子

76

积分

学前班

积分
76

社区居民忠实会员

发表于 2013-6-19 16:48:03 | 显示全部楼层
原户型不错啊,感觉不用怎么改动,次卫上边可以加个隔断墙做个干湿分离。
回复

使用道具 举报

4

主题

28

帖子

74

积分

学前班

积分
74

社区居民

 楼主| 发表于 2013-6-19 17:03:36 | 显示全部楼层

回 1楼(暴雪) 的帖子

暴雪:卫生间的设计改动要考虑到管道的移位,好多都是不能动的。所以还是先别考虑卫生间的改动了。

厨房的话,还是建议保留原来的样子,悬挂式折叠门并不是很实用,容易坏,装上以后,肯定不回经常开启的。还是隔墙实用性大。 (2013-06-19 16:23)
做隔断是想在厨房干活做饭摘菜时能够看到客厅电视啊什么的,厨房基本就我一个人进,一个人闷在里面太暗无天日了。折叠门本时基本可以不用,只有炒味道特别重的菜的时候才用一下。另外半开放厨房是不是用让整个房子看起来大些呢?


卫生间互换会尽量保持马桶的位置,到时候看实际情况再调整。不换感觉无法隔出储藏室啊,家里行李箱啊什么要放的东西太多了。
回复

使用道具 举报

4

主题

28

帖子

74

积分

学前班

积分
74

社区居民

 楼主| 发表于 2013-6-19 17:05:36 | 显示全部楼层

回 3楼(两只小猪盖房子) 的帖子

两只小猪盖房子:原户型不错啊,感觉不用怎么改动,次卫上边可以加个隔断墙做个干湿分离。 (2013-06-19 16:48)
隔断是要加的,就是要想办法隔出储藏室,所以不改墙不行啊
回复

使用道具 举报

4

主题

28

帖子

74

积分

学前班

积分
74

社区居民

 楼主| 发表于 2013-6-19 17:08:03 | 显示全部楼层

回 2楼(春天的小雪) 的帖子

春天的小雪:厨房还是要着隔断墙吧,折叠门不好使。 (2013-06-19 16:33)
不行做一个艺术窗也行,就是想一个人做饭摘菜煮咖啡时能看电视
回复

使用道具 举报

481

主题

1万

帖子

5万

积分

博士毕业

积分
52600

社区居民优秀斑竹宣传大使最爱沙发社区劳模社区明星忠实会员

发表于 2013-6-19 17:29:31 | 显示全部楼层

回 6楼(cqcqm) 的帖子

cqcqm:不行做一个艺术窗也行,就是想一个人做饭摘菜煮咖啡时能看电视 (2013-06-19 17:08)
做饭时就没时间看电视了。要是看电视,可以做个玻璃隔断,这样厨房还亮堂一些。
回复

使用道具 举报

14

主题

1658

帖子

4万

积分

硕士毕业

积分
49611

社区居民忠实会员最爱沙发

发表于 2013-6-19 21:52:55 | 显示全部楼层
我直接把ipad放边上
回复

使用道具 举报

4

主题

28

帖子

74

积分

学前班

积分
74

社区居民

 楼主| 发表于 2013-6-19 23:29:51 | 显示全部楼层
请问大家 觉得这样隔一个储藏室行吗?还有没有别的好主意能够变一个储藏室呢?
回复

使用道具 举报

您需要登录后才可以回帖 登录 | 立即注册

本版积分规则

装修百科|手机版|小黑屋|北京高老庄建筑装饰工程有限公司 ( 京ICP备19035109号 )

GMT+8, 2026-4-10 23:59 , Processed in 0.408116 second(s), 29 queries .

快速回复 返回顶部 返回列表