
|
7165| 16
|
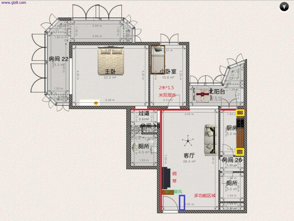
[装修讨论] 我家户型图,恳请大家提出宝贵意见! |
| ||
| ||
回 2楼(老庄) 的帖子
| ||
| ||
回 3楼(jjl113) 的帖子
| ||
回 4楼(负极) 的帖子
| ||
回 5楼(老庄) 的帖子
| ||
|
| |
回 8楼(老庄) 的帖子
| ||
装修百科|手机版|小黑屋|北京高老庄建筑装饰工程有限公司 ( 京ICP备19035109号 )
GMT+8, 2026-4-10 22:26 , Processed in 0.628301 second(s), 29 queries .