
|
|
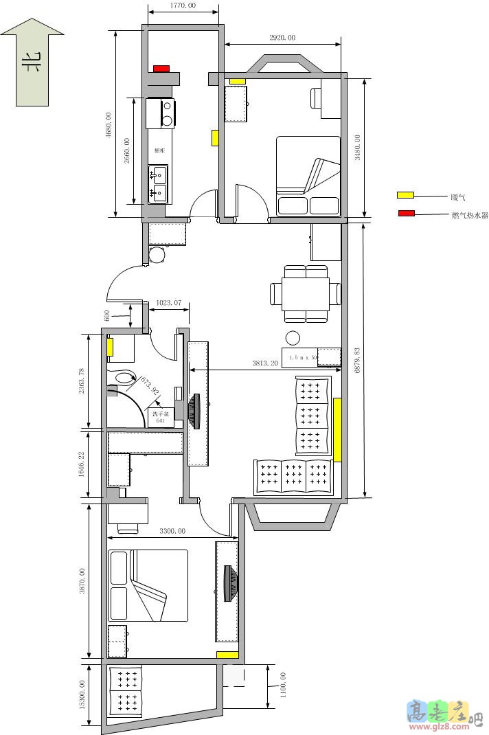
新房装修那点儿事儿——定了第二件材料 |
回 15楼(liam) 的帖子
| ||
回 19楼(懒咩咩) 的帖子
| ||
回 21楼(老庄) 的帖子
| ||
|
| |
|
加强学习,虚心求教,共同进步
|
|
回 22楼(懒咩咩) 的帖子
| ||
回 24楼(老庄) 的帖子
| ||
| ||
7.11 阴天
| ||
回 26楼(懒咩咩) 的帖子
| ||
回 28楼(老庄) 的帖子
| ||
装修百科|手机版|小黑屋|北京高老庄建筑装饰工程有限公司 ( 京ICP备19035109号 )
GMT+8, 2026-4-10 17:46 , Processed in 0.154890 second(s), 26 queries .