北京装修论坛 - 北京装修社区_高老庄工长装修

 找回密码
立即注册
热搜: 工长 设计 曝光
楼主: 酔尘

咱也开始了,各种迷茫,各种晕。

[复制链接]

1314

主题

1万

帖子

4万

积分

管理员

Rank: 9Rank: 9Rank: 9

积分
43987

社区居民社区劳模最爱沙发社区明星忠实会员

发表于 2013-7-19 07:55:10 | 显示全部楼层

回 19楼(酔尘) 的帖子

酔尘:这是初步户型平面图,还得在改。。我先已经把厨房改成封闭的了,主卧的柜子不要衣帽间了。 (2013-07-18 22:32) 
昨天晚上看过这个图。整体上感觉设计师水平比较低,小年轻,没生活经验。

1,厨房除非面积非常小,不要敞开,油烟很重的,你家厨房面积很大,餐桌可以放在厨房中。
http://bbs.glz.cn/read.php?tid=8900&ds=1#108724
看看负极家的设计,可以用柜子封闭厨房,你家正好,一边橱柜,一边书柜。

2,我感觉你的衣帽间应该是卫生间改的吧?如果是,建议恢复为卫生间。卫生间非常有用的。
如果不是,可以考虑把次卧的下墙拆除,次卧中的衣柜镶到衣帽间空间中,这样次卧面积会大很多。可以升级为主卧了。呵呵。

3,主要问题在卫生间。淋浴和马桶挨着非常不好,洗完澡还得擦马桶。老庄建议如下。
把淋浴房放在卫生间左下角(也可以垂直于左墙砌90左右的砖砌,可以挂浴帘也可以安玻璃门),这是一个独立的淋浴空间。
把干湿区中间的墙拆除,马桶对面可以做双盆的浴室柜,呵呵,避免早晨起来为了谁先刷牙而打架。
马桶右侧放洗衣机,平时不用的时候洗衣机上面还可以放杂志、小说,手纸什么的。
这样修改后,卫生间利用效率,大大增加,而且干湿分离。
回复

使用道具 举报

9

主题

75

帖子

215

积分

小学毕业

积分
215

社区居民

 楼主| 发表于 2013-7-19 16:54:32 | 显示全部楼层

回 20楼(老庄) 的帖子

老庄:昨天晚上看过这个图。整体上感觉设计师水平比较低,小年轻,没生活经验。

1,厨房除非面积非常小,不要敞开,油烟很重的,你家厨房面积很大,餐桌可以放在厨房中。
http://bbs.glz.cn/read.php?tid=8900&ds=1#108724
....... (2013-07-19 07:55) 
恩·谢谢老庄 我在研究下。。
我这个屋子就一个厕所,只是一个卧室是长方形的开始设计了个衣帽间。。后来觉得没必要,我已经给去了,新的图纸在制作中。。。
回复

使用道具 举报

9

主题

75

帖子

215

积分

小学毕业

积分
215

社区居民

 楼主| 发表于 2013-7-19 19:29:22 | 显示全部楼层
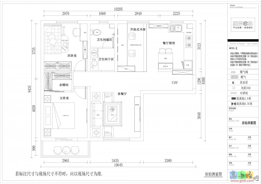
我有必要做衣帽间么,这是原始测量图

这是原始图

这是原始图

这是改后

这是改后
回复

使用道具 举报

1314

主题

1万

帖子

4万

积分

管理员

Rank: 9Rank: 9Rank: 9

积分
43987

社区居民社区劳模最爱沙发社区明星忠实会员

发表于 2013-7-19 21:49:06 | 显示全部楼层

回 22楼(酔尘) 的帖子

酔尘:我有必要做衣帽间么,这是原始测量图

 (2013-07-19 19:29) 
没必要。

画蛇添足,浪费面积。
回复

使用道具 举报

9

主题

75

帖子

215

积分

小学毕业

积分
215

社区居民

 楼主| 发表于 2013-7-21 21:10:53 | 显示全部楼层
格局布置终于敲定了,老庄说的挺好的,我也详细的考虑了下,厕所还是按照以前的来了,实在不想在早上刷牙的时候身边还有个蹲坑的。。。。房子小,就一个厕所,也无法实现两个,厕所就这样弄了,听从老庄的意见,厨房改封闭了,门是隐形门,衣帽间也去掉了,那里原来就是这个样子的,恢复原状,现在等小样图吧。。。帖子先这样吧,最后在编辑。回头我图都传一楼去。
平面布置图(1).jpg
回复

使用道具 举报

10

主题

95

帖子

242

积分

小学毕业

积分
242

社区居民

发表于 2013-7-22 06:53:06 | 显示全部楼层

回 2楼(酔尘) 的帖子

酔尘:设计师今天上午本来打算9点02分坐城铁过来,结果还限坐,就叫上400-500人,刚排到那,不叫上了,没法子,坐10点58分的城铁过来的,到我这里12点半了,话说我还木有吃饭啊,话说还来个妹纸,一个人,美女哇,也不怕我给拉出去卖了。。拉着设计师去饭馆凑活吃了顿,奔向房子。 .. (2013-07-14 20:04) 
哪找的?有设计师的照片吗
回复

使用道具 举报

11

主题

103

帖子

287

积分

小学毕业

积分
287

社区居民

发表于 2013-7-22 21:21:20 | 显示全部楼层

回 25楼(trilingual) 的帖子

trilingual:哪找的?有设计师的照片吗 (2013-07-22 06:53)
你目的不纯吧?
回复

使用道具 举报

9

主题

75

帖子

215

积分

小学毕业

积分
215

社区居民

 楼主| 发表于 2013-7-23 19:33:00 | 显示全部楼层

回 25楼(trilingual) 的帖子

trilingual:哪找的?有设计师的照片吗 (2013-07-22 06:53) 
设计师是个妹子哦~~~
回复

使用道具 举报

9

主题

75

帖子

215

积分

小学毕业

积分
215

社区居民

 楼主| 发表于 2013-7-23 19:33:08 | 显示全部楼层

回 26楼(49678958) 的帖子

49678958:你目的不纯吧? (2013-07-22 21:21) 
我觉得也是
回复

使用道具 举报

10

主题

95

帖子

242

积分

小学毕业

积分
242

社区居民

发表于 2013-7-27 11:13:48 | 显示全部楼层

回 27楼(酔尘) 的帖子

酔尘:设计师是个妹子哦~~~ (2013-07-23 19:33) 
知道是妹子才要照片的
回复

使用道具 举报

您需要登录后才可以回帖 登录 | 立即注册

本版积分规则

装修百科|手机版|小黑屋|北京高老庄建筑装饰工程有限公司 ( 京ICP备19035109号 )

GMT+8, 2026-4-10 16:22 , Processed in 0.253636 second(s), 26 queries .

快速回复 返回顶部 返回列表