北京装修论坛 - 北京装修社区_高老庄工长装修

 找回密码
立即注册
热搜: 工长 设计 曝光
查看: 5370|回复: 7

[装修讨论] 让我很纠结的卫生间

[复制链接]

1

主题

4

帖子

30

积分

学前班

积分
30

社区居民

发表于 2013-8-4 22:19:25 | 显示全部楼层 |阅读模式
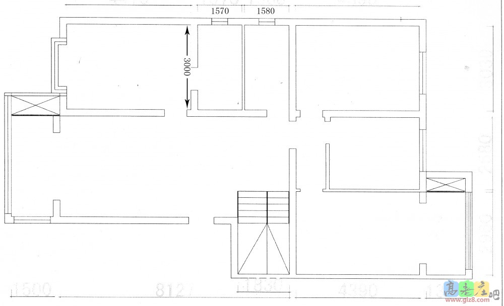
给位装修达人和前辈,本人近期准备装修,可是户型的局限(本人这么认为),想让大家帮我想想卫生间如何布局,总是觉得这个面积不伦不类,

达到的目标:
    [li]干湿分离;[/li][li]两个独立(或者不独立,合二为一,可以起到有效的隐私分割),主卧卫生间需要一个浴缸,公共卫生间可以淋浴[/li]

    [li]注:无需考虑排水管和排污管的位置[/li][li]只有中间一道墙是非承重墙[/li][li]本人预算有限,如果需要付费设计,就算了[/li]

谢谢各位啦!      论坛回复我,或者jackycheung0007@126.com

00101.jpg
回复

使用道具 举报

1314

主题

1万

帖子

4万

积分

管理员

Rank: 9Rank: 9Rank: 9

积分
43987

社区居民社区劳模最爱沙发社区明星忠实会员

发表于 2013-8-4 22:52:11 | 显示全部楼层
缺少最关键信息,马桶位置在哪里?
回复

使用道具 举报

1

主题

4

帖子

30

积分

学前班

积分
30

社区居民

 楼主| 发表于 2013-8-4 23:02:58 | 显示全部楼层

回 1楼(老庄) 的帖子

老庄:缺少最关键信息,马桶位置在哪里? (2013-08-04 22:52) 
不用考虑,我可以改位置
回复

使用道具 举报

1314

主题

1万

帖子

4万

积分

管理员

Rank: 9Rank: 9Rank: 9

积分
43987

社区居民社区劳模最爱沙发社区明星忠实会员

发表于 2013-8-4 23:05:57 | 显示全部楼层

回 2楼(jackycheung007) 的帖子

jackycheung007:不用考虑,我可以改位置 (2013-08-04 23:02) 
呵呵,装修知识告诉我们,不要动马桶位置。如果以后马桶经常堵,是装修的最大悲哀。
回复

使用道具 举报

1

主题

4

帖子

30

积分

学前班

积分
30

社区居民

 楼主| 发表于 2013-8-4 23:08:34 | 显示全部楼层

回 3楼(老庄) 的帖子

老庄:呵呵,装修知识告诉我们,不要动马桶位置。如果以后马桶经常堵,是装修的最大悲哀。 (2013-08-04 23:05) 
楼下也是我的,半地下,我有决心把它处理好,就是这个卫生间,分开两个都是细长条,觉得不是很好处理
回复

使用道具 举报

1314

主题

1万

帖子

4万

积分

管理员

Rank: 9Rank: 9Rank: 9

积分
43987

社区居民社区劳模最爱沙发社区明星忠实会员

发表于 2013-8-4 23:19:11 | 显示全部楼层
其实达到你的要求很简单,不用拆中间的墙,有2个卫生间还是非常好的,因为小孩长大了,就是需要独立卫生间。

主卧宽度有1.57米,可以装1.5米的浴缸,马桶安排在浴缸下面,正对门,再下面可以装双盆浴室柜。

公共卫生间,左下角装淋浴房,上面是马桶(对着卫生间右边的墙),马桶上面可以放洗衣机,洗衣机对面放洗脸盆。
回复

使用道具 举报

1

主题

4

帖子

30

积分

学前班

积分
30

社区居民

 楼主| 发表于 2013-8-4 23:32:03 | 显示全部楼层

回 5楼(老庄) 的帖子

老庄:其实达到你的要求很简单,不用拆中间的墙,有2个卫生间还是非常好的,因为小孩长大了,就是需要独立卫生间。

主卧宽度有1.57米,可以装1.5米的浴缸,马桶安排在浴缸下面,正对门,再下面可以装双盆浴室柜。

公共卫生间,左下角装淋浴房,上面是马桶(对着卫生间右边的墙),马桶 .. (2013-08-04 23:19) 
恩,这个建议不错,我借鉴一下,我可能就是一开始就把浴缸的尺寸,贪大了,还有一个问题,就是马桶都,正对着门这样,好吗?
回复

使用道具 举报

1314

主题

1万

帖子

4万

积分

管理员

Rank: 9Rank: 9Rank: 9

积分
43987

社区居民社区劳模最爱沙发社区明星忠实会员

发表于 2013-8-5 00:37:05 | 显示全部楼层

回 6楼(jackycheung007) 的帖子

jackycheung007:恩,这个建议不错,我借鉴一下,我可能就是一开始就把浴缸的尺寸,贪大了,还有一个问题,就是马桶都,正对着门这样,好吗? (2013-08-04 23:32) 
这样省空间,没什么不好。
回复

使用道具 举报

您需要登录后才可以回帖 登录 | 立即注册

本版积分规则

装修百科|手机版|小黑屋|北京高老庄建筑装饰工程有限公司 ( 京ICP备19035109号 )

GMT+8, 2026-4-10 16:11 , Processed in 0.609536 second(s), 28 queries .

快速回复 返回顶部 返回列表