
|
|
心的家园,梦的起点 |
|
| |
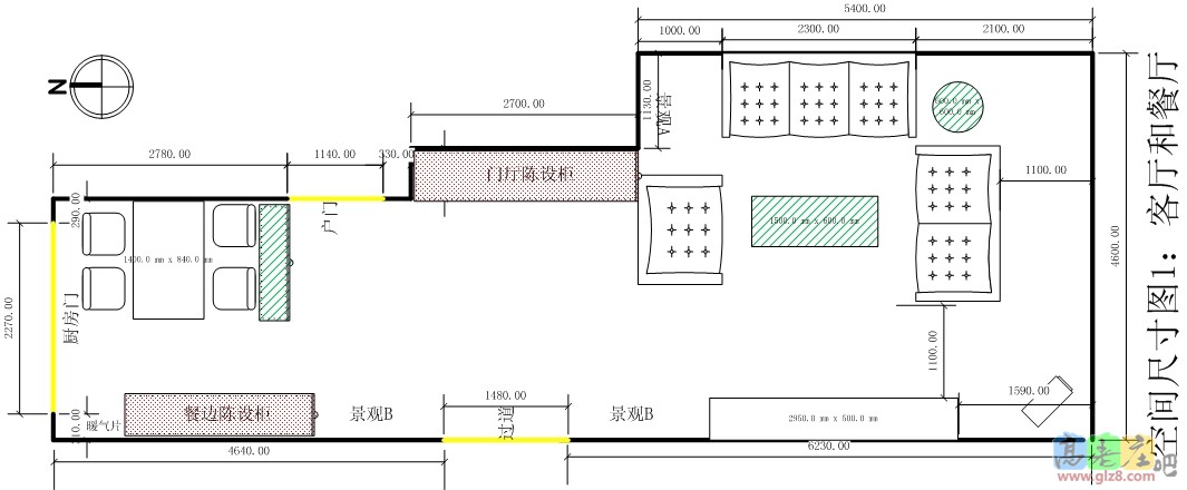
10.23 设计难点 餐厅与入户门之间的隔断
| ||
回 21楼(codeman) 的帖子
| ||
|
骑行是充满能量的运动,但路上少不了偏见和嘲笑。哪怕脸刹摔车,也要骑得漂亮。我爱骑行,我为自己代言~
(作品81号)【定居京杭大运河的起点】新房两居装修记
|
||
| ||
| ||
回 23楼(codeman) 的帖子
| ||
装修百科|手机版|小黑屋|北京高老庄建筑装饰工程有限公司 ( 京ICP备19035109号 )
GMT+8, 2026-4-1 15:18 , Processed in 0.649711 second(s), 29 queries .