北京装修论坛 - 北京装修社区_高老庄工长装修

 找回密码
立即注册
热搜: 工长 设计 曝光
楼主: 孙悟空0826

我的装修我做主--我爱我家之装修篇

[复制链接]

7

主题

28

帖子

97

积分

学前班

积分
97

社区居民忠实会员

QQ
 楼主| 发表于 2013-12-23 23:20:01 | 显示全部楼层
请有装修经验的同学们多提宝号意见。

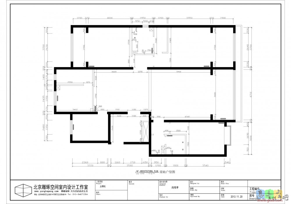
我家的原始户型图

我家的原始户型图

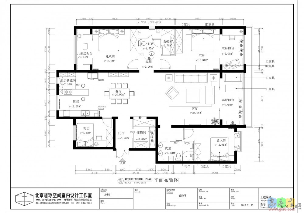
平面布置图

平面布置图
回复

使用道具 举报

31

主题

1029

帖子

2156

积分

大专毕业

积分
2156

社区居民

发表于 2013-12-24 11:16:46 | 显示全部楼层
大房子,大阳台,流口水中~~~
回复

使用道具 举报

7

主题

28

帖子

97

积分

学前班

积分
97

社区居民忠实会员

QQ
 楼主| 发表于 2013-12-25 21:34:24 | 显示全部楼层
今天正式开工了!!!
    上午工长带着一个小工(我以为小工都是毛头小伙,也乎意料这是一个年龄偏大的小工)来到现场,我交待了需要改动的墙体,到底是干了多年的装修,我稍一说,工长和工人就能理会我的意图,很快就开干,总得来说,不错。
    下午,装修设计师、橱柜设计师、工长和我一起到现场,沟通具体水电改动的细节,我选了海尔橱柜,橱柜设计师量完厨房,问了我一些具体需求,回去做厨房水电图,明天我们再沟通。尚设计师与方工长具体交流各个房间水路和电路图,以及各墙体的改动情况,设计师说这个工长很细致,评价不错,我感觉设计师也考虑比较周到,前两天与设计师沟通不及时,有些许误会,我昨天上午打电话发了火,有中止合约的想法,下午设计师约我见面细谈了他的想法,误会的主要原因是我们考虑的装修时间不一致。下午在施工现场交流时,工人不小心划破尚设计师的羽绒服,让我很是内疚,工长批评了工人,设计师大度地表示没关系,这件衣服也旧了。
    不说题外话了,明天水电改造,楼内水管全部用的是PB管,单位营建办经过考察找到一家PB管经销商,我的水路改造也用他们的PB管了,省事。
回复

使用道具 举报

您需要登录后才可以回帖 登录 | 立即注册

本版积分规则

装修百科|手机版|小黑屋|北京高老庄建筑装饰工程有限公司 ( 京ICP备19035109号 )

GMT+8, 2026-4-9 00:21 , Processed in 0.360911 second(s), 26 queries .

快速回复 返回顶部 返回列表