北京装修论坛 - 北京装修社区_高老庄工长装修

 找回密码
立即注册
热搜: 工长 设计 曝光
楼主: scott0829

有阁楼情结的三口之家 德斯曼橱柜返工中 柏迪衣柜完成

[复制链接]

8

主题

243

帖子

524

积分

初中毕业

积分
524

社区居民

 楼主| 发表于 2013-11-22 12:53:21 | 显示全部楼层
对了,当初因为楼梯位置这个问题也纠结很久很久很久。。。。我是一个驴粪袋表面光的人,卧室多乱没关系,客厅不能乱,也不能挤。我的要求是,餐桌必须有地方放,门口还得有超大鞋柜和衣柜。可是房子就那么大点,这个要求太难满足了,设计师出了很多图,我都不满意。最后,还是工长出的主意,占用一个北房,把北房改成楼梯间,楼梯间可以当开放式书房。。。。我举双手赞成,可老公不同意,说楼梯放门口气派,而且他不要开放式书房,他必须要封闭的空间,在书房思考问题的时候必须没人打扰。。。僵持了一阵,又想了几个方案都否了。
其实,我第一时间就已经认准了要放北房了,我提议楼梯间作为宝宝的活动室,玩具书神马的放在这里,老公的书房放到楼上,插上门拉上帘,我们都不管,最后在我的坚持下,老公终于同意放北房。
先上几个设计师出的楼梯位置的图都不太满意

002.jpg
003.jpg
004.jpg
回复

使用道具 举报

8

主题

243

帖子

524

积分

初中毕业

积分
524

社区居民

 楼主| 发表于 2013-11-22 12:56:16 | 显示全部楼层
最后发一个楼梯确定的位置示意图
001.jpg
回复

使用道具 举报

8

主题

243

帖子

524

积分

初中毕业

积分
524

社区居民

 楼主| 发表于 2013-11-22 13:22:34 | 显示全部楼层
设计师是工长俱乐部给我们找的,这个设计师很年轻,湖北人,第一感觉就是,没见过什么大场面,设计经验也不足,量房子量了至少2次,还说尺寸不准。期间有一次,开门洞的时候,跟他爆发了一次,尺寸没量准,门洞开小了,我特别生气,如果从新开的话,还得加钱,少说得500.....后来经过确认,是我误会了,对他还挺不好意思的。设计师也就出了几个图,完全没有给过我觉得漂亮的idea,唯一的亮点,是楼上的那个小储物间,其他的,只能说表现so so。不过,也可以了,我们家比较远,来来回回跑了好几趟,也挺辛苦的,每次都是熬了一宿画图,第二天,给他叫来工地,给他打电话的时候还没有起。工长还干什么都要拉着他,总说,让设计师也听听,把设计师叫来,让他出图,等等。。。。好几次都让我给噎回去了,我说,你叫他来干什么?我跟你说清楚了不就行了么?我跟你说,你知道怎么干了,你直接让工人干,很简单呀,为什么非得让设计师过一道手,我还得给你们讲2边,让你们2个人都明白,有必要吗??工长看我语气强硬也就不说什么了。其实我知道工长心里怎么想的,他是想设计师给出图,他们按着图做,如果,我有什么意见,他就可以拿着图说话,他图是这么画的,我们照着做而已,一方面推卸责任,一方面怕我不认账,空口无凭,落实到图上,我不能不认账。。。。工长的啰嗦和谨小慎微,真让我哑口无言。其实,他的活儿真的没的说,而且,经验丰富,给过我很多好的建议。很多细节的东西,我都是参照他的意见,我都很喜欢。但是,胆小啰嗦,真的让我崩溃,一件事情,反反复复说好几遍,电话里说不清楚,还得见面说,见一次说完了明白了,不行,还得说,吊顶跟他说完了,明白了,还让我跟木工再说一遍。。。。。我不烦,我都怕人家木工烦。

但,总的来说,我还是推荐这个工长的,顶多大家费费口舌。我不乐意了,直接爆发,他也就不说什么了。
回复

使用道具 举报

8

主题

243

帖子

524

积分

初中毕业

积分
524

社区居民

 楼主| 发表于 2013-11-22 13:37:38 | 显示全部楼层
10月7号吧,还是六号来着,参加了老庄吧的团购会,订了很多东西,橱柜,衣柜,地暖,净水器,洁具,11月17号,订了窗户,厨卫吊顶,除了瓷砖是蒙娜丽莎单买的,其他都在团购会搞定。别的不怕,东西是正品,就行了,价钱也确实实惠。

橱柜刚初测一次,因为想要把楼底下的一个洗手间改成洗衣房,所以,打算和橱柜一起定,还有餐桌边上要做个餐边桌,已经初测过了,等贴完砖,就实测。
楼上地暖铺完了,也发过帖子,跟伟星地暖闹了不愉快,不过最后,证实他们活做得确实不错。

下面就按部就班,现在在吊顶,周六去看看,拍点照片
先放几张水电改装的图片吧,水电改造之前也是坐了功课,工长还是不错的,没有糊弄我,价钱还是实惠的,跟他砍价的时候,跟要哭了似得,心一软,也没砍掉多少。不过,楼上基本都是从新走的水电,心里价位也就差不多这些了。
SAM_0827.JPG
IMG_0264.JPG
回复

使用道具 举报

8

主题

243

帖子

524

积分

初中毕业

积分
524

社区居民

 楼主| 发表于 2013-11-22 13:40:42 | 显示全部楼层
伟星地暖之前单发过帖子,这里就象征性的发一张
SAM_0849.JPG
回复

使用道具 举报

8

主题

243

帖子

524

积分

初中毕业

积分
524

社区居民

 楼主| 发表于 2013-11-22 13:43:31 | 显示全部楼层
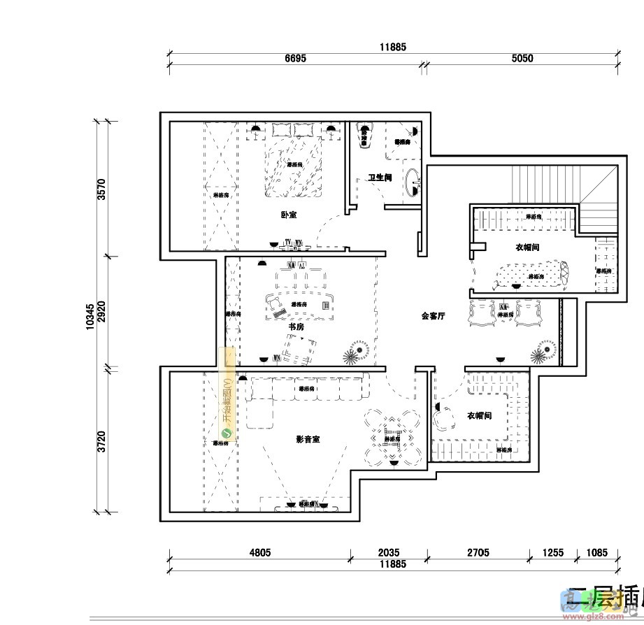
发2张设计图
细心地能看出来,一楼和二楼朝南2间房大小不一样,这就是设计师给画错了,二楼是按一楼的尺寸来的


今天先写这么多,会更新完的。。。我一个大闲人,也没别的事干,等我老了的时候回想起来。。。在高老庄还发过装修贴呢,也算人生的一笔。。哈哈
楼上.jpg
楼下.jpg
回复

使用道具 举报

0

主题

43

帖子

107

积分

小学毕业

积分
107

社区居民忠实会员

发表于 2013-11-22 17:07:13 | 显示全部楼层
回复

使用道具 举报

8

主题

243

帖子

524

积分

初中毕业

积分
524

社区居民

 楼主| 发表于 2013-11-23 17:27:44 | 显示全部楼层
今天去工地了,给了工长首期款还有改水电的钱。木工师傅已经开始吊顶了,大概一个礼拜可以钓完。瓦工明天也进场了,开始做防水贴砖。
准备下个礼拜去西四环把团购会订的容声吊顶搞定,选好材质和花色。还要把团购的科勒马桶,花洒,面盆订了,铺完砖一口气都装上。
铺完砖还要让橱柜来再次测量,然后就是等待,漫长的等待。。。。。

完全没有人气。。。好桑心。。。。
回复

使用道具 举报

3

主题

27

帖子

71

积分

学前班

积分
71

社区居民

发表于 2013-11-23 18:33:49 | 显示全部楼层
期待
回复

使用道具 举报

2

主题

51

帖子

128

积分

小学毕业

积分
128

社区居民

发表于 2013-11-23 23:40:47 | 显示全部楼层
你家的阁楼貌似材料规格用的比较细。刚装完的房子做的和你一样的方式。现在的房子,我决定改用植筋浇筑了。
向老庄同学学习,装修进行中...
回复

使用道具 举报

您需要登录后才可以回帖 登录 | 立即注册

本版积分规则

装修百科|手机版|小黑屋|北京高老庄建筑装饰工程有限公司 ( 京ICP备19035109号 )

GMT+8, 2026-4-7 19:17 , Processed in 0.272301 second(s), 25 queries .

快速回复 返回顶部 返回列表