
|
|
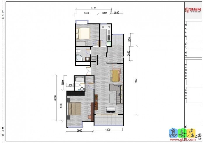
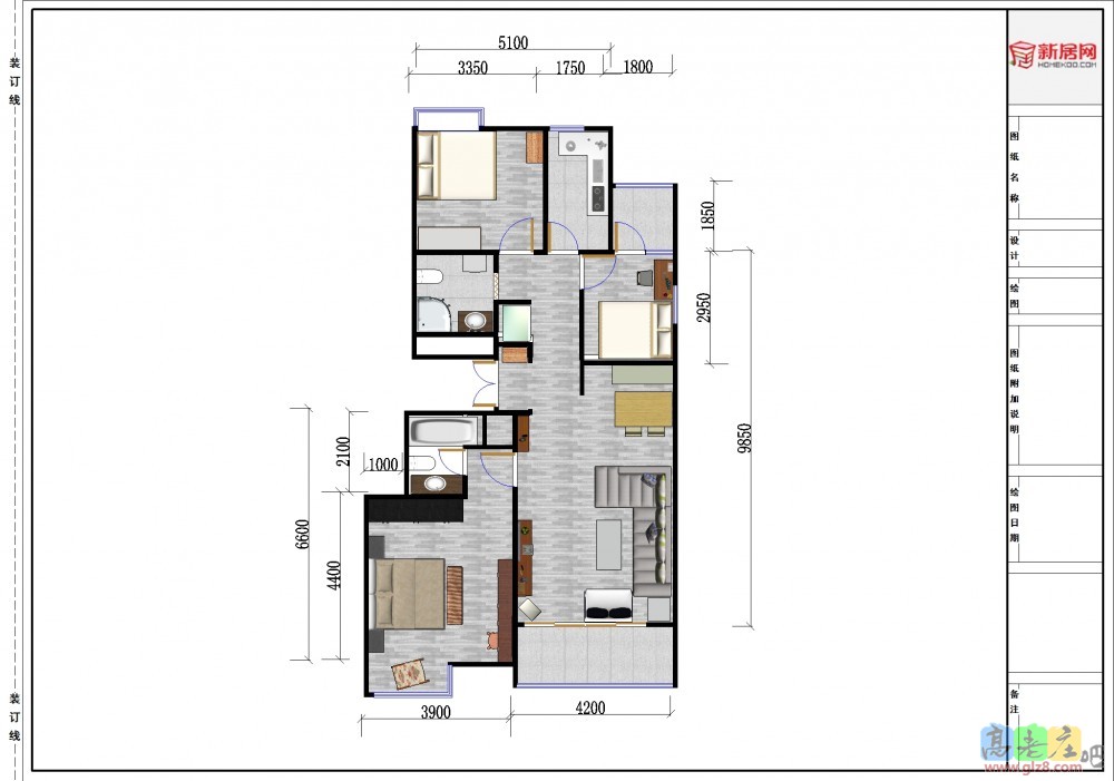
[装修讨论] 帮忙看下我的户型图,能不能这么改? |
回 7楼(醉蟋蟀) 的帖子
| ||
| ||
回 11楼(丽达达) 的帖子
| ||
| ||
回 11楼(丽达达) 的帖子
| ||
回 14楼(清月) 的帖子
| ||
回 15楼(丽达达) 的帖子
| ||
回 15楼(丽达达) 的帖子
| ||
回 16楼(清月) 的帖子
| ||
回 18楼(丽达达) 的帖子
| ||
装修百科|手机版|小黑屋|北京高老庄建筑装饰工程有限公司 ( 京ICP备19035109号 )
GMT+8, 2026-4-4 09:04 , Processed in 0.388124 second(s), 27 queries .