北京装修论坛 - 北京装修社区_高老庄工长装修

 找回密码
立即注册
热搜: 工长 设计 曝光
楼主: zouyh2015

[装修讨论] 东鹏瓷砖——漫漫送砖之路,选择整装的吧友看过来(已解决)

[复制链接]

6

主题

160

帖子

353

积分

初中毕业

积分
353

社区居民

发表于 2016-10-3 19:59:05 | 显示全部楼层

回 10楼(邮差) 的帖子

邮差:我也是整装,可能由于卫生间和样板间一样的缘故,东鹏没有出现任何延迟问题,而且都是工长和东鹏沟通。 (2016-10-03 19:58)
期望楼主问题赶紧解决
回复

使用道具 举报

11

主题

261

帖子

1809

积分

大专毕业

积分
1809

社区居民忠实会员

 楼主| 发表于 2016-10-5 00:01:46 | 显示全部楼层
更新帖子还真是蛮花时间的。希望我的努力能让整装做得更好。最新进展请大家移步我的装修日记“期待的整装”。
回复

使用道具 举报

11

主题

261

帖子

1809

积分

大专毕业

积分
1809

社区居民忠实会员

 楼主| 发表于 2016-10-5 00:16:48 | 显示全部楼层
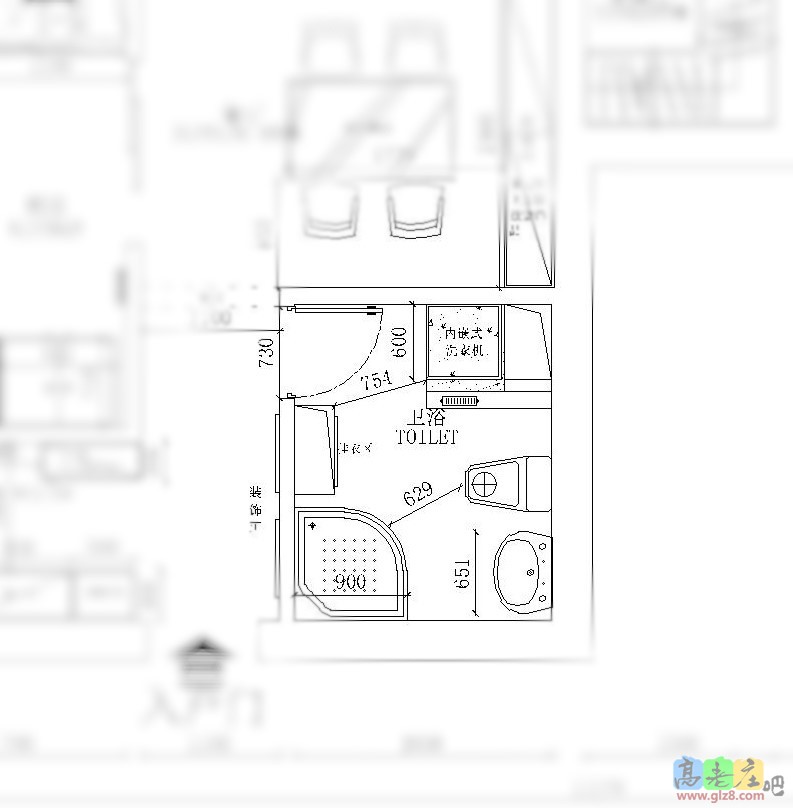
先看看我家的设计图纸:
酒仙桥电子城西区-次卫矮墙.jpg

洗衣机边上有一堵矮墙,洗衣机的宽度是600。
矮墙有什么影响呢?影响地面波打线的走行方向。
一般卫生间波打线是沿墙面一周,有了矮墙之后这样安排波打线就会中断。而且波打线完全被洗衣机挡在后面,起不到美化装饰的效果。
回复

使用道具 举报

11

主题

261

帖子

1809

积分

大专毕业

积分
1809

社区居民忠实会员

 楼主| 发表于 2016-10-5 23:40:41 | 显示全部楼层
在电脑上用360的浏览器就是无法更新,总是出现网络错误,要手机验证。
回复

使用道具 举报

11

主题

261

帖子

1809

积分

大专毕业

积分
1809

社区居民忠实会员

 楼主| 发表于 2016-10-5 23:43:54 | 显示全部楼层
这是用iPad写的,太慢又不方便发图。难道和浏览器有关?我好像没发表什么激烈言辞啊!有人遇到类似情况吗?
回复

使用道具 举报

11

主题

261

帖子

1809

积分

大专毕业

积分
1809

社区居民忠实会员

 楼主| 发表于 2016-10-6 06:54:50 | 显示全部楼层
亲自到现场和工长确定矮墙的位置,工长给出新的图纸。
矮墙.jpg

是在前次测量结果基础上修改的,增加了矮墙,也改动了其他一些数据。
大家注意,无论是设计师的图,还是工长的图,都没有标出这面墙到卫生间左手墙体的距离。
回复

使用道具 举报

11

主题

261

帖子

1809

积分

大专毕业

积分
1809

社区居民忠实会员

 楼主| 发表于 2016-10-6 07:08:54 | 显示全部楼层
花了两天的时间,群里无数次交流,才搞明白矮墙在哪里。
IMG_5615.PNG

IMG_5617.PNG
因为不知道距离,第一次出的图方位对的,单位置有偏差。我赶紧补充说明。
IMG_5619.PNG
IMG_5620.PNG
回复

使用道具 举报

11

主题

261

帖子

1809

积分

大专毕业

积分
1809

社区居民忠实会员

 楼主| 发表于 2016-10-6 07:13:18 | 显示全部楼层
越解释越乱,改了几次,连方位都不对了。让我一非专业人士着急上火也说不清。
回复

使用道具 举报

11

主题

261

帖子

1809

积分

大专毕业

积分
1809

社区居民忠实会员

 楼主| 发表于 2016-10-6 07:42:45 | 显示全部楼层
IMG_5628.PNG

标注的尺寸对的,可是与管道墙的位置关系还是不对。
IMG_5629.PNG

工长再次出手,这次把距离标上了。
IMG_5631.PNG


回复

使用道具 举报

11

主题

261

帖子

1809

积分

大专毕业

积分
1809

社区居民忠实会员

 楼主| 发表于 2016-10-6 08:07:55 | 显示全部楼层
看到很多吧友的帖子,瓷砖都有上门测量出设计,计算砖的数量。是因为整装所以省略了吗?想我家这种情况,如果实地测量一切就简单得多。
现在的情况,瓷砖、工长还有业主在群里说半天也说不明白。
这不,昨天晚上工长忽然汇报卫生间墙砖还少50块。这又是什么情况!
回复

使用道具 举报

您需要登录后才可以回帖 登录 | 立即注册

本版积分规则

装修百科|手机版|小黑屋|北京高老庄建筑装饰工程有限公司 ( 京ICP备19035109号 )

GMT+8, 2026-3-22 00:16 , Processed in 0.259615 second(s), 28 queries .

快速回复 返回顶部 返回列表