北京装修论坛 - 北京装修社区_高老庄工长装修

 找回密码
立即注册
热搜: 工长 设计 曝光
楼主: 红孩儿

精彩装修图片《最简约——以此庆祝入住新家半个月!》

[复制链接]

329

主题

9182

帖子

1万

积分

硕士毕业

积分
19805

社区居民最爱沙发社区明星

 楼主| 发表于 2012-12-3 15:50:18 | 显示全部楼层
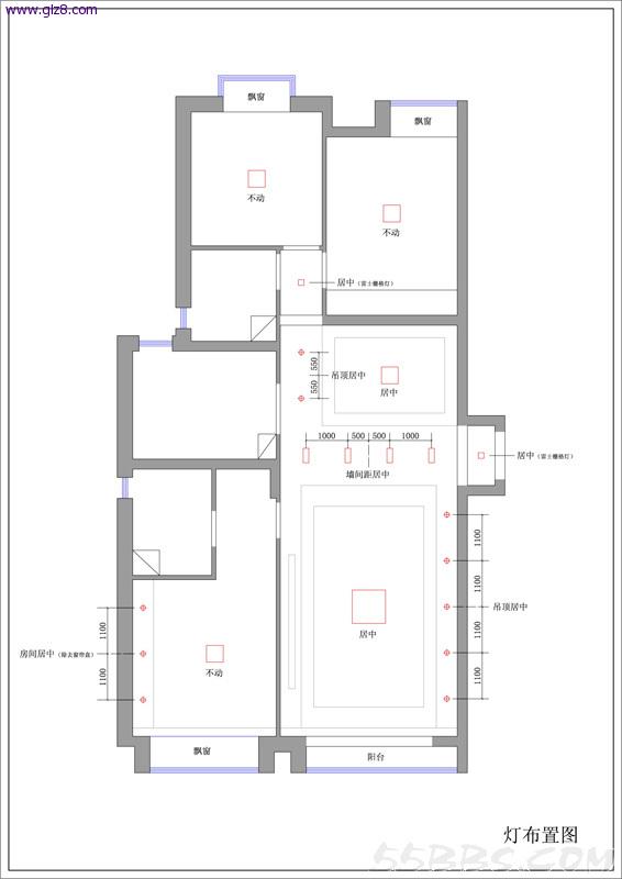
    灯布置图
     除了各个房间的主灯,筒灯、栅格灯也没少布置咯。
28.jpg
回复

使用道具 举报

329

主题

9182

帖子

1万

积分

硕士毕业

积分
19805

社区居民最爱沙发社区明星

 楼主| 发表于 2012-12-3 15:54:35 | 显示全部楼层
    继续更新。
     貌似大家对厨房比较感兴趣,先上厨房了。
     厨房面积不小,橱柜也一堆,价格也不菲。安装时运进来堆了大半个客厅,我都感叹那么多柜子能装进这个厨房。因为橱柜面板面积大,所以选择了亮面银色烤漆面板、白色石英石台面,这样比较稳妥,不担心出差错。遮挡壁挂炉的大百叶为厨房增色不少。
29.jpg
回复

使用道具 举报

329

主题

9182

帖子

1万

积分

硕士毕业

积分
19805

社区居民最爱沙发社区明星

 楼主| 发表于 2012-12-3 15:54:59 | 显示全部楼层
  烟机、灶和消毒柜新买的西门子的便宜系列,感觉灶不是特别好用。
     厨房水槽上面买了宜家的金属挂杆,一直还没时间约师傅来装。
30.jpg
回复

使用道具 举报

329

主题

9182

帖子

1万

积分

硕士毕业

积分
19805

社区居民最爱沙发社区明星

 楼主| 发表于 2012-12-3 15:55:22 | 显示全部楼层
    卫生间空间有限,洗衣机只能放厨房了。
     冰箱、洗衣机和白色的微波炉都是前房主给留得,自己彻底清理了一下接着用也挺好,又省钱了。
     洗衣机上本来是放微波炉和烤箱,因为多的微波炉没处理掉,烤箱还一直呆在柜子里呢。
31.jpg
回复

使用道具 举报

329

主题

9182

帖子

1万

积分

硕士毕业

积分
19805

社区居民最爱沙发社区明星

 楼主| 发表于 2012-12-3 15:55:51 | 显示全部楼层
    隆重介绍下厨房的门,三折的折叠门。
     为了这个门也是绞尽脑汁。厨房门洞1.2米,原来就是没有门,我都做川菜的、油烟大,门事必须的。做推拉的太小,把门洞堵起来开个普通门又小气,不甘心。于是乎寻遍建材市场的各个门品牌,选定了这个灰色的折叠门,以至于家里所有的门和踢脚线都跟他走。
     安装的时候,师傅说这个颜色的门基本没人定,三折的折叠门重来没安过,研究了半天总算搞定。
     事实证明门的选择很成功,朋友都说门的颜色和款式都很有特点。其实最重要的是门的颜色和家里的整体色调很协调。
     看看门开着、半开和关着的效果。
32.jpg
回复

使用道具 举报

329

主题

9182

帖子

1万

积分

硕士毕业

积分
19805

社区居民最爱沙发社区明星

 楼主| 发表于 2012-12-3 15:56:34 | 显示全部楼层
34.jpg
回复

使用道具 举报

329

主题

9182

帖子

1万

积分

硕士毕业

积分
19805

社区居民最爱沙发社区明星

 楼主| 发表于 2012-12-3 15:56:58 | 显示全部楼层
  再来一张从客厅看的效果,门的颜色和橱柜也挺统一协调的,自我感觉良好,哈哈。
35.jpg
回复

使用道具 举报

329

主题

9182

帖子

1万

积分

硕士毕业

积分
19805

社区居民最爱沙发社区明星

 楼主| 发表于 2012-12-3 15:57:32 | 显示全部楼层
    主卧
     主卧门移位了,为了在门后面能房下个柜子。因为主卧小,所以就放了一个1.8米的床,一个梳妆台和一个床头柜。准确的说主卧的家具除了床其他的都还没买,现在放的梳妆台和床头柜打算以后放次卧的。
     主卧进门处,门后面是柜子,左侧是主卫的门。
36.jpg
回复

使用道具 举报

329

主题

9182

帖子

1万

积分

硕士毕业

积分
19805

社区居民最爱沙发社区明星

 楼主| 发表于 2012-12-3 15:57:58 | 显示全部楼层
  主卧处理的超级简单,有窗帘盒,有简单的吊顶,有面咖啡色的背景墙。
37.jpg
回复

使用道具 举报

329

主题

9182

帖子

1万

积分

硕士毕业

积分
19805

社区居民最爱沙发社区明星

 楼主| 发表于 2012-12-3 15:58:53 | 显示全部楼层
    可惜主卧不是飘窗,是一个硕大的窗台。
38.jpg
回复

使用道具 举报

您需要登录后才可以回帖 登录 | 立即注册

本版积分规则

装修百科|手机版|小黑屋|北京高老庄建筑装饰工程有限公司 ( 京ICP备19035109号 )

GMT+8, 2026-3-22 15:24 , Processed in 0.626233 second(s), 35 queries .

快速回复 返回顶部 返回列表