北京装修论坛 - 北京装修社区_高老庄工长装修

 找回密码
立即注册
热搜: 工长 设计 曝光
查看: 164771|回复: 2159

精彩装修日记《简法轻美不拘一格梦想家》 搜集了好多装修知识与装修经验》

[复制链接]

29

主题

3895

帖子

7908

积分

本科毕业

积分
7908

社区居民

发表于 2013-4-18 10:32:26 | 显示全部楼层 |阅读模式
精彩装修日记转贴:《简法轻美不拘一格梦想家 》
来源:篱笆网
原作者:不如灌水

老庄推荐转贴原因:楼主的这一篇日记是我见过最最详尽的了,在装修的每一个环节都进行了事无巨细的记录,相信你可以从本篇装修日记中找寻到自己所需要的东西,看这个帖子就是学习装修全部过程。
35602585.jpg 46546).jpg
回复

使用道具 举报

29

主题

3895

帖子

7908

积分

本科毕业

积分
7908

社区居民

 楼主| 发表于 2013-4-18 10:37:27 | 显示全部楼层
回复

使用道具 举报

29

主题

3895

帖子

7908

积分

本科毕业

积分
7908

社区居民

 楼主| 发表于 2013-4-18 10:41:03 | 显示全部楼层
四、装修知识集锦
装修顺序及过程详解
非常实用---装修后才知道的事及各类遗憾
装修工人在施工中最容易犯错误的10个方面
风水篇
厨房,卫生间,餐厅,客厅,卧室材料费及人工费计算
人体工程学尺寸人体工程学尺寸及一些你绝对用的着的家装尺寸数据
水、电部分及如何验收
强、弱电的设计、布线及电路安装注意项、电路改造的八大误区
开关、插座知识及每个房间安排数量
灯光照明、智能家居的规划及我家的布线方案
鉴别熊猫电线真伪的方法
网线的选择
各类口碑品牌
水路安装工艺流程
水改工程知识解答、水路安装工艺流程、施工细节、防水及测试、XS家的防水方案小集合、防潮除湿的家居小常识及阳台防水
厨房的设计及尺寸、橱柜注意事项、配件价格表、橱柜五金注意点
板材篇及材料成本计算
桐油、木油之区别篇
墙面漆PK篇
油漆攻略
墙纸/墙布的选购和装饰施工流程
地板的知识
吊顶小知识
瓷砖的功课
楼梯知识
加层楼板的四种做法及建造方法
ZT轻钢龙骨隔墙的问题
ZT阳光房/封阳台
卫生间卫生洁具安装工艺流程
座便器的选择
地板采暖的混凝土施工标准
地暖的使用经验
地暖锅炉比较 威能vs博世
潜水艇地漏
软装网店集合贴
装饰风格指南
室内色彩搭配
室内配色方案学习ING一
室内配色方案学习二
不限于田园风格的工艺细节
家具的前人考察经验
床垫的选购和保养
鲁川大师谈装修--怎么检查防水、关于裂缝、关于墙地连接的处理、关于地暖回填的问题、对地面找平的看法、墙面涂漆的注意、
暂未归类的注意事项
小知识 各贴收集中
回复

使用道具 举报

29

主题

3895

帖子

7908

积分

本科毕业

积分
7908

社区居民

 楼主| 发表于 2013-4-18 10:41:48 | 显示全部楼层
六、装修进行时,随时抱佛脚




中央空调安装规范及验收
2011年6月29日大金空调安装了







地暖验收
2011年7月6日开始安装主管了



水电结束拍一圈
回复

使用道具 举报

29

主题

3895

帖子

7908

积分

本科毕业

积分
7908

社区居民

 楼主| 发表于 2013-4-18 10:42:09 | 显示全部楼层
启动设计好像是2.22,记不清了,到今天才基本确定平面的方案。我又多纠结可见一斑。连我老公也嘲笑我买房子那么大事不顾全家反对,一个人敢做主签合同作决定;装修中连各人房间放哪里这些小事(这是他理解的平面阶段需要确认的事情)也要纠结快一个月。。。。。。
但总算是基本尘埃落定了。相处一个月,美女设计师 非常耐心也才思不断,所有我坚持的,最后她都想办法帮我实现了,当然,也有我一开始不能接受的,但在她的一定坚持下,最终得以保留。。。具体先不揭秘,最后看看我坚持的部分效果好的多呢,还是她的多。哈哈


设计师的坚持其实是很可贵的。因为专业,所以自信,所以可以不盲目全盘听从业主的想法。

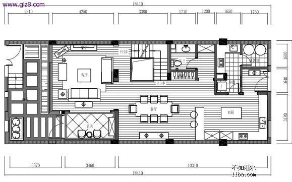
从一楼平面开始贴吧,希望同期装友能给予美好建议哦
1.jpg
回复

使用道具 举报

29

主题

3895

帖子

7908

积分

本科毕业

积分
7908

社区居民

 楼主| 发表于 2013-4-18 10:42:39 | 显示全部楼层
总算研究好怎么做合适大小的图了
2.jpg
回复

使用道具 举报

29

主题

3895

帖子

7908

积分

本科毕业

积分
7908

社区居民

 楼主| 发表于 2013-4-18 10:42:50 | 显示全部楼层
二楼,曾经很多,现在还有些纠结的点在这里
最左边,也就是南端本来是一个长方形 的大房间,现在一分为二,一间是儿子的卧室,一间隔得小些的是利用率为一年约三个月的父母房.父母房不知道180的床还能放进去吗?
3.jpg
回复

使用道具 举报

29

主题

3895

帖子

7908

积分

本科毕业

积分
7908

社区居民

 楼主| 发表于 2013-4-18 10:43:57 | 显示全部楼层
二楼的主要家具尺寸
4.jpg
回复

使用道具 举报

29

主题

3895

帖子

7908

积分

本科毕业

积分
7908

社区居民

 楼主| 发表于 2013-4-18 10:44:10 | 显示全部楼层
三楼的平面布置
5.jpg
回复

使用道具 举报

29

主题

3895

帖子

7908

积分

本科毕业

积分
7908

社区居民

 楼主| 发表于 2013-4-18 10:44:21 | 显示全部楼层
三楼的家具尺寸
6.jpg
回复

使用道具 举报

您需要登录后才可以回帖 登录 | 立即注册

本版积分规则

装修百科|手机版|小黑屋|北京高老庄建筑装饰工程有限公司 ( 京ICP备19035109号 )

GMT+8, 2026-4-1 13:47 , Processed in 1.095650 second(s), 34 queries .

快速回复 返回顶部 返回列表