北京装修论坛 - 北京装修社区_高老庄工长装修

 找回密码
立即注册
热搜: 工长 设计 曝光
楼主: 净坛使者

精彩装修日记《简法轻美不拘一格梦想家》 搜集了好多装修知识与装修经验》

[复制链接]

29

主题

3895

帖子

7908

积分

本科毕业

积分
7908

社区居民

 楼主| 发表于 2013-4-18 10:44:33 | 显示全部楼层
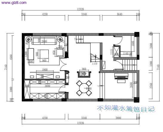
地下室的平面布置
7.jpg
回复

使用道具 举报

29

主题

3895

帖子

7908

积分

本科毕业

积分
7908

社区居民

 楼主| 发表于 2013-4-18 10:44:42 | 显示全部楼层
地下室家具尺寸

8.jpg
回复

使用道具 举报

29

主题

3895

帖子

7908

积分

本科毕业

积分
7908

社区居民

 楼主| 发表于 2013-4-18 10:44:52 | 显示全部楼层
开始贴图欣赏(感谢所有美图的原帖者  )
也有很多图是从国外家装杂志上挖下来的,纯属欣赏哦。。。。。。

看看大小。
9.jpg
回复

使用道具 举报

29

主题

3895

帖子

7908

积分

本科毕业

积分
7908

社区居民

 楼主| 发表于 2013-4-18 10:45:04 | 显示全部楼层
无顺序无章法贴图
先贴点和我家方案相关的参考图
地下室车库进门的小鞋柜
10.jpg
回复

使用道具 举报

29

主题

3895

帖子

7908

积分

本科毕业

积分
7908

社区居民

 楼主| 发表于 2013-4-18 10:45:14 | 显示全部楼层
喜欢的角落,但是我家墙纸用得不多,类似的感觉多数出现在书房了。
11.jpg
回复

使用道具 举报

29

主题

3895

帖子

7908

积分

本科毕业

积分
7908

社区居民

 楼主| 发表于 2013-4-18 10:45:26 | 显示全部楼层
木色护墙板+墙纸我觉得超级美啊,但我家囿于预算,只能两者取一。。。
这张图记得是在我芳邻的贴里看到她的设计师贴过的、

12.jpg
回复

使用道具 举报

29

主题

3895

帖子

7908

积分

本科毕业

积分
7908

社区居民

 楼主| 发表于 2013-4-18 10:45:39 | 显示全部楼层
喜欢的两段式墙面
13.jpg
回复

使用道具 举报

29

主题

3895

帖子

7908

积分

本科毕业

积分
7908

社区居民

 楼主| 发表于 2013-4-18 10:45:50 | 显示全部楼层
地下室墙面用近似这个红色搭配强烈反差的黑白色地砖
是用色最大胆的区域了。当然选择的色彩饱和度要低一些吧,否则我也很难想象了
14.jpg
回复

使用道具 举报

29

主题

3895

帖子

7908

积分

本科毕业

积分
7908

社区居民

 楼主| 发表于 2013-4-18 10:46:22 | 显示全部楼层
还是第一张图片里的红色更接近点
想象下和黑白砖的搭配,忐忑啊,没看到过相同组合的案例
15.jpg
回复

使用道具 举报

29

主题

3895

帖子

7908

积分

本科毕业

积分
7908

社区居民

 楼主| 发表于 2013-4-18 10:46:36 | 显示全部楼层
一楼的主色调是用白色的
所以从一楼步入地下室反差很强烈
16.jpg
回复

使用道具 举报

您需要登录后才可以回帖 登录 | 立即注册

本版积分规则

装修百科|手机版|小黑屋|北京高老庄建筑装饰工程有限公司 ( 京ICP备19035109号 )

GMT+8, 2026-4-1 15:26 , Processed in 0.216581 second(s), 35 queries .

快速回复 返回顶部 返回列表