|
|

楼主 |
发表于 2013-4-28 10:21:51
|
显示全部楼层
跟悦悦在工地见面
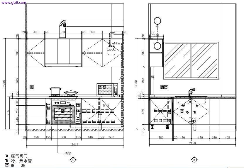
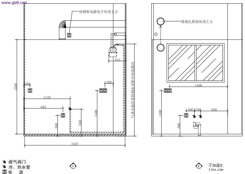
和施工队在现场对方案的一些变化进行了确认
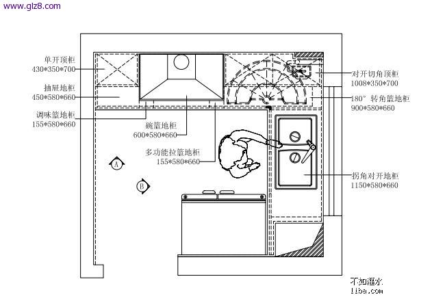
基本上平面成定局了.一切还算顺利
问题都解决了,而且解决的方式也得到了优化
比如洗衣区真的跟晾晒区一起了,做得也很好看
我老公很羡慕的maggie家的男性化书房,其实已经有一个书房了,不过他还要一个......
把我的衣帽间做成灵活的多功能空间了
他要罗汉榻,悦悦说给他照样子做一个......
然后去了小区一个独栋参观,也是悦悦设计,我家施工队做的.硬装刚结束,已经很美丽
和maggie家一样的大户啊...膜拜了下....也是大手笔,不过和maggie家风格又迥异......
有看头啊有看头
不过人家肯定是不会上篱笆的
遗憾将来不知道能看得到伐 |
|